Immaculate two-bedroom home with sunny garden and outdoor kitchen, ideal for downsizers.
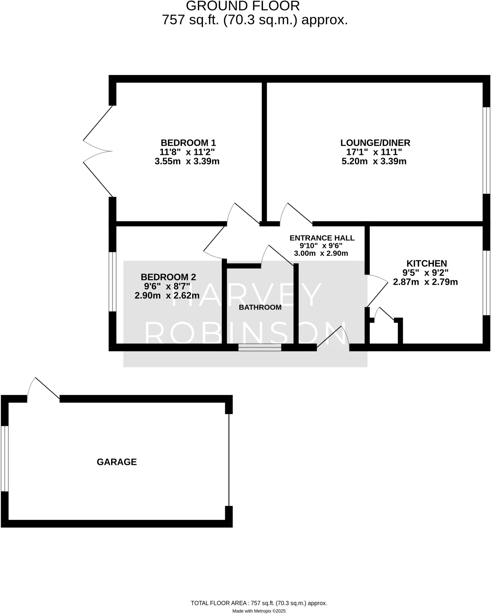
- Two double bedrooms in single-storey bungalow layout
- Newly renovated interior, ready to move into
- South-facing rear garden with patio and outdoor kitchen
- Single tiled bathroom only; one bath/shower for household
- Driveway parking plus single garage; additional side lawn
- 2022 boiler; loft boarded with light; UPVC windows 2015
- Approx 757 sq ft — comfortable but limited internal space
- Freehold, no flood risk, very low local crime
A neatly presented two-bedroom semi-detached bungalow set at the end of a quiet cul-de-sac in Earith. The single-storey layout and newly renovated interior deliver comfortable, low-maintenance living with bright open-plan lounge/diner and modern kitchen. The main bedroom opens onto a south-facing garden, making the outdoor space an immediate selling point.
Externally the plot is generous for the type: wrap-around lawns, a sizeable patio with an outdoor kitchen/BBQ area, driveway parking and a single garage. Practical updates include a 2022 boiler, boarded loft with light, and uPVC windows (replaced 2015). With no flood risk and very low local crime, the location suits those seeking tranquillity close to countryside amenities.
The property is freehold with a modest footprint (approx. 757 sq ft) and a single bathroom; storage and living space are appropriate for couples, downsizers or buyers wanting a manageable home near riverside walks and good commuter links to Cambridge. Viewings are recommended to appreciate the presentation and outside entertaining potential.
Notable points to check at viewing: the bungalow’s internal space is average for two bedrooms and may limit large furniture layouts; the build dates from the late 1960s–1970s, so prospective buyers should confirm dates of glazing and any remaining unseen services. All measurements and fixtures should be independently verified.
3 bedroom detached bungalow for sale in Chapel Road, Earith, PE28 — £400,000 • 3 bed • 2 bath • 1255 ft²
2 bedroom semi-detached bungalow for sale in Hermitage Road, Earith, PE28 — £250,000 • 2 bed • 1 bath • 784 ft²
2 bedroom semi-detached bungalow for sale in Chapel Road, Earith, Huntingdon, Cambs., PE28 3PU, PE28 — £250,000 • 2 bed • 1 bath • 662 ft²
3 bedroom detached bungalow for sale in Meadow Lane, Earith, PE28 — £360,000 • 3 bed • 1 bath • 1230 ft²
3 bedroom bungalow for sale in Meadow Way, Earith, Huntingdon, Cambridgeshire, PE28 — £325,000 • 3 bed • 1 bath • 1023 ft²
3 bedroom detached house for sale in School Road, Earith, PE28 — £325,000 • 3 bed • 1 bath • 613 ft²






































































