BD23 5JS - 4 bedroom country house for sale in Swarthghyll, Buckden, S…
View on Property Piper
4 bedroom country house for sale in Swarthghyll, Buckden, Skipton, North Yorkshire, BD23 5JS, BD23
Property Details
- Price: £1750000
- Bedrooms: 4
- Bathrooms: 3
- Property Type: undefined
- Property SubType: undefined
Brochure Descriptions
- Swarthghyll Farm is an expansive rural property nestled within the picturesque Yorkshire Dales. The main building is a classic stone farmhouse exuding historic charm, featuring a symmetrical gable facade. The property is situated on a large plot, surrounded by rolling countryside and hills, providing stunning panoramic views across the dales. The gardens are well-established and sizeable, with expansive grassed areas that border the property, adding to the serene rural setting. The property's overall size is quite large, suitable for family living with potential for agricultural or equestrian use.
- The property is nestled in a tranquil rural landscape, surrounded by expansive rolling hills and lush green countryside, offering exceptional panoramic views. The property appears to be a collection of traditional stone-built structures, perhaps a farmhouse and outbuildings, blending seamlessly into the natural surroundings. The area is secluded, providing substantial privacy with vast open spaces, indicative of a large property size. The gardens and grounds appear expansive and meticulously maintained, complementing the rustic charm of the buildings. The environment is ideal for those seeking serenity and an intimate connection with nature.
Image Descriptions
- remote stone farmhouse and attached stone barns traditional stone farmhouse
- stone house traditional stone cottage
Floorplan Description
- A spacious multi-story farm house with large dining and sitting rooms.
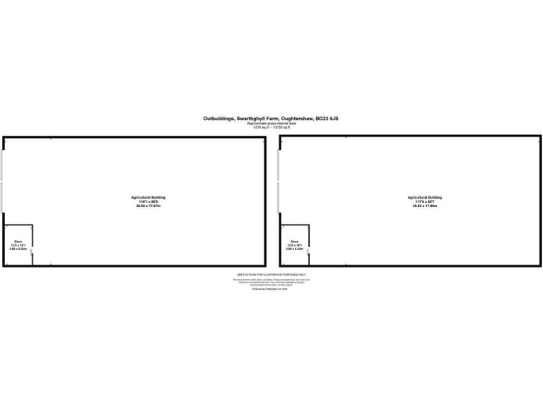
- Two large agricultural buildings with additional small store areas.
- A studio with an open plan kitchen/living area and mezzanine level.
- A multi-story bunk barn with large communal spaces and multiple bedrooms.
- A spacious bungalow with a total internal area of 1,755 square feet, featuring large and average-sized rooms.
- Two-storey house plan with multiple reception rooms, kitchen, pantry and three bedrooms.
- Two agricultural outbuildings with attached stores.
- Floor plan of Bunk Barn showing bedrooms and communal rooms.
- Single-storey bungalow floorplan with five main rooms
- Ground floor plan with swimming pool area and plant/boiler rooms.
- Site layout showing Main House, Bunk Barn, Boiler, Swimming Pool (to be developed), Flats and a central Courtyard.
Rooms
- Utility: average
- Bootroom:
- Sitting Room: average
- Kitchen: average
- Pantry: small
- Dining Room: large
- Drawing Room: average
- Sitting Room: average
- Kitchen: small
- Bedroom: average
- Bedroom: small
- Bedroom: average
- Agricultural Building:
- Store:
- Agricultural Building:
- Store:
- Open Plan Kitchen/ Living Room: Large
- Mezzanine: Average
- Staff Bedroom: average
- Drying Room: small
- Kitchen/Dining Room: large
- Common Room: large
- Games/Entertainment Room: large
- Bedroom: large
- Bedroom: average
- Bedroom: average
- Bedroom: average
- Bedroom: average
- : Average
- : Average
- : Average
- : Large
- : Large
- Utility:
- Sitting Room:
- Kitchen:
- Pantry:
- Dining Room:
- Drawing Room:
- Sitting Room:
- (unnamed):
- Kitchen:
- Bedroom:
- Bedroom:
- Bedroom:
- Agricultural Building:
- Store:
- Agricultural Building:
- Store:
- Staff Bedroom:
- Drying Room:
- Kitchen/Dining Room:
- Common Room:
- Games/Entertainment Room:
- Bedroom:
- Bedroom:
- Bedroom:
- Bedroom:
- Bedroom:
- 23'11 x 8'6:
- 23'11 x 14'7:
- 23'11 x 19'5:
- 23'11 x 15'2:
- 19'3 x 19'2:
- Swimming Pool (to be developed):
- Boiler:
- Plant:
- Boiler:
- Bunk Barn:
- Swimming Pool (to be developed):
- Flats:
- Main House:
Textual Property Features
Detected Visual Features
- stone farmhouse
- traditional
- attached barns
- remote location
- rural
- stone construction
- potential conversion
- historic
- stone cottage
- traditional style
- rural setting
- slate roof
- period property
- countryside views
EPC Details
- Fully double glazed
- Sandstone or limestone, as built, no insulation (assumed)
- Boiler and radiators, wood chips
- Low energy lighting in all fixed outlets
- Solid, no insulation (assumed)
Nearest Bars And Restaurants
- Id: 372937114
- Tags:
- Accommodation: yes
- Amenity: pub
- Food: yes
- Name: The Fountain
- Real_ale: yes
- TagsNormalized:
- Lat: 54.3040901
- Lon: -2.1984427
- FullGeoHash: gcwkvvz0k847
- PartitionGeoHash: gcwk
- Images:
- FoodStandards: null
- Distance: 7737.3
,- Id: 1167166734
- Tags:
- Amenity: cafe
- Name: Penny Garth Cafe
- Opening_hours: Tu-Th 11:00-15:00, Sa,Su 09:00-21:00
- TagsNormalized:
- Lat: 54.3042818
- Lon: -2.2002236
- FullGeoHash: gcwkvvvc75f6
- PartitionGeoHash: gcwk
- Images:
- FoodStandards: null
- Distance: 7722.7
,- Id: 479499969
- Tags:
- Amenity: fast_food
- Cuisine: fish_and_chips
- Diet:
- Drive_through: no
- Name: The Chippie
- Website: http://www.thechippiehawes.co.uk/
- TagsNormalized:
- fast food
- food
- fish
- vegetarian
- Lat: 54.3041395
- Lon: -2.2001374
- FullGeoHash: gcwkvvvbt169
- PartitionGeoHash: gcwk
- Images:
- FoodStandards: null
- Distance: 7709.3
,- Id: 6420965237
- Tags:
- Amenity: restaurant
- Cuisine: regional
- Description: Part of Wensleydale Creamery. Serves tea, coffee, cheese, sandwiches
- Fixme: please place on exact builing - this opened since I visited.
- Name: Calvert's Restaurant
- Operator: Wensleydale Dairy Products Limited
- TagsNormalized:
- Lat: 54.3023222
- Lon: -2.2003208
- FullGeoHash: gcwkvvmvby9c
- PartitionGeoHash: gcwk
- Images:
- FoodStandards: null
- Distance: 7512.9
,- Id: 2969423974
- Tags:
- Amenity: cafe
- Cuisine: coffee_shop
- Description: Part of Wensleydale Creamery. Serves tea, coffee, cheese, sandwiches
- Name: 1897 Coffee Shop
- Operator: Wensleydale Dairy Products Limited
- TagsNormalized:
- Lat: 54.3022166
- Lon: -2.2010427
- FullGeoHash: gcwkvvmjrfze
- PartitionGeoHash: gcwk
- Images:
- FoodStandards: null
- Distance: 7487.6
}
Nearest General Shops
- Id: 541436700
- Tags:
- Name: Old Sweet Shop
- Shop: confectionery
- TagsNormalized:
- Lat: 54.3039319
- Lon: -2.1986387
- FullGeoHash: gcwkvvxp2485
- PartitionGeoHash: gcwk
- Images:
- FoodStandards: null
- Distance: 7716.6
,- Id: 1380898493
- Tags:
- Name: Cunninghams
- Shop: clothes
- TagsNormalized:
- Lat: 54.3038393
- Lon: -2.1982868
- FullGeoHash: gcwkvvxqb1qe
- PartitionGeoHash: gcwk
- Images:
- FoodStandards: null
- Distance: 7713.9
,- Id: 2969423975
- Tags:
- Name: Cheese Shop
- Operator: Wensleydale Dairy Products Limited
- Shop: deli
- Website: https://www.wensleydale.co.uk/
- TagsNormalized:
- Lat: 54.3023293
- Lon: -2.2007691
- FullGeoHash: gcwkvvmmyrge
- PartitionGeoHash: gcwk
- Images:
- FoodStandards: null
- Distance: 7504.9
}
Nearest Grocery shops
- Id: 1352951385
- Tags:
- Addr:
- City: Skipton
- Country: GB
- Hamlet: Buckden
- Postcode: BD23 5JA
- Street: Buckden Wood Lane
- Fhrs:
- Name: Buckden Village Store
- Shop: convenience
- Source:
- TagsNormalized:
- Lat: 54.1912206
- Lon: -2.0905681
- FullGeoHash: gcws23jwwpxq
- PartitionGeoHash: gcws
- Images:
- FoodStandards: null
- Distance: 10743.7
,- Id: 5079290288
- Tags:
- Name: Elijah Allen & Son
- Shop: convenience
- TagsNormalized:
- Lat: 54.3038401
- Lon: -2.1980874
- FullGeoHash: gcwkvvxquc7p
- PartitionGeoHash: gcwk
- Images:
- FoodStandards: null
- Distance: 7718
,- Id: 541436698
- Tags:
- Brand: Spar
- Brand:wikidata: Q610492
- Brand:wikipedia: en:SPAR (retailer)
- Name: Spar
- Operator: J. Blades & Sons
- Shop: convenience
- TagsNormalized:
- Lat: 54.3039384
- Lon: -2.1987417
- FullGeoHash: gcwkvvwzmeg6
- PartitionGeoHash: gcwk
- Images:
- FoodStandards: null
- Distance: 7715.3
}
Nearest Religious buildings
- Id: 848882416
- Tags:
- Amenity: place_of_worship
- Building: church
- Denomination: anglican
- Name: St Matthew
- Religion: christian
- Wikidata: Q18708786
- Wikipedia: en:St Matthew's Church, Stalling Busk
- TagsNormalized:
- place of worship
- church
- anglican
- christian
- Lat: 54.2686612
- Lon: -2.1301712
- FullGeoHash: gcwkxx2cg7tj
- PartitionGeoHash: gcwk
- Images:
- FoodStandards: null
- Distance: 7633.7
,- Id: 355748411
- Tags:
- Amenity: place_of_worship
- Denomination: methodist
- Name: Gayle Methodist Church
- Religion: christian
- TagsNormalized:
- place of worship
- methodist
- church
- christian
- Lat: 54.2988602
- Lon: -2.2007315
- FullGeoHash: gcwkvuv3z1pt
- PartitionGeoHash: gcwk
- Images:
- FoodStandards: null
- Distance: 7138.4
,- Id: 534100047
- Tags:
- Amenity: place_of_worship
- Denomination: methodist
- Is_in: Marsett
- Is_in:country_code: GB
- Is_in:county: North Yorkshire
- Is_in:municipality: Richmondshire
- Name: Marsett Methodist Chapel
- Religion: christian
- Source: os_25k_firstseries
- TagsNormalized:
- place of worship
- methodist
- chapel
- christian
- church
- Lat: 54.271293
- Lon: -2.1516626
- FullGeoHash: gcwkxpc1nwk0
- PartitionGeoHash: gcwk
- Images:
- FoodStandards: null
- Distance: 6576.6
}
Nearest Medical buildings
- Id: 372878379
- Tags:
- Addr:
- City: Carnforth
- Country: GB
- Hamlet: Ingleton
- Housenumber: 37
- Postcode: LA6 3EH
- Street: Main Street
- Amenity: pharmacy
- Dispensing: yes
- Healthcare: pharmacy
- Name: Ingleton Pharmacy
- Phone: +44 15242 41154
- TagsNormalized:
- Lat: 54.1535921
- Lon: -2.4686065
- FullGeoHash: gcwhpf67t31x
- PartitionGeoHash: gcwh
- Images:
- FoodStandards: null
- Distance: 17842.8
,- Id: 389379270
- Tags:
- Amenity: doctors
- Building: yes
- Healthcare: doctor
- Source: bing
- TagsNormalized:
- doctor
- doctors
- health
- healthcare
- Lat: 54.2892877
- Lon: -1.9891109
- FullGeoHash: gcwsfepd42er
- PartitionGeoHash: gcws
- Images:
- FoodStandards: null
- Distance: 16974.5
,- Id: 11373887
- Tags:
- Name: Doctor Wood
- Natural: wood
- Source:
- Name: OS_OpenData_StreetView
- Type: multipolygon
- TagsNormalized:
- Lat: 54.3794767
- Lon: -2.1555853
- FullGeoHash: gcwmqgqr7jpj
- PartitionGeoHash: gcwm
- Images:
- FoodStandards: null
- Distance: 16568.2
,- Id: 1167203499
- Tags:
- Amenity: pharmacy
- Dispensing: yes
- Healthcare: pharmacy
- Name: John Hogg
- TagsNormalized:
- Lat: 54.3038043
- Lon: -2.1978713
- FullGeoHash: gcwkvvxw9fu6
- PartitionGeoHash: gcwk
- Images:
- FoodStandards: null
- Distance: 7718.6
}
Nearest Leisure Facilities
- Id: 1054534827
- Tags:
- Leisure: pitch
- Sport: soccer
- TagsNormalized:
- Lat: 54.3009872
- Lon: -2.2008694
- FullGeoHash: gcwkvvjqhj8v
- PartitionGeoHash: gcwk
- Images:
- FoodStandards: null
- Distance: 7360.6
,- Id: 999214870
- Tags:
- TagsNormalized:
- Lat: 54.2991147
- Lon: -2.200391
- FullGeoHash: gcwkvuver0te
- PartitionGeoHash: gcwk
- Images:
- FoodStandards: null
- Distance: 7172.2
,- Id: 143413676
- Tags:
- Leisure: nature_reserve
- Name: Ling Gill Nature Preserve
- Natural: wood
- Source: Bing
- TagsNormalized:
- nature reserve
- leisure
- wood
- Lat: 54.2026003
- Lon: -2.3080917
- FullGeoHash: gcwk77r31941
- PartitionGeoHash: gcwk
- Images:
- FoodStandards: null
- Distance: 6152.2
,- Id: 1024025438
- Tags:
- Leisure: garden
- Source: Bing
- TagsNormalized:
- Lat: 54.2135344
- Lon: -2.1638297
- FullGeoHash: gcwkqv22ep79
- PartitionGeoHash: gcwk
- Images:
- FoodStandards: null
- Distance: 5374.7
,- Id: 205185249
- Tags:
- Leisure: garden
- Source: Bing
- TagsNormalized:
- Lat: 54.213316
- Lon: -2.1653414
- FullGeoHash: gcwkqtpprys6
- PartitionGeoHash: gcwk
- Images:
- FoodStandards: null
- Distance: 5302.6
}
Nearest Tourist attractions
- Id: 27351731
- Tags:
- Addr:
- City: Skipton
- Country: GB
- Hamlet: Buckden
- Postcode: BD23 5JQ
- Fhrs:
- Guest_house: bed_and_breakfast
- Internet_access: yes
- Internet_access:fee: customers
- Name: Low Raisgill Bed & Breakfast
- Source:
- Tourism: guest_house
- Website: https://www.lowraisgill.co.uk/
- TagsNormalized:
- Lat: 54.203299
- Lon: -2.1455055
- FullGeoHash: gcwkr5mtn570
- PartitionGeoHash: gcwk
- Images:
- FoodStandards:
- Id: 292243
- FHRSID: 292243
- LocalAuthorityBusinessID: 1057
- BusinessName: Low Raisgill Bed & Breakfast
- BusinessType: Hotel/bed & breakfast/guest house
- BusinessTypeID: 7842
- AddressLine1: Low Raisgill
- AddressLine2: Deepdale Bridge To Stubbing Lane
- AddressLine3: Buckden
- AddressLine4: Skipton
- PostCode: BD23 5JQ
- RatingValue: 5
- RatingKey: fhrs_5_en-GB
- RatingDate: 2017-09-06
- LocalAuthorityCode: 250
- LocalAuthorityName: Craven
- LocalAuthorityWebSite: http://www.cravendc.gov.uk
- LocalAuthorityEmailAddress: environmentalhealth@cravendc.gov.uk
- Scores:
- Hygiene: 0
- Structural: 0
- ConfidenceInManagement: 0
- NewRatingPending: false
- Geocode:
- Longitude: -2.14606094360352
- Latitude: 54.20339965820310
- Distance: 6988.3
,- Id: 380650473
- Tags:
- Beds: 40
- Building: yes
- Name: Halton Gill Bunk Barn
- Rooms: 8
- Tourism: hostel
- TagsNormalized:
- Lat: 54.183363
- Lon: -2.1824568
- FullGeoHash: gcwknrfbcnfq
- PartitionGeoHash: gcwk
- Images:
- FoodStandards: null
- Distance: 6968.6
,- Id: 10109324061
- Tags:
- Name: Gaudy House Farm
- Tourism: chalet
- Website: http://gaudyhousefarm.co.uk/
- TagsNormalized:
- Lat: 54.2933081
- Lon: -2.2193161
- FullGeoHash: gcwkv7zcqnjy
- PartitionGeoHash: gcwk
- Images:
- FoodStandards: null
- Distance: 6246.5
}
Nearest Train stations
- Id: 3754534931
- Tags:
- Name: Clapham
- Naptan:
- Network: National Rail
- Public_transport: station
- Railway: station
- Ref:
- Source: NPE
- Wikidata: Q5125882
- Wikipedia: en:Clapham railway station
- TagsNormalized:
- Lat: 54.105416
- Lon: -2.4104509
- FullGeoHash: gcw7c1sfbktd
- PartitionGeoHash: gcw7
- Images:
- FoodStandards: null
- Distance: 18630.9
,- Id: 20972511
- Tags:
- Name: Garsdale
- Naptan:
- Network: National Rail
- Public_transport: station
- Railway: station
- Ref:
- Source: NPE
- Wikidata: Q2145153
- Wikipedia: en:Garsdale railway station
- TagsNormalized:
- Lat: 54.3214617
- Lon: -2.3263682
- FullGeoHash: gcwm50cvrwqh
- PartitionGeoHash: gcwm
- Images:
- FoodStandards: null
- Distance: 11014.8
,- Id: 20975875
- Tags:
- Name: Horton-in-Ribblesdale
- Naptan:
- Network: National Rail
- Public_transport: station
- Railway: station
- Ref:
- Source: NPE
- Wikidata: Q5906817
- Wikipedia: en:Horton-in-Ribblesdale railway station
- TagsNormalized:
- Lat: 54.149217
- Lon: -2.3020982
- FullGeoHash: gcwk59edj1xj
- PartitionGeoHash: gcwk
- Images:
- FoodStandards: null
- Distance: 10778.6
,- Id: 20975586
- Tags:
- Name: Dent
- Naptan:
- Network: National Rail
- Public_transport: station
- Railway: station
- Ref:
- Source: NPE
- Train: yes
- Wikidata: Q2319302
- Wikipedia: en:Dent railway station
- TagsNormalized:
- Lat: 54.2825661
- Lon: -2.3636343
- FullGeoHash: gcwkf1yfg7dx
- PartitionGeoHash: gcwk
- Images:
- FoodStandards: null
- Distance: 9706.2
,- Id: 20975595
- Tags:
- Name: Ribblehead
- Naptan:
- Network: National Rail
- Operator: Northern
- Public_transport: station
- Railway: station
- Ref: RHD
- Ref:crs: RHD
- Source: NPE
- Wikidata: Q2801135
- Wikipedia: en:Ribblehead railway station
- TagsNormalized:
- Lat: 54.2054988
- Lon: -2.3603709
- FullGeoHash: gcwk67c1zm7g
- PartitionGeoHash: gcwk
- Images:
- FoodStandards: null
- Distance: 8897.7
}
Nearest Bus stations and stops
- Id: 371802470
- Tags:
- Bus: yes
- Highway: bus_stop
- Kerb: raised
- Public_transport: platform
- Shelter: yes
- TagsNormalized:
- Lat: 54.3042311
- Lon: -2.1954094
- FullGeoHash: gcwkyjc3562h
- PartitionGeoHash: gcwk
- Images:
- FoodStandards: null
- Distance: 7815.1
,- Id: 541436705
- Tags:
- Bus: yes
- Departures_board: timetable
- Highway: bus_stop
- Kerb: raised
- Public_transport: platform
- Ref: 32002055
- Shelter: no
- TagsNormalized:
- Lat: 54.3036843
- Lon: -2.1942317
- FullGeoHash: gcwkyjdjysqq
- PartitionGeoHash: gcwk
- Images:
- FoodStandards: null
- Distance: 7783.6
,- Id: 8949331648
- Tags:
- Bus: yes
- Highway: bus_stop
- Name: Hawes Market Place
- Public_transport: platform
- Shelter: no
- TagsNormalized:
- Lat: 54.3041282
- Lon: -2.1989989
- FullGeoHash: gcwkvvy8rx5w
- PartitionGeoHash: gcwk
- Images:
- FoodStandards: null
- Distance: 7730.2
,- Id: 1380898504
- Tags:
- Bench: yes
- Bus: yes
- Departures_board: timetable
- Highway: bus_stop
- Name: Hawes Market Place
- Public_transport: platform
- Shelter: no
- Timetable: yes
- TagsNormalized:
- Lat: 54.3040657
- Lon: -2.1992778
- FullGeoHash: gcwkvvy815e9
- PartitionGeoHash: gcwk
- Images:
- FoodStandards: null
- Distance: 7718.1
,- Id: 390495040
- Tags:
- Bus: yes
- Departures_board: timetable
- Highway: bus_stop
- Lit: yes
- Opposite: yes
- Public_transport: platform
- Shelter: yes
- TagsNormalized:
- Lat: 54.3001782
- Lon: -2.2005894
- FullGeoHash: gcwkvvj96wce
- PartitionGeoHash: gcwk
- Images:
- FoodStandards: null
- Distance: 7280.5
}
Nearest Hotels
- Id: 10133863318
- Tags:
- Addr:
- City: Hawes
- Housename: Simonstone Hall Hotel
- Postcode: DL8 3LY
- Name: Simonstone Hall Hotel
- Phone: +44 1969 667255
- Tourism: hotel
- Website: https://simonstonehall.com/
- TagsNormalized:
- Lat: 54.3192861
- Lon: -2.1990775
- FullGeoHash: gcwmjbw8vbbf
- PartitionGeoHash: gcwm
- Images:
- FoodStandards: null
- Distance: 9348.5
,- Id: 2851002701
- Tags:
- Name: Stone House Hotel
- Tourism: hotel
- Wikidata: Q26460692
- TagsNormalized:
- Lat: 54.3139389
- Lon: -2.1863215
- FullGeoHash: gcwkypxcxh09
- PartitionGeoHash: gcwk
- Images:
- FoodStandards: null
- Distance: 9031.1
,- Id: 454654298
- Tags:
- Addr:
- City: Hawes
- Postcode: DL8 3QW
- Street: Main Street
- Email: info@herriotsinhawes.co.uk
- Internet_access: wlan
- Internet_access:fee: no
- Internet_access:ssid: Herriots cafe_EXT
- Name: Herriots Guest House
- Phone: +44 1969 667 536
- Stars: 4
- Tourism: hotel
- Website: https://herriotsinhawes.co.uk/
- TagsNormalized:
- Lat: 54.3036232
- Lon: -2.196326
- FullGeoHash: gcwkyj8ttchd
- PartitionGeoHash: gcwk
- Images:
- FoodStandards: null
- Distance: 7731.7
}
Tags
- stone farmhouse
- traditional
- attached barns
- remote location
- rural
- stone construction
- potential conversion
- historic
- stone cottage
- traditional style
- rural setting
- slate roof
- period property
- countryside views
Local Market Stats
- Average Price/sqft: £273
- Avg Income: £43300
- Rental Yield: 3.3%
- Social Housing: 6%
- Planning Success Rate: 89%
Similar Properties
4 bedroom farm house for sale in Ellershaw Farm, Halton Gill, Skipton, BD23 5QN, BD23 — £650,000 • 4 bed • 2 bath • 2207 ft²
3 bedroom detached house for sale in High House Farm, Gawthrop, Sedbergh, Cumbria, LA10 — £675,000 • 3 bed • 1 bath
3 bedroom detached house for sale in The Barn, Appersett, Hawes, DL8 3LN, DL8 — £600,000 • 3 bed • 3 bath • 1927 ft²
3 bedroom barn conversion for sale in Hensley Hill House, The Farmhouse Known As Hensley Hill, Rathmell, Settle, North Yorkshire, BD24 — £480,000 • 3 bed • 2 bath • 2164 ft²
5 bedroom detached house for sale in 3500sqft House. 1 acre with paddock. Flasby, Yorkshire Dales, BD23 — £899,950 • 5 bed • 3 bath • 3500 ft²
3 bedroom semi-detached house for sale in Low Faggergill Farm, Arkengarthdale, DL11 6RS, DL11 — £375,000 • 3 bed • 1 bath • 2325 ft²
Meta
- {
"@context": "https://schema.org",
"@type": "Residence",
"name": "4 bedroom country house for sale in Swarthghyll, Buckden, S…",
"description": "",
"url": "https://propertypiper.co.uk/property/188b391a-446a-4b38-bb95-8e4ce406395d",
"image": "https://image-a.propertypiper.co.uk/49a0ed6f-1702-47d1-a730-c8edde2b2e7b-1024.jpeg",
"address": {
"@type": "PostalAddress",
"streetAddress": "Swarthghyll Farm, Buckden",
"postalCode": "BD23 5JS",
"addressLocality": "Craven",
"addressRegion": "Skipton and Ripon",
"addressCountry": "England"
},
"geo": {
"@type": "GeoCoordinates",
"latitude": 54.23790646863741,
"longitude": -2.235232114522984
},
"numberOfRooms": 4,
"numberOfBathroomsTotal": 3,
"floorSize": {
"@type": "QuantitativeValue",
"value": 3649,
"unitCode": "FTK"
},
"offers": {
"@type": "Offer",
"price": 1750000,
"priceCurrency": "GBP",
"availability": "https://schema.org/InStock"
},
"additionalProperty": [
{
"@type": "PropertyValue",
"name": "Feature",
"value": "stone farmhouse"
},
{
"@type": "PropertyValue",
"name": "Feature",
"value": "traditional"
},
{
"@type": "PropertyValue",
"name": "Feature",
"value": "attached barns"
},
{
"@type": "PropertyValue",
"name": "Feature",
"value": "remote location"
},
{
"@type": "PropertyValue",
"name": "Feature",
"value": "rural"
},
{
"@type": "PropertyValue",
"name": "Feature",
"value": "stone construction"
},
{
"@type": "PropertyValue",
"name": "Feature",
"value": "potential conversion"
},
{
"@type": "PropertyValue",
"name": "Feature",
"value": "historic"
},
{
"@type": "PropertyValue",
"name": "Feature",
"value": "stone cottage"
},
{
"@type": "PropertyValue",
"name": "Feature",
"value": "traditional style"
},
{
"@type": "PropertyValue",
"name": "Feature",
"value": "rural setting"
},
{
"@type": "PropertyValue",
"name": "Feature",
"value": "slate roof"
},
{
"@type": "PropertyValue",
"name": "Feature",
"value": "period property"
},
{
"@type": "PropertyValue",
"name": "Feature",
"value": "countryside views"
}
]
}
High Res Floorplan Images
Compatible Floorplan Images
FloorplanImages Thumbnail