Spacious period farmhouse with barn conversion potential and peak views.
Large plot with wrap-around gardens and panoramic Pen-y-ghent views
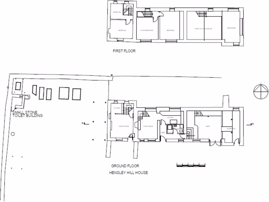
Adjoining stone barn/garage with mezzanine — conversion potential
Three bedrooms, multiple wood-burning stoves, original period features
Parking for approximately three cars on gated private drive
EPC D, electric storage heating, likely high running costs
Solid brick walls assumed uninsulated — thermal improvements required
Very slow broadband — poor for heavy remote working needs
Sold by Modern Method of Auction; starting bid £460,000
Hensley Hill House is a substantial 1800s detached farmhouse set on a large plot with panoramic views of Pen-y-ghent and surrounding moorland. The property retains period character—exposed stone, flagstone floors and original range—while offering flexible living space across the main house and adjoining barn mezzanine. The barn currently works as a garage but provides clear scope for conversion into a generous open-plan kitchen/living area or a separate holiday let apartment.
The wrap-around gardens are mature and varied, with established fruit trees, raised vegetable beds and elevated seating areas that take full advantage of the scenery. Parking for about three cars is available on the gated private drive. Practical features include multiple wood-burning stoves and an Economy 7 AGA, while the property benefits from very low local crime and no flood risk.
Buyers should note this will be sold by the Modern Method of Auction with a starting bid of £460,000. The house has electric storage heating, double glazing installed before 2002 and solid brick walls assumed to be uninsulated, so heating costs and thermal upgrade work are likely considerations. Broadband speeds are very slow — an important factor for remote working. EPC rating D and council tax band D reflect the property’s vintage and current services.
For someone wanting character, space and direct access to the Yorkshire Three Peaks, this farmhouse offers considerable potential. It suits buyers willing to invest in energy improvements and sympathetic renovation, whether creating a bespoke family home or developing part of the site for holiday-let income.
4 bedroom detached house for sale in Rathmell, BD24 — £645,000 • 4 bed • 1 bath • 1532 ft²
3 bedroom detached house for sale in High House Farm, Gawthrop, Sedbergh, Cumbria, LA10 — £675,000 • 3 bed • 1 bath
3 bedroom detached house for sale in Selside, Settle, North Yorkshire, BD24 — £525,000 • 3 bed • 2 bath • 5031 ft²
5 bedroom detached house for sale in Airton, Skipton, North Yorkshire, BD23 — £1,425,000 • 5 bed • 2 bath • 3486 ft²
3 bedroom barn conversion for sale in Buckden, Skipton, BD23 — £495,000 • 3 bed • 3 bath • 1715 ft²
3 bedroom detached house for sale in The Barn, Appersett, Hawes, DL8 3LN, DL8 — £600,000 • 3 bed • 3 bath • 1927 ft²










































































































































