Two-bedroom home with garden and fast, town-centre access.
Park-facing main bedroom with pleasant front views
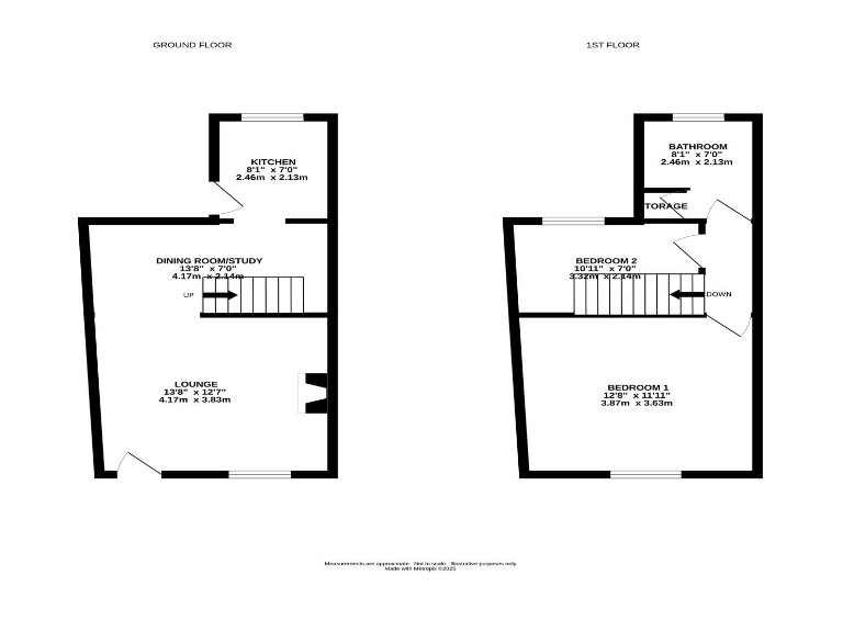
This well-presented two-bedroom end-terrace sits in a favourable position on Black Road, overlooking a park and offering quick access to Macclesfield town centre and the train station. The house feels cosy with a main lounge featuring a wood-burning stove, bespoke shelving and wood flooring, and benefits from mains gas central heating and UPVC double glazing. A private rear garden with a seating area adds outdoor space that’s rare for terraces of this size.
The ground floor layout flows from lounge into a dining/work area and then into an attractively fitted kitchen with direct garden access. Upstairs provides a generous main bedroom with fitted wardrobe and park views, a second bedroom to the rear, and a well-appointed family bathroom with shower over bath. The property is freehold and council tax is very low, which helps running costs.
Note the property’s overall size and plot are small; total internal area is about 608 sq ft. The building is a Victorian solid-brick construction (likely no cavity insulation) so there is potential value in targeting wall insulation upgrades for improved comfort and energy efficiency. Double glazing install date is unknown. The area records above-average crime, which is important to consider for buyers prioritising security.
This home suits first-time buyers or small families who want an established, characterful property in a convenient, park-front town location. It’s presented ready to move into but also offers straightforward opportunities to improve thermal performance and personalise the interior over time.
2 bedroom house for sale in Buxton Road, Macclesfield, SK11 — £190,000 • 2 bed • 1 bath • 656 ft²
2 bedroom terraced house for sale in Oxford Road, Macclesfield, SK11 — £139,950 • 2 bed • 1 bath • 528 ft²
2 bedroom end of terrace house for sale in Sandgate Road, Hurdsfield, Macclesfield SK10 2PR, SK10 — £185,000 • 2 bed • 2 bath • 926 ft²
2 bedroom end of terrace house for sale in Brocklehurst Avenue, Macclesfield, Cheshire, SK10 — £225,000 • 2 bed • 1 bath • 710 ft²
2 bedroom terraced house for sale in High Street, MACCLESFIELD, Cheshire, SK11 — £200,000 • 2 bed • 1 bath • 759 ft²
2 bedroom terraced house for sale in Roe Street, Macclesfield, SK11 — £225,000 • 2 bed • 2 bath • 1206 ft²










































