Renovated three-bedroom home with private decking, minutes from Tooting Broadway tube.
Share of freehold with very long lease (973 years)
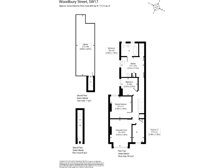
Comfortable three-bedroom first-floor maisonette set close to Tooting Broadway station, offered with a long share-of-freehold lease (973 years). The flat has been newly renovated: a brand new kitchen with quartz worktops and integrated appliances, a modern family bathroom, and a bright reception room with period fireplace and built-in shelving. A private rear garden with wooden decking provides low-maintenance outdoor space accessed directly from the kitchen.
The accommodation is compact overall (approximately 804 sq ft) but well laid out along a linear plan, making it suitable for a small family or buyers seeking a ready-to-move-in home with period character and contemporary fittings. Three large bedrooms and good natural light throughout are notable positives for central London living. A large attic offers useful additional storage or potential conversion subject to planning.
Buyers should note practical drawbacks: there is only one bathroom serving three bedrooms, the property footprint is small for an urban family home, and building walls are original solid brick (insulation status unknown). The location is busy and recorded as having a high local crime rate, which may concern some purchasers. Council tax banding and some service/maintenance details are not provided.
Overall this is a renovated period conversion that balances character and modern convenience in a highly connected part of SW17. It will appeal to families and buyers wanting immediate occupation near amenities and transport, while those requiring larger living areas or multiple bathrooms should check layout and space suitability in person.
3 bedroom maisonette for sale in Aldis Street, SW17 0RZ, SW17 — £500,000 • 3 bed • 1 bath • 757 ft²
2 bedroom maisonette for sale in Brudenell Road, London, SW17 — £650,000 • 2 bed • 1 bath • 907 ft²
2 bedroom maisonette for sale in Bickley Street, London, SW17 — £550,000 • 2 bed • 1 bath • 691 ft²
2 bedroom flat for sale in Vant Road, London, SW17 — £525,000 • 2 bed • 1 bath • 666 ft²
1 bedroom flat for sale in Grenfell Road, Tooting, CR4 — £360,000 • 1 bed • 1 bath • 546 ft²
3 bedroom maisonette for sale in Bickley Street, Tooting, London, SW17 — £525,000 • 3 bed • 1 bath • 837 ft²


















































