Chain-free four-bed mews house with garage close to village and station..
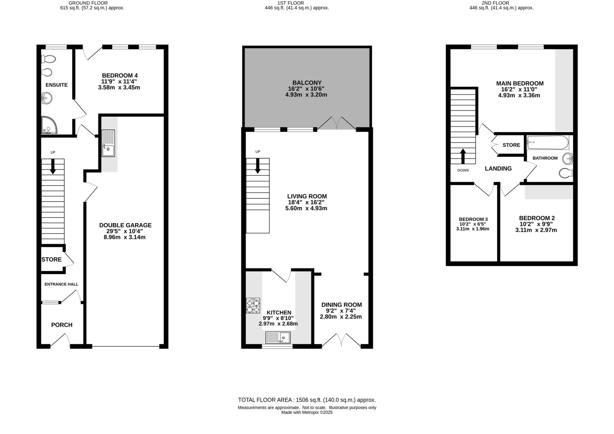
- Freehold, chain-free four-bedroom townhouse over three floors
- Private double garage plus off-street parking
- Small courtyard garden; low-maintenance outdoor space
- Walking distance to Prestbury Village and railway station
- Built 1976–82; solid mid-terrace construction
- Double glazing installed before 2002; may need upgrading
- Some cosmetic updating required (dated carpets, finishes)
- Council tax band flagged as expensive
Set within a quiet Prestbury mews, this three-storey, four-bedroom townhouse offers comfortable family living with practical benefits. The house is freehold, chain-free and arranged over three floors, with a large living room, dining space and a private courtyard garden for low-maintenance outdoor use. A private double garage and off-street parking add genuine convenience for commuters and families.
Built in the late 1970s/early 1980s with a Georgian-inspired brick façade and double glazing installed before 2002, the home has a solid mid‑terrace construction and gas central heating. The interior is light and spacious, though some cosmetic updating is needed (for example dated carpets and areas that would benefit from modern finishes) — an opportunity to personalise the home while retaining the property's original proportions and character.
Location is a strong selling point: a short walk to Prestbury Village and the railway station, with fast broadband, very low crime and several highly regarded schools nearby. The plot is small and the courtyard garden is modest, so this property suits buyers who prioritise location and convenience over extensive outdoor space.
Practical considerations: council tax is described as expensive and the glazing pre-dates 2002, so buyers should budget for potential future window upgrades or other modernisation works. Overall this townhouse will appeal to families seeking space near good schools and transport links, or buyers wanting a well-located home to modernise and personalise with minimal structural work required.
4 bedroom town house for sale in Bollin Mews, Prestbury, Macclesfield, SK10 — £449,000 • 4 bed • 2 bath • 1217 ft²
4 bedroom detached house for sale in Bollin Grove, Prestbury, Macclesfield, SK10 — £750,000 • 4 bed • 2 bath • 2000 ft²
4 bedroom detached house for sale in Packsaddle Park, Prestbury, SK10 — £895,000 • 4 bed • 2 bath • 2618 ft²
5 bedroom semi-detached house for sale in Meadow Hey, Bollin Hill, Prestbury, Macclesfield, SK10 — £875,000 • 5 bed • 3 bath • 2270 ft²
3 bedroom semi-detached house for sale in Bollin Grove, Prestbury, Macclesfield, SK10 — £400,000 • 3 bed • 1 bath • 816 ft²
4 bedroom detached house for sale in Peters Close, Prestbury, Macclesfield, SK10 — £995,000 • 4 bed • 2 bath • 2015 ft²






































































