**Standout Features:**
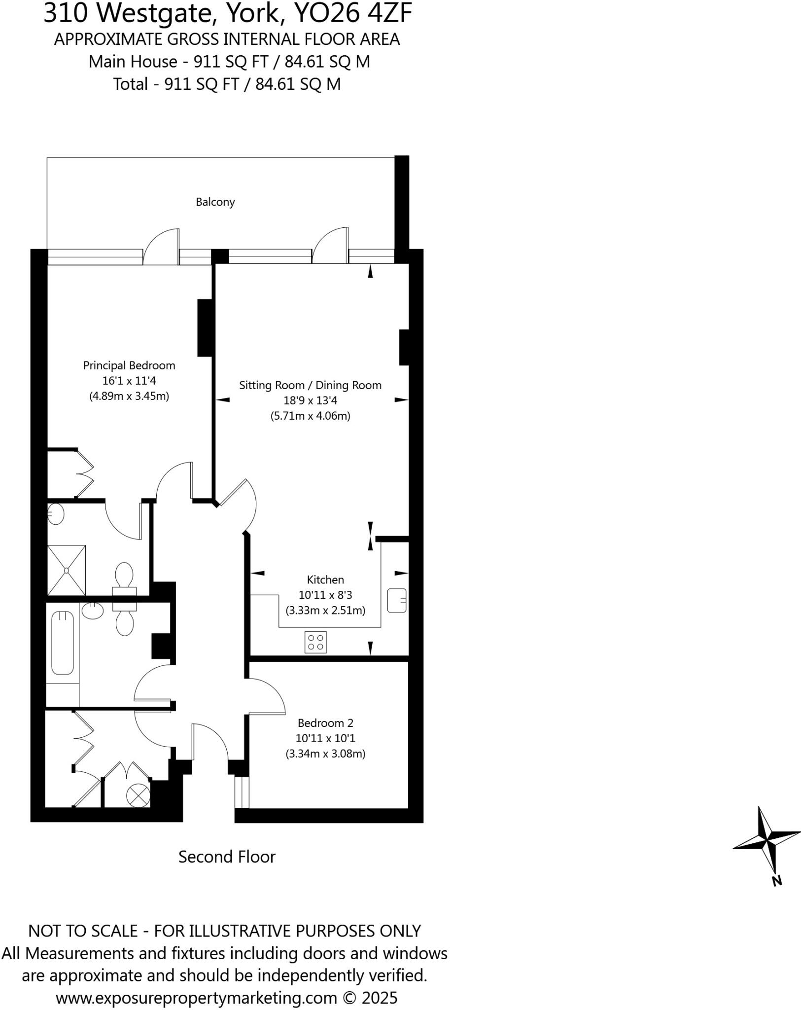
- Spacious second-floor apartment with 911 sq ft of living space
- Abundant natural light from expansive floor-to-ceiling windows
- Modern open-plan kitchen with integrated appliances
- Two generous bedrooms and two bathrooms, including en-suite
- Includes private, secure allocated parking and concierge service
- Excellent location near York’s historic attractions, cafes, and schools
- Leasehold with approximately 975 years remaining and low ground rent (£150)
This exceptional second-floor apartment at Westgate offers a unique blend of comfort and style, making it an ideal choice for families, professionals, or investors. With a spacious living area that opens to a generous balcony, you'll enjoy city views and an inviting atmosphere. The well-equipped kitchen and contemporary design provide a functional space for entertaining or relaxing.
The two double bedrooms, including a principal suite with an en-suite shower room, accommodate different lifestyle needs. A further room offers versatile use, perfect for storage or as an occasional space. Residents will appreciate the array of amenities, including a concierge service, secure parking, and CCTV surveillance, enhancing the overall sense of comfort and security.
Situated just outside York's historic walls, this apartment is conveniently located near vibrant local attractions, including the iconic York Minster, various restaurants, and scenic parks, creating a dynamic urban lifestyle. While the area boasts low crime rates, be aware that it sits in a bustling city environment. With its strong rental potential and modern features, this property not only presents a splendid living opportunity but also a solid investment for the discerning buyer. Don’t miss out on this prestigious residence—explore the luxury of city living today!
2 bedroom apartment for sale in Leeman Road, York, North Yorkshire, YO26 — £395,000 • 2 bed • 2 bath • 1066 ft²
2 bedroom apartment for sale in Leeman Road, York, YO26 4ZF, YO26 — £300,000 • 2 bed • 2 bath • 996 ft²
1 bedroom apartment for sale in Westgate Apartments, Leeman Road, York, North Yorkshire, YO26 — £285,000 • 1 bed • 1 bath • 666 ft²
2 bedroom apartment for sale in Westgate Apartments, Leeman Road, York, YO26 — £470,000 • 2 bed • 2 bath • 835 ft²
2 bedroom apartment for sale in Leeman Road, York, North Yorkshire, YO26 — £365,000 • 2 bed • 2 bath • 842 ft²
3 bedroom penthouse for sale in Westgate Apartments, Leeman Road, York, YO26 — £685,000 • 3 bed • 2 bath • 1708 ft²










































