Substantial countryside plot with consent and excellent development potential.
Large freehold plot approx. 10,341 sq ft with extensive countryside views
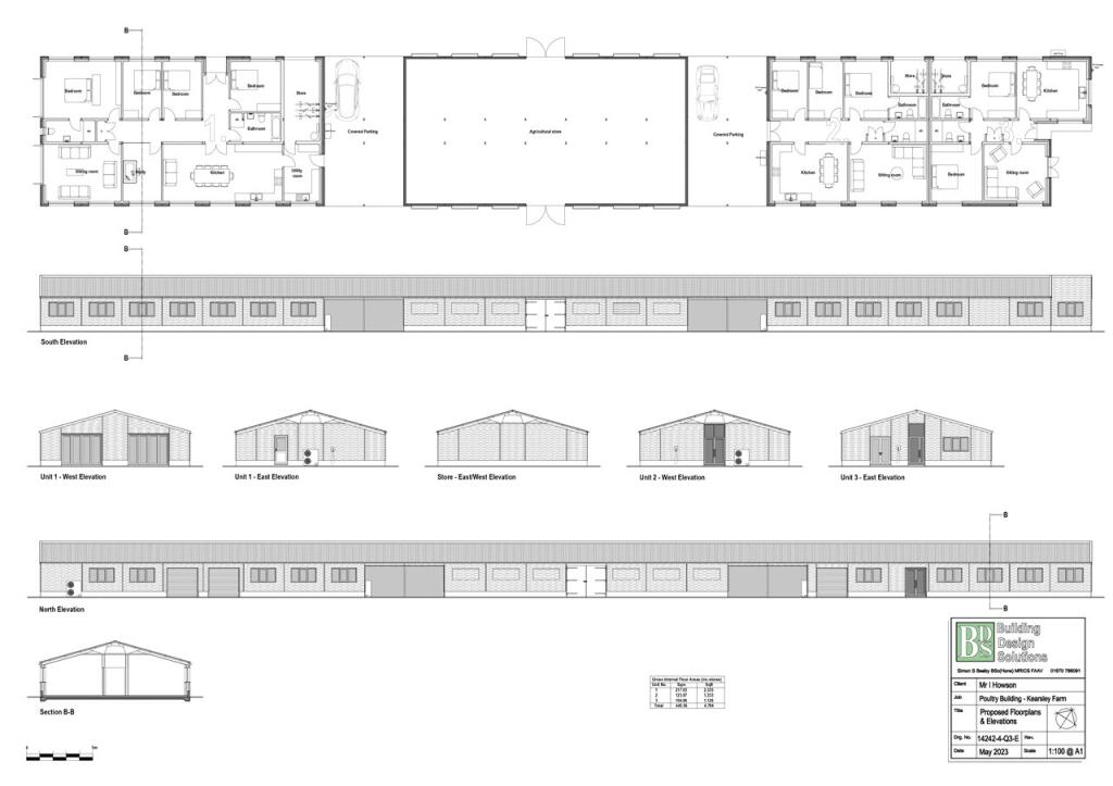
Planning consent granted (Class Q Ref. 24/00166/AGTRES); improved scheme pending
Plot 1 consented for ~3,562 sq ft house excluding garage (multi-storey)
Seller to deliver mains electricity and water; buyer pays for connections
Private foul drainage required — installation by purchaser
Very slow fixed broadband despite excellent mobile signal
Located in a very low crime, affluent rural hamlet (isolated setting)
Suitable for substantial new build or bespoke redevelopment
Set within an idyllic Tyne Valley location, Plot 1 at Kearsley Farm is a substantial freehold building plot with Class Q consent for conversion from agricultural to residential use. The site benefits from far-reaching countryside views across the valley and towards the Cheviots, and sits close to Matfen, Corbridge and Newcastle for essential amenities and transport links.
Planning permission has been granted under permitted development rights (Ref. 24/00166/AGTRES) and a further application for an improved scheme is about to be submitted to the local authority. The consented form is for a multi-storey dwelling with large internal floorspace (plot approximately 3,562 sq ft excluding garage), reception rooms, multiple bedrooms and a substantial garage — offering strong potential for a high-spec rural home or an individually designed replacement dwelling subject to approvals.
Practical considerations are straightforward but important: mains electricity and water supplies can be delivered to the site by the seller, but the buyer must arrange and pay for connections. Private foul drainage will need to be installed by the purchaser. Broadband speeds are very slow in the area despite excellent mobile signal. The site is in an affluent, very low crime area and lies in an ageing rural community setting which suits buyers seeking seclusion and countryside living rather than urban convenience.
This plot suits buyers wanting a large, private building site with planning in place and scope to enhance the permitted design. It will particularly appeal to those prepared to manage on-site infrastructure works and accept the rural utilities and connectivity limitations in exchange for a prominent countryside position and substantial development potential.
Plot for sale in Plot 2 Kearsley Farm, Ingoe, Newcastle upon Tyne, Northumberland, NE20 — £190,000 • 1 bed • 1 bath • 3481 ft²
Plot for sale in Ouston, Stamfordham, NE18 — £300,000 • 1 bed • 1 bath
Land for sale in Throphill Farm - Lot 1, Throphill, Morpeth, Northumberland, NE61 — £695,000 • 1 bed • 1 bath
Residential development for sale in Residential Development Opportunity For Sale in Heddon, Heddon Mill Farm, Heddon On The Wall, NE15 0JR, NE15 — £800,000 • 1 bed • 1 bath
Land for sale in Northside Cottages, North Side, Morpeth, NE61 — £300,000 • 1 bed • 1 bath • 23522 ft²
Land for sale in Throphill Farm, Throphill, Morpeth, Northumberland, NE61 — £1,695,000 • 1 bed • 1 bath






































