**Standout Features:**
- Freehold mixed-use investment with commercial and residential elements
- Established income from a hair salon on the ground floor
- Spacious two-bedroom, two-bathroom apartment across first and second floors
- Currently generating £15,360 per annum in rental income
- Excellent transport links with proximity to Catford and Catford Bridge stations
- Surrounded by diverse amenities and ongoing regeneration in the area
- Planning permission for various retail or service businesses subject to approval
---
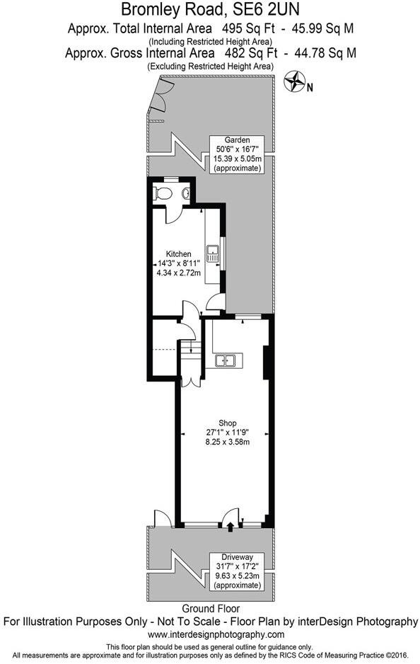
Discover this unique mixed-use property at 112 Bromley Road, offering both a commercial unit and a self-contained residential apartment in a prime location ripe for investment. The ground floor is home to a well-established hair salon, providing a reliable income stream, while the spacious two-bedroom apartment above offers potential for further rental income or personal use with its own street-level access.
Ideal for investors or families, this property combines robust rental income and expansion possibilities, benefiting from the ongoing regeneration efforts transforming Catford into a vibrant hub. With its excellent transport links and comprehensive local amenities, including schools with high Ofsted ratings, this investment opportunity is both appealing and practical.
However, potential buyers should be aware of the above-average crime rate in the local area and consider the maintenance or renovation needs that might arise with a property of this size.
Don't miss the chance to own a piece of this emerging urban space! Viewing is highly recommended to fully appreciate this property’s potential.
Studio flat for sale in Bromley Road, London, SE6 — £600,000 • 1 bed • 1 bath • 1042 ft²
Commercial property for sale in Bromley, Kent, BR2 — £625,000 • 1 bed • 1 bath • 473 ft²
Out-of-town retail property for sale in 239 & 239a Wickham Lane, London, SE2 0YB, SE2 — £515,000 • 1 bed • 1 bath • 1860 ft²
8 bedroom mixed use property for sale in Catford Bridge Tavern, Catford, London, SE6 — £1,500,000 • 8 bed • 1 bath • 12701 ft²
High street retail property for sale in 621/621a Romford Road, London, E12 — £700,000 • 3 bed • 1 bath • 2758 ft²
Commercial property for sale in Deptford High Street, SE8 — £700,000 • 3 bed • 1 bath • 2423 ft²


































































