Five-acre conversion project with views and rental potential near Dornoch.
- Detailed planning consent for three dwellings (Ref: 14/01354/FUL)
- Approximately 5 acres of fields and mature woodland
- Access works completed; planning consent enabled in perpetuity
- Close to Royal Dornoch Golf Course and Dornoch town
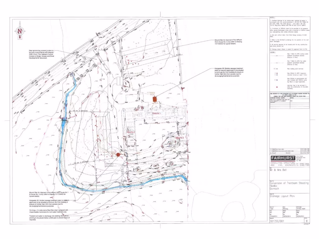
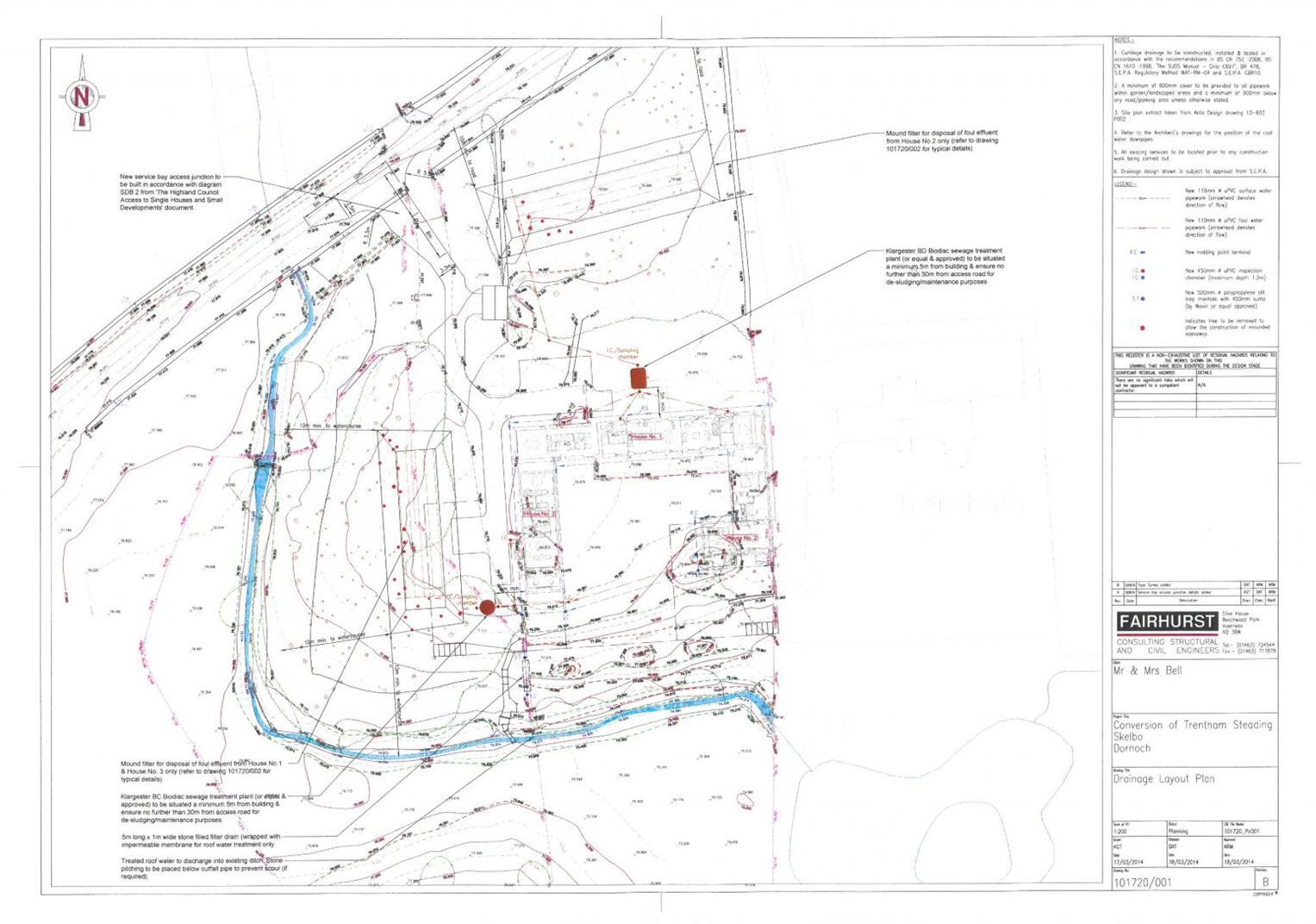
- Wastewater via septic tank and soakaways required
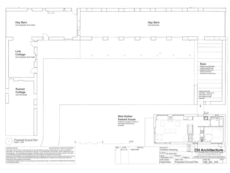
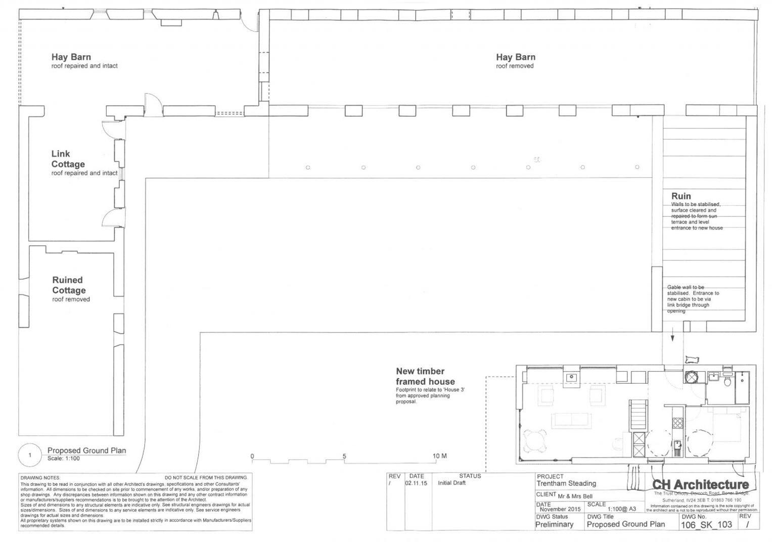
- Buildings require conversion and significant refurbishment
- Broadband very slow; mobile signal average
- Located in an ageing, sparsely populated rural area
A rare development opportunity in the Highlands with detailed planning consent for three dwellings. The former Trentham Farm Steading sits within about five acres of pasture and mature woodland, offering privacy, expansive 360-degree countryside views and close proximity to Royal Dornoch Golf Course and the town of Dornoch.
Detailed planning consent (Highland Council ref: 14/01354/FUL, granted 25 March 2015) for conversion of the steading and former workers’ cottage to three private houses is extant and enabled; access works have already been completed. The site could support one principal residence and two rental units, or be adapted to suit an owner-occupier who wants a large home with ancillary accommodation and income potential. Technical reports, plans and drainage statements are available via Highland Council planning records.
Practical considerations: services are nearby but wastewater will require a septic tank and soakaway system. Mobile signal is average and broadband speeds are very slow, which may affect home-working or digital tenants. The buildings are a period stone steading and will require conversion works and ongoing maintenance; purchasers should allow for refurbishment costs and specialist rural building consent requirements.
Set between hills, Loch Fleet and the North Sea, the plot balances seclusion with convenience — the historic town of Dornoch lies only a couple of miles away for local shops, dining and a long sandy beach. This lot is best suited to a buyer with development experience, a developer seeking a Highland project, or an investor looking for holiday or long-term let income once conversions are complete.
Plot for sale in Two Plots, Croft Pedde Ct, Elizabeth Cr, Dornoch, Sutherland, IV25 3NT, IV25 — £90,000 • 1 bed • 1 bath • 9020 ft²
Land for sale in Development Opportunity, Shore Road, Dornoch, IV25 3LS, IV25 — £190,000 • 1 bed • 1 bath
Land for sale in Hilton of Embo, Dornoch, IV25 — £120,000 • 3 bed • 1 bath
Land for sale in Plot near The Kerrow, Sciberscross, Rogart Sutherland IV8 3YF, IV28 — £45,000 • 1 bed • 1 bath • 18295 ft²
Land for sale in Croft 2, 10, 30 & 34, Backies, Golspie, KW10 — £50,000 • 1 bed • 1 bath
Land for sale in Plot at Pitfure, Rogart, Sutherland IV28 3UA, IV28 — £85,000 • 1 bed • 1 bath • 1184 ft²


































































































