Corner-plot living with modern kitchen, garden and allocated parking for practical family life.
Corner plot with garden and French doors to outside
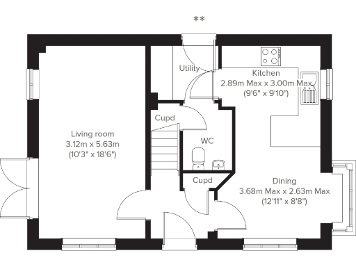
Open-plan kitchen/breakfast room with quartz worktops
Large principal bedroom with en suite shower
Separate utility room and downstairs cloakroom
Allocated off-street parking and decent plot size
New-build finish; little immediate renovation needed
Modest annual service charge of £235
Local area: high crime and very deprived — impacts resale
This generously proportioned detached house on a corner plot offers practical family living across two floors. The modern open-plan kitchen/breakfast room and dual-aspect living room with French doors create flexible entertaining space, while a separate utility and downstairs cloakroom add day-to-day convenience.
The principal bedroom benefits from an en suite and there are two further bedrooms and a family bathroom with contemporary fittings. Handy storage cupboards in the hallway and upstairs landing help keep communal areas tidy. Off-street allocated parking and a decent plot provide outside space for children and pets.
The home is a new-build, modern finish with quartz worktops and integrated appliances in the kitchen. Local schools rated Good are within reach, and fast broadband supports home working. Buyers should note the area shows high crime levels and greater local deprivation than average, which may affect family choice and resale considerations.
Service charge is modest at £235 per year. This house will suit buyers seeking roomy, low-maintenance living with renovation potential limited by its new-build condition — ideal for families prioritising practical space over a secluded or low-crime setting.
3 bedroom detached house for sale in Foots Farm, Thorpe Road, Clacton-on-Sea, Essex, CO15 4BW, CO15 — £355,000 • 3 bed • 1 bath • 386 ft²
4 bedroom detached house for sale in Foots Farm, Thorpe Road, Clacton-on-Sea, Essex, CO15 4BW, CO15 — £415,000 • 4 bed • 1 bath • 462 ft²
2 bedroom semi-detached house for sale in Foots Farm, Thorpe Road, Clacton-on-Sea, Essex, CO15 4BW, CO15 — £239,995 • 2 bed • 1 bath • 461 ft²
3 bedroom semi-detached house for sale in Foots Farm, Thorpe Road, Clacton-on-Sea, Essex, CO15 4BW, CO15 — £315,000 • 3 bed • 1 bath • 335 ft²
3 bedroom detached house for sale in Foots Farm, Thorpe Road, Clacton-on-Sea, Essex, CO15 4BW, CO15 — £345,000 • 3 bed • 1 bath • 320 ft²
4 bedroom detached house for sale in Agincourt Road, Clacton-On-Sea, CO15 — £270,000 • 4 bed • 2 bath • 1131 ft²






















































