Characterful four-bedroom town home near the harbour, ideal for lettings or city-edge living.
- Double-fronted Victorian townhouse with strong kerb appeal
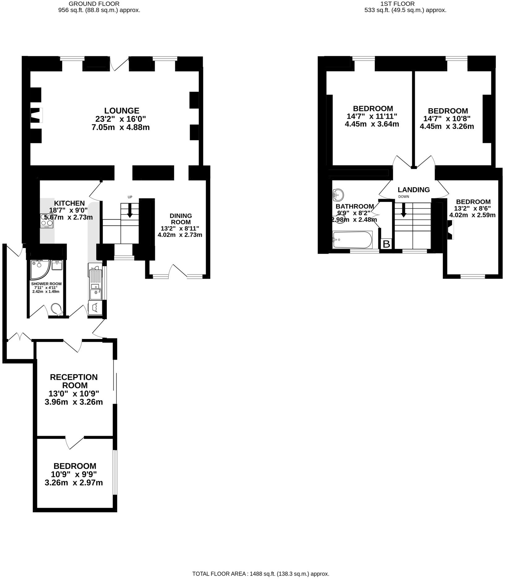
- Four bedrooms and two modern bathrooms, plus ground-floor bedroom
- Proven successful holiday let with strong rental history
- Private enclosed rear garden and small gated front courtyard
- Mains gas heating, double glazing, EPC rating D
- Medium flood risk; insurance and mitigation required
- Likely uninsulated stone walls; thermal upgrades may be needed
- Compact room sizes typical of town-centre cottages
Tucked just yards from Padstow’s quayside, Grove House is a double-fronted Victorian townhouse that balances period charm with practical living. The house offers four bedrooms, two modern bathrooms, sash windows, original floorboards and a cosy wood-burning stove — features that appeal to buyers seeking character or a high-performing holiday rental.
The ground floor provides flexible living with two reception rooms, a galley kitchen and a downstairs double bedroom with shower room — convenient for guests or multi-generation use. French doors open from the dining space onto a private, enclosed rear garden, while a small gated courtyard at the front provides low-maintenance outdoor space and direct access to Church Lane.
This property has an established track record as a successful holiday let, supported by fast broadband, excellent mobile signal and proximity to Padstow’s restaurants, shops and harbour. Practical details include mains gas central heating, double glazing (installed post-2002) and an EPC rating of D. Council tax band D.
Buyers should note some material considerations: the property sits in a medium flood-risk area, the granite walls are likely uninsulated, and room sizes are typically compact for a town-centre cottage. The house is freehold and well maintained, offering immediate occupation or continued high-yield holiday letting with modest external upkeep.
2 bedroom end of terrace house for sale in Padstow, PL28 — £295,000 • 2 bed • 1 bath • 742 ft²
4 bedroom cottage for sale in Harbours Reach, Padstow, PL28 — £895,000 • 4 bed • 2 bath • 1528 ft²
3 bedroom house for sale in Glynn Road, Padstow, PL28 — £575,000 • 3 bed • 2 bath • 1124 ft²
3 bedroom house for sale in Mill Square, Padstow, Cornwall, PL28 — £675,000 • 3 bed • 2 bath • 851 ft²
4 bedroom end of terrace house for sale in Glynn Road, Padstow, Cornwall, PL28 — £650,000 • 4 bed • 1 bath • 1066 ft²
3 bedroom cottage for sale in Cross Street, Padstow, PL28 — £668,500 • 3 bed • 2 bath • 1194 ft²


































































































