Large garden, orchard and built-in entertaining spaces for family living.
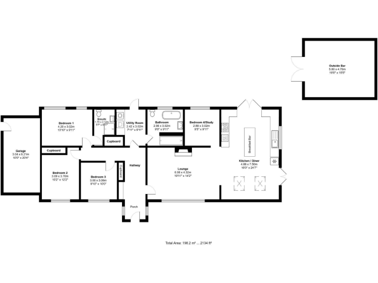
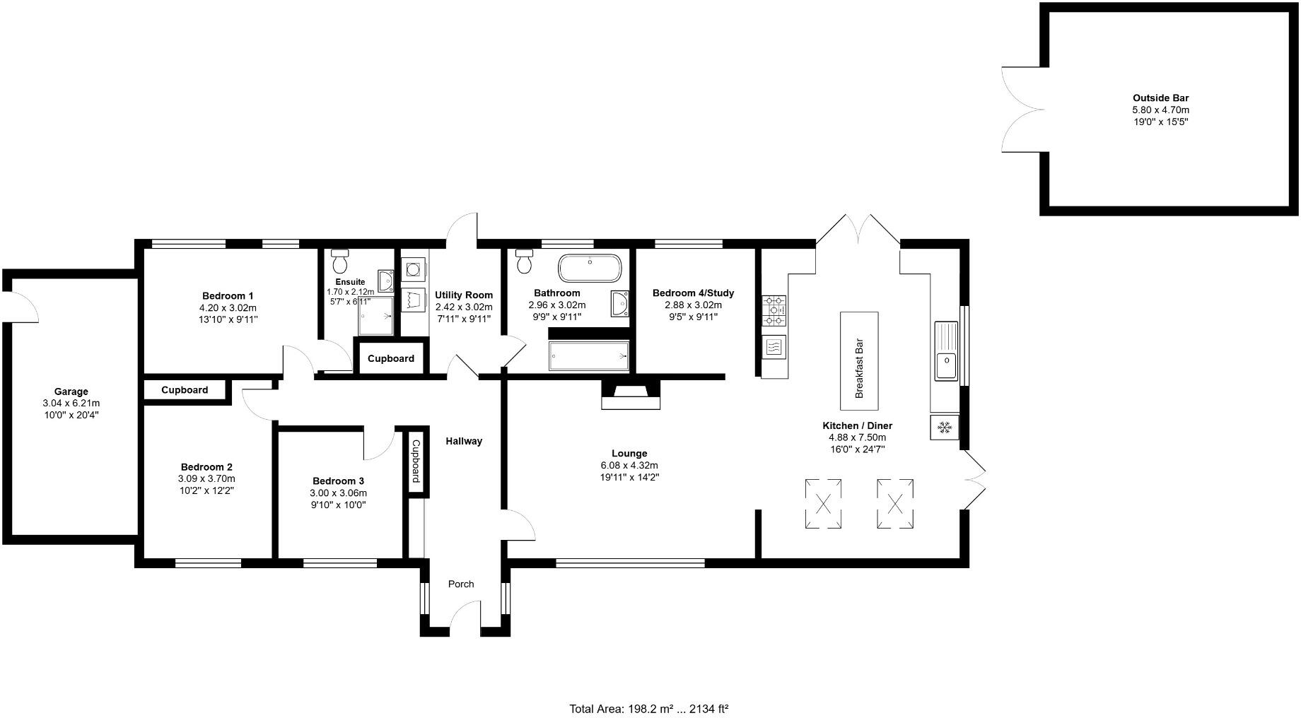
Four double bedrooms with en-suite to principal bedroom
Large open-plan kitchen/diner with central island and skylight
Extensive private garden with orchard, allotment and herb wall
Outside bar, outdoor kitchen and handmade clay pizza oven
Attached garage plus ample off-road driveway parking
Single-storey layout ideal for accessible living
Slow broadband speeds locally—affects home working/streaming
Buyer advised to commission survey; services and appliances untested
This spacious four-bedroom detached bungalow sits on a large, private plot in Briston, offering generous single-storey living and versatile family accommodation. The heart of the home is a large open-plan kitchen/dining room with a central island, skylight and French doors that open directly onto extensive garden and entertaining spaces.
Outdoor living is a standout: a dedicated outside bar, a fitted outdoor kitchen with handmade clay pizza oven, orchard, allotment with two greenhouses, and an herb wall create year-round entertaining and growing potential. Driveway parking and an attached garage provide secure parking and storage for family needs.
Practical points to note: the property is freehold, has gas central heating and mains services, but broadband speeds in the area are slow. Prospective buyers should arrange their own surveys and service checks; fixtures, fittings and appliances have not been independently tested and EPC rating is to be confirmed.
Overall this bungalow will suit families or downsizers who value generous indoor-outdoor flow, productive gardens and single-level living in a village location a short drive from the Norfolk coast and nearby towns.
3 bedroom detached bungalow for sale in Edgefield Road, Briston, NR24 — £425,000 • 3 bed • 1 bath • 792 ft²
3 bedroom detached bungalow for sale in Reepham Road, Briston, Melton Constable, Norfolk, NR24 — £375,000 • 3 bed • 1 bath • 1390 ft²
3 bedroom detached bungalow for sale in Providence Place, Briston, NR24 — £385,000 • 3 bed • 2 bath • 1544 ft²
2 bedroom detached bungalow for sale in Mill Road, Briston, Melton Constable, NR24 — £360,000 • 2 bed • 2 bath • 1216 ft²
3 bedroom detached bungalow for sale in Chain Free - A Garden-Lover’s Detached Hideaway in Leafy Briston, NR24 — £400,000 • 3 bed • 1 bath • 1064 ft²
3 bedroom detached bungalow for sale in Briston, NR24 — £350,000 • 3 bed • 1 bath • 1433 ft²










































































































































