Spacious renovated family home on nearly an acre with private mooring and three garages.
Approximately 1 acre plot with ~280ft private river frontage and private mooring
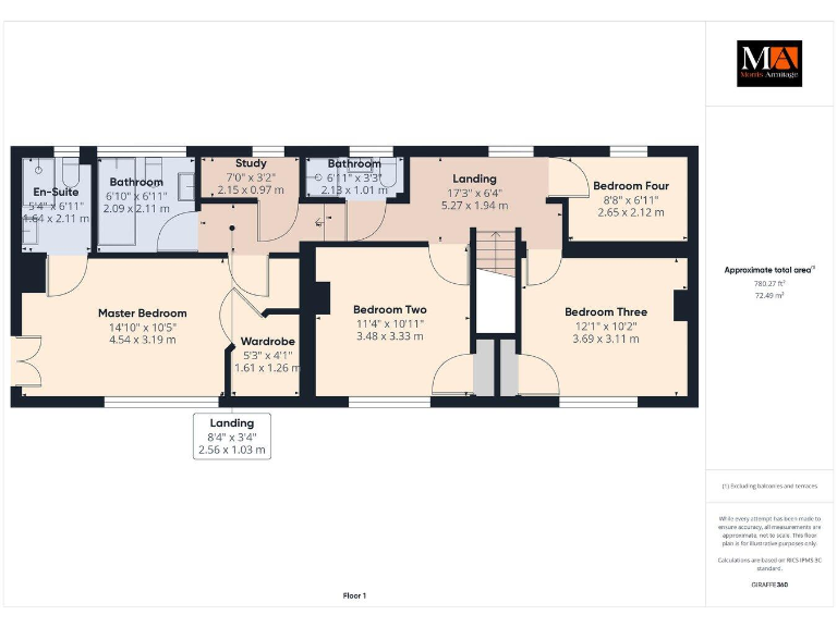
Set on almost an acre with approximately 280ft of river frontage, this newly renovated four-bedroom detached home combines spacious family living with genuine riverside potential. The house is arranged over two floors and offers flexible reception space — lounge, dining room, day room and a garden room that all connect to the grounds. The master bedroom includes an en-suite, walk-in wardrobe and a Juliet-style balcony overlooking the plot.
Practical benefits include three garages (one integral, one detached double plus workshop), a high-level carport suitable for a caravan or motorhome, ample off-street parking and a private mooring. Modern upgrades include new double glazing (post-2002), recent renovation throughout, solar panels with battery storage that currently generate an income stream, and fast broadband — useful for home working or streaming.
Buyers should note the property runs on oil-fired central heating and has cavity walls with no added insulation, contributing to its EPC D rating. The home sits within a medium flood-risk area, which affects insurance and may require mitigation. Council Tax sits in Band E, and the large grounds will require ongoing maintenance.
This house will suit families or buyers wanting riverside living with substantial outdoor space, plus those who value garaging and workshop facilities. It offers immediate move-in condition with scope for personalise, while practical considerations (fuel type, insulation, flood exposure and grounds upkeep) are important when assessing running costs and long-term energy performance.
4 bedroom detached house for sale in Waterside Gardens, March, PE15 — £525,000 • 4 bed • 2 bath • 2406 ft²
3 bedroom terraced house for sale in School Road, Upwell, Wisbech, PE14 — £400,000 • 3 bed • 2 bath • 1526 ft²
4 bedroom detached house for sale in Low Side, Upwell, Norfolk, PE14 — £440,000 • 4 bed • 1 bath • 1716 ft²
4 bedroom detached house for sale in Low Side, Upwell, PE14 — £440,000 • 4 bed • 1 bath • 1497 ft²
3 bedroom cottage for sale in West End, March, Cambs., PE15 8DE, PE15 — £400,000 • 3 bed • 2 bath • 1366 ft²
4 bedroom detached house for sale in Smeeth Road, Marshland St. James, Wisbech, Norfolk, PE14 — £465,000 • 4 bed • 2 bath • 2172 ft²






















































































































































































































