Spacious countryside home with equestrian facilities and sweeping valley views.
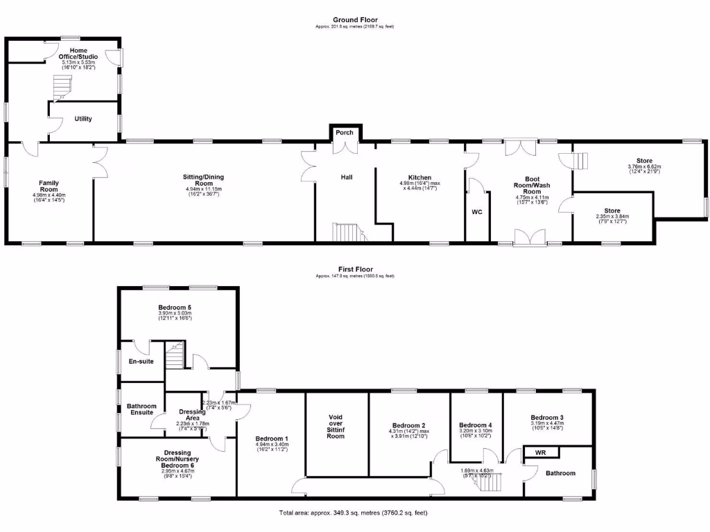
Six bedrooms and three bathrooms over 4,000 sq ft of living space
Set on roughly 13 acres with further land available, Far Mount Farm is a recently renovated six-bedroom farmhouse offering over 4,000 sq ft of flexible family accommodation. Traditional stone character, exposed beams and large arched windows frame commanding panoramic views across the Holme Valley, while extensive outbuildings, a modern agricultural barn and a four-stable yard suit equestrian or smallholding use.
The ground floor centres on a vaulted sitting room with dual fireplaces, a bespoke open-plan kitchen with high-end appliances, utility and studio/office with external access—useful for home-working or a small business. The principal suite includes twin dressing rooms and a luxury en-suite; several bedrooms and a private guest suite give scope for multigenerational living.
Practicalities are clear: the house is fully double-glazed and has LPG-fired boiler heating and an alarm system, but drainage is by septic tank and the main fuel is LPG (not mains gas). The stone walls are likely uninsulated, so buyers should budget for any desired thermal upgrading. Broadband is listed as fibre-to-cabinet yet speeds are reported very slow locally—check connectivity if working heavily online.
This is a rare rural opportunity for families seeking space, privacy and equestrian potential in a very affluent area. Notable running costs include an expensive council tax band and ongoing maintenance for substantial grounds, yard and older stone fabric. Viewings will suit buyers who value countryside outlooks and flexible living over close urban convenience.
5 bedroom barn conversion for sale in Woodhouse Lane, Holmbridge, Holmfirth, HD9 — £950,000 • 5 bed • 3 bath • 3447 ft²
8 bedroom farm house for sale in Long Causeway, Hebden Bridge, HX7 — £950,000 • 8 bed • 3 bath • 5618 ft²
4 bedroom detached house for sale in The Farmhouse, Victoria Gates, Hill House Road, Holmfirth, HD9 2SY, HD9 — £1,350,000 • 4 bed • 3 bath • 3450 ft²
4 bedroom detached house for sale in Halstead Lane, Thurstonland, HD4 — £1,250,000 • 4 bed • 3 bath • 2874 ft²
4 bedroom detached house for sale in Birkdale Farm, Birkhouse, HD6 — £1,500,000 • 4 bed • 3 bath • 5279 ft²
4 bedroom detached house for sale in Wadsworth Banks Farm, Raw Lane, Mytholmroyd, Hebden Bridge, HX7 — £995,000 • 4 bed • 2 bath • 3587 ft²










































































































































































































