Low-maintenance family home with garage and handy transport links.
Four bedrooms across two floors, suitable family layout
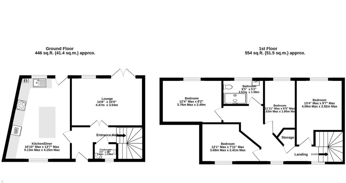
A practical four-bedroom mid-terrace arranged across two floors, suited to a growing family or buy-to-let purchaser. The ground floor offers a bright lounge with French doors to a low-maintenance paved rear courtyard and a large kitchen/diner with island and built-in ovens — useful for family meals and everyday living. Upstairs are four bedrooms and a modern shower room; the layout works well for children and study space.
Built in the mid-2000s, the house benefits from double glazing, a gas central heating system with combi boiler and cavity-wall construction. Outside there is a single garage with a parking space to the front and a small, enclosed rear garden laid to patio and raised decking — easy to maintain and practical for entertaining. Council tax is described as affordable, and nearby schools, bus routes and the M5/Rail links make commutes and school runs straightforward.
Notable points to consider: the property footprint is modest for four bedrooms, and there is a single shower room rather than an en suite plus family bathroom. Presentation is good but scope for modest cosmetic updating could increase value. The vendor has found onward accommodation, which may speed completion for a buyer ready to move quickly.
Overall this is a sensible family home in a quiet, aspirational urban neighbourhood — low maintenance, well-located and with straightforward parking and storage via the garage. It will appeal to buyers wanting move-in ready accommodation with potential for small improvements rather than a major renovation.
4 bedroom detached house for sale in Goosey Lane, St. Georges, Weston-Super-Mare, BS22 — £450,000 • 4 bed • 1 bath • 1187 ft²
4 bedroom town house for sale in Saxon Court, St Georges - 4 BEDS, 2 EN SUITES + DOUBLE GARAGE , BS22 — £299,950 • 4 bed • 3 bath • 1011 ft²
4 bedroom terraced house for sale in The Badgers, St Georges - GREAT VALUE 4 BED, BS22 — £275,000 • 4 bed • 1 bath • 1001 ft²
2 bedroom terraced house for sale in Hambledon Road, Weston-super-Mare - PERFECT FOR FIRST-TIME BUYER, BS22 — £235,000 • 2 bed • 1 bath
2 bedroom semi-detached house for sale in Oak Court, St. Georges, Weston-super-Mare, BS22 — £215,000 • 2 bed • 1 bath • 658 ft²
3 bedroom end of terrace house for sale in Riverside Close, St. Georges, Weston-super-Mare, North Somerset, BS22 — £280,000 • 3 bed • 2 bath • 844 ft²






























































