Single-floor living with large driveway and low-maintenance garden.
No chain — ready for prompt completion
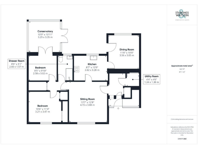
This extended two-bedroom detached bungalow on a large plot in Freethorpe offers single-level living and immediate move-in convenience. Light, well-proportioned rooms include a 17' sitting room, separate dining room and a 10' conservatory with French doors to a private, low-maintenance garden. A large brick-weave driveway provides generous off-street parking and direct access to a timber workshop.
The accommodation is practical for downsizers seeking space and easy circulation: two double bedrooms, fitted storage (including a walk-in wardrobe and airing cupboard) and a functional kitchen overlooking the garden. Solar panels are fitted, which can help running costs, while the property is chain-free for a quicker completion.
Buyers should note some material points: the property uses electric storage heating and electricity as the main fuel, the external walls are a system-built type with assumed lack of insulation, and the roof shows dated wear. Broadband speeds are slow in the area and the EPC is D. These factors may mean further investment is needed to improve energy performance and long-term running costs.
Overall, this bungalow is a comfortable, characterful home in a quiet village setting with scope to modernise and enhance efficiency. It will suit buyers wanting single-floor living with immediate garden and parking benefits, and those happy to undertake sympathetic updates to reduce future energy bills.
2 bedroom detached bungalow for sale in Rider Haggard Way, Ditchingham, Bungay, NR35 — £240,000 • 2 bed • 1 bath • 1046 ft²
3 bedroom detached bungalow for sale in Blofield Corner Road, Blofield Heath, Norwich, NR13 — £500,000 • 3 bed • 1 bath • 1227 ft²
2 bedroom detached bungalow for sale in Fletcher Way, Acle, Norwich, NR13 — £285,000 • 2 bed • 1 bath • 751 ft²
2 bedroom detached bungalow for sale in Spruce Crescent, Poringland, Norwich, NR14 — £290,000 • 2 bed • 1 bath • 759 ft²
2 bedroom semi-detached house for sale in The Green, Freethorpe, Norwich, NR13 — £225,000 • 2 bed • 1 bath • 575 ft²
2 bedroom detached bungalow for sale in Mill Road, Ellingham, Bungay, NR35 — £300,000 • 2 bed • 1 bath • 898 ft²


























































































