Large garden and outbuildings ideal for growing families or renovation projects.
Five bedrooms and three bathrooms, including two ensuites
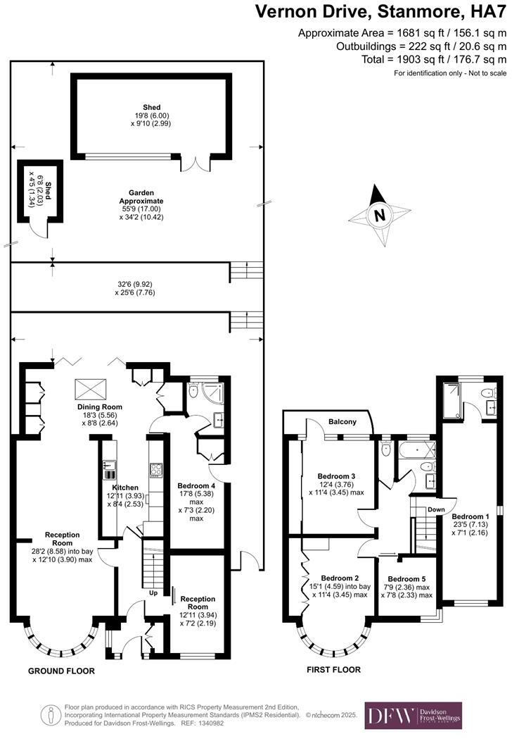
A substantial 1930s semi‑detached family house arranged over two storeys, offering flexible five‑bedroom accommodation and three bathrooms. The principal bedroom includes an ensuite, and a ground‑floor bedroom with ensuite plus a separate study make the layout well suited to multigenerational family life or home working. The long rear garden (approaching 90') and large outbuildings (circa 200 sq ft) provide valuable outdoor space and useful ancillary storage or workspace.
The house retains period character such as bay windows and a gabled roof but presents opportunities for updating. The internal finish is generally bright and contemporary in parts, with open-plan reception and bi‑fold/sliding doors to the garden, yet some modernization and energy‑efficiency improvements are likely desirable — the solid brick walls are assumed uninsulated and the double glazing install date is unknown. Council tax is above average (Harrow band E).
Set on Vernon Drive in Stanmore, the property sits in a popular family area within the catchment for several highly rated schools including The Sacred Heart Language College and nearby primary schools. Driveway parking, easy access to local amenities and good transport and digital connectivity add to the practical appeal. Overall, this is a roomy, characterful family home with a large garden and clear potential for refurbishment to increase comfort and value.
4 bedroom semi-detached house for sale in Lansdowne Road, Stanmore, HA7 — £975,000 • 4 bed • 2 bath • 1681 ft²
5 bedroom semi-detached house for sale in The Highway, Stanmore, HA7 — £700,000 • 5 bed • 2 bath • 1788 ft²
5 bedroom end of terrace house for sale in Stanmore Hill, Stanmore, HA7 — £795,000 • 5 bed • 1 bath • 2189 ft²
5 bedroom semi-detached house for sale in Chartley Avenue, Stanmore, HA7 — £895,000 • 5 bed • 2 bath • 1560 ft²
4 bedroom semi-detached house for sale in Vernon Drive, Stanmore, HA7 — £800,000 • 4 bed • 2 bath • 1693 ft²
3 bedroom house for sale in Sitwell Grove, Stanmore, HA7 — £599,999 • 3 bed • 1 bath • 1088 ft²










































































