Chain free Victorian terrace near Southall Elizabeth Line — ideal for families and refurb investors..
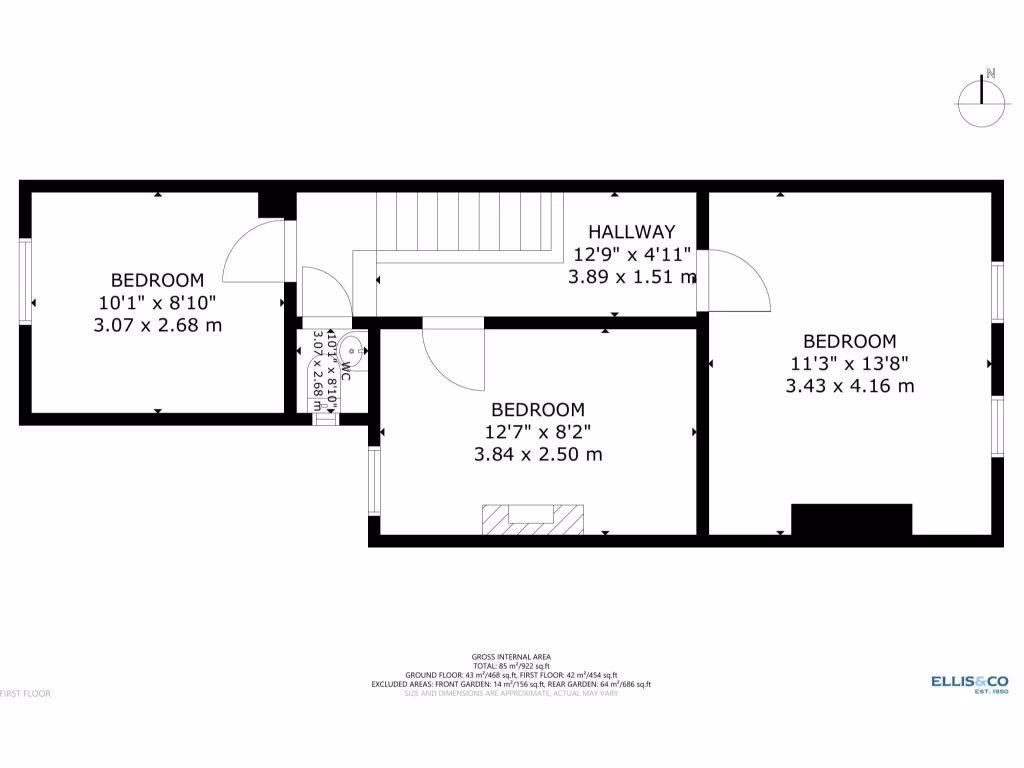
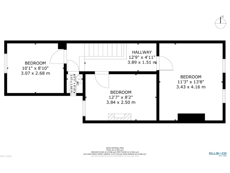
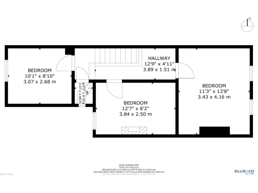
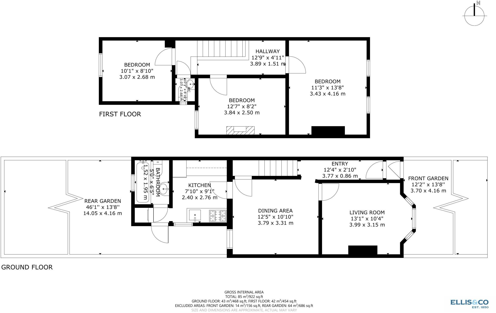
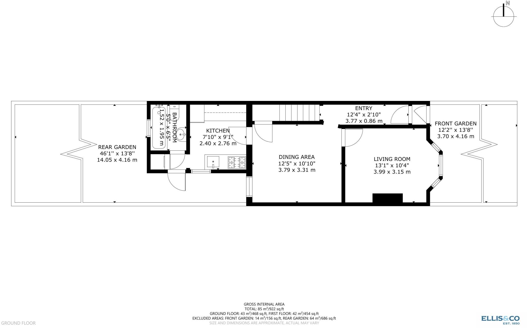
- 922 sq ft internal area, three bedrooms
- Freehold, chain free sale
- Two reception rooms and separate kitchen
- One bathroom plus separate WC
- West-facing rear garden; overgrown, needs work
- Solid brick walls; no assumed cavity insulation
- Walking distance to Elizabeth Line (Southall)
- Close to several highly rated schools
A spacious Victorian mid-terrace arranged over two storeys, this freehold three-bedroom home offers 922 sq ft of practical living in Southall UB2. The layout includes two reception rooms, a separate kitchen, one bathroom plus a separate WC — a flexible plan well suited to families or first-time buyers seeking room to grow. The property is chain free and within comfortable walking distance of Southall station (Elizabeth Line), with strong bus links to Northolt, Hounslow and Heathrow.
The house retains period character externally with bay windows and a brick façade, and benefits from full double glazing and a mains-gas boiler serving radiators. It lies close to several Ofsted-rated schools, including outstanding and good-rated secondaries and primaries, making the location attractive for pupils and parents.
Practical considerations: the rear garden faces west but is overgrown and will need clearing and basic landscaping; the plot is small. The property is constructed of solid brick with no assumed cavity insulation — buyers should allow for possible upgrade costs. The area scores as deprived overall and local crime is average; broadband and mobile signal are strong.
This mid-terrace suits buyers prepared to modernise and personalise rather than move in without works. It offers commuter convenience, school access and refurbishment potential for future value uplift.
3 bedroom terraced house for sale in Leonard Road, Southall, UB2 — £500,000 • 3 bed • 2 bath • 881 ft²
3 bedroom end of terrace house for sale in Trinity Road, London, UB1 — £575,000 • 3 bed • 1 bath • 872 ft²
3 bedroom end of terrace house for sale in Allenby Road, Southall, UB1 — £500,000 • 3 bed • 1 bath • 916 ft²
3 bedroom terraced house for sale in Tudor Road, Southall UB1 — £550,000 • 3 bed • 2 bath • 1037 ft²
3 bedroom terraced house for sale in Queens Road, Southall, UB2 — £470,000 • 3 bed • 1 bath • 953 ft²
3 bedroom terraced house for sale in Allendale Avenue, Southall, UB1 — £545,000 • 3 bed • 1 bath • 818 ft²






























































































