Freehold 38-cover bistro with furnished 2-bed maisonette and private roof terrace..
- Freehold, chain-free sale of restaurant plus two-bedroom maisonette
- Profitable fine-dining restaurant; reported turnover approx. £150,000 p.a.
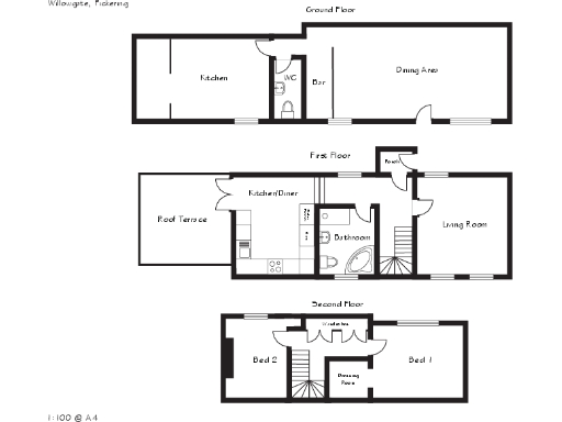
- Licensed 38-cover dining room with custom oak bar and commercial kitchen
- Maisonette: 2 double bedrooms, luxury bathroom, private roof terrace
- Separate utilities and entrances — owner-occupier or split-let potential
- Trading currently Thurs–Sat evenings only; scope to expand trading days
- Restaurant EPC C (valid to 2034) and rateable value £5,900
- Small plot in busy market-place location; requires active management
A rare freehold opportunity in Pickering: a long-established, profitable fine-dining restaurant with a two-storey, fully furnished 2-bedroom maisonette above. The ground-floor bistro is licensed for 38 covers, has a custom oak bar, a well-equipped commercial kitchen and dry storage, and currently achieves a reported turnover of around £150,000 per year. The business trades Thursday to Saturday evenings but offers clear scope to increase trading days and revenue. The restaurant holds an EPC rating of C (valid until 2034) and a rateable value of £5,900.
The maisonette is light and spacious, arranged over two floors with a large sitting room overlooking the market place, a newly built luxury kitchen/dining area that opens onto a private roof terrace with a church view, a luxury bathroom and two double bedrooms (one with a walk-in dressing room). Residential and business utilities and entrances are separate, making this suitable for an owner-operator lifestyle business or as a combined investment (lettable maisonette and trading restaurant).
Practical considerations are stated plainly: trading is currently limited to three evenings per week, and full accounts are available only to interested parties after viewing. The plot is small and the property sits in the busy market-place location, which suits tourism-led trade but may require hands-on management. Council tax for the maisonette is band A. This sale is chain-free and offered as freehold, making a swift purchase possible for the right buyer.
Restaurant for sale in Willowgate, Pickering, YO18 — £575,000 • 2 bed • 1 bath
2 bedroom cottage for sale in 8 Willowgate, Pickering, North Yorkshire, YO18 7BE, YO18 — £280,000 • 2 bed • 1 bath • 750 ft²
Commercial property for sale in Bridge Street, Pickering, YO18 — £290,000 • 3 bed • 3 bath • 1399 ft²
High street retail property for sale in Market Place, Pickering, North Yorkshire, YO18 — £250,000 • 1 bed • 1 bath • 2888 ft²
5 bedroom house for sale in Hungate, Pickering, YO18 — £600,000 • 5 bed • 2 bath • 2950 ft²
2 bedroom cottage for sale in 3 Willowgate, Pickering, YO18 7BE, YO18 — £215,000 • 2 bed • 1 bath • 650 ft²






























































































































































