**Standout Features:**
- 2-bedroom detached bungalow with off-road parking
- No chain, ideal for quick and easy purchase
- Contemporary kitchen with breakfast bar and good natural light
- Low crime rate in a very affluent area
- Spacious rear garden with vegetable plot and greenhouse
**Notable Concerns:**
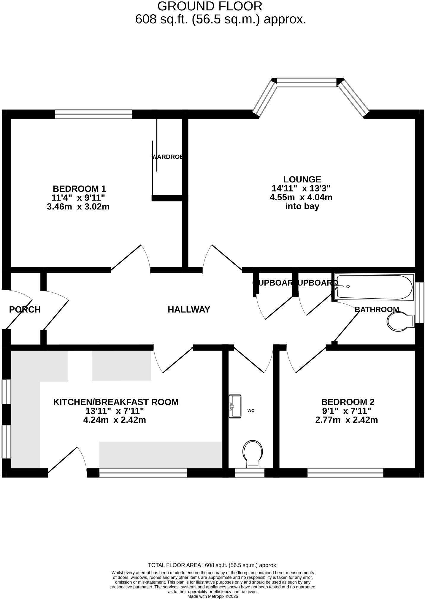
- Smaller overall size at 608 sq ft
- Limited room count (3 rooms total)
Welcome to this charming 2-bedroom detached bungalow, perfectly situated in an affluent and tranquil area. This property offers a unique opportunity for first-time buyers or investors looking for a cozy investment with no chain, ensuring a speedy purchase. Enjoy spacious living in the lounge with a bay window and a gas fireplace, a kitchen/breakfast room fitted with modern cabinetry and ample natural light, and two inviting bedrooms.
The exterior features a manageable garden that is well-fenced, complete with a terraced area for cultivation and a cozy fishpond. Off-road parking adds convenience, while UPVC double glazing and gas central heating ensure comfort and efficiency. The neighborhood is family-friendly, with several good-rated schools nearby, making it an ideal choice for young families. While the bungalow may feel a bit smaller, the potential for renovation or extension allows for future growth and personalization. Don’t miss this opportunity—properties like this in such a desirable location are rare!
3 bedroom detached bungalow for sale in Waltons Avenue, Holbury, SO45 — £332,500 • 3 bed • 1 bath • 892 ft²
2 bedroom detached bungalow for sale in The Vale, Hythe, SO45 — £285,000 • 2 bed • 1 bath • 396 ft²
2 bedroom bungalow for sale in Waltons Avenue, Holbury, SO45 — £309,950 • 2 bed • 1 bath • 736 ft²
2 bedroom bungalow for sale in Crawte Avenue, Holbury, Southampton, Hampshire, SO45 — £299,950 • 2 bed • 1 bath • 702 ft²
2 bedroom detached bungalow for sale in Solent Drive, SO45 — £339,950 • 2 bed • 1 bath • 700 ft²
2 bedroom detached bungalow for sale in Curlew Walk, SO45 — £289,950 • 2 bed • 1 bath • 716 ft²


















































