Ideal single-storey home for downsizers seeking peace, space and local convenience.
Detached two-bedroom bungalow on a large plot
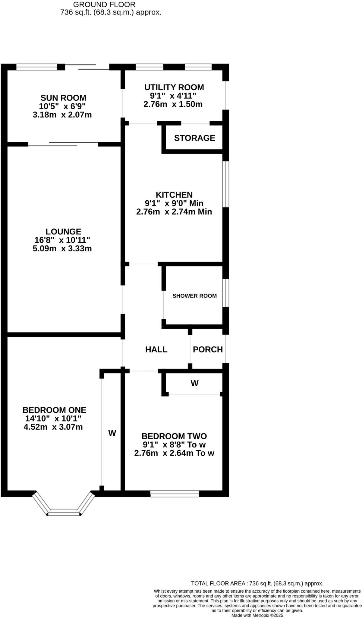
This detached two-bedroom bungalow sits on a large plot with a generous rear garden and a patio — ideal for relaxed outdoor living and summer entertaining. The lounge opens into a bright sunroom that brings extra light into the living space; a separate utility room and garage add practical storage and parking.
Set in a comfortable, affluent neighbourhood with very low crime, the house offers straightforward single-storey living for buyers seeking ease of access. Local facilities and good-rated primary and secondary schools are a short walk away, and mobile and broadband connections are strong — useful for remote working or keeping connected.
The property is a mid-20th-century build with small-to-medium rooms and standard ceiling heights; some buyers may find aspects of the interior feel dated and light levels depend on the smaller windows. There is only one shower room, which could prove limiting for some households. The home is freehold with affordable council tax and no flood risk recorded.
Overall, this bungalow will suit downsizers or buyers wanting a manageable, detached home with a large garden and parking, and offers scope for modest updating to better suit modern tastes.
2 bedroom detached bungalow for sale in Fawley, Southampton, Hampshire, SO45 — £325,000 • 2 bed • 1 bath • 479 ft²
3 bedroom bungalow for sale in Dibden Purlieu, Southampton, SO45 — £478,000 • 3 bed • 1 bath • 753 ft²
2 bedroom bungalow for sale in Bath Road, Southampton, Hampshire, SO19 — £350,000 • 2 bed • 1 bath • 763 ft²
2 bedroom bungalow for sale in Dalewood Road, Fareham, Hampshire, PO15 — £375,000 • 2 bed • 1 bath • 865 ft²
2 bedroom bungalow for sale in Moorhill Gardens, Southampton, Hampshire, SO18 — £350,000 • 2 bed • 1 bath • 1228 ft²
2 bedroom bungalow for sale in Emerald Close, Southampton, Hampshire, SO19 — £325,000 • 2 bed • 1 bath • 700 ft²


























































