Secluded hilltop setting with viaduct views and planning application in place.
Very large freehold plot with valley and viaduct views
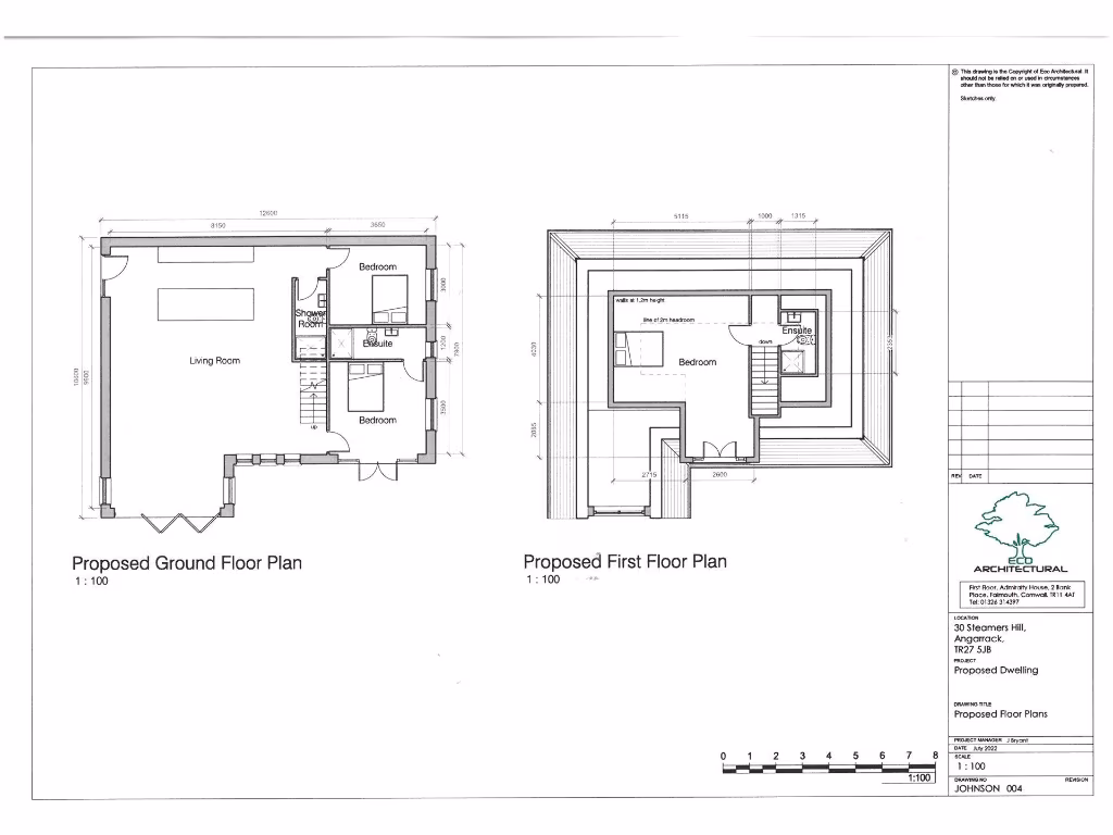
A rare, very large freehold parcel on Steamers Hill offering broad, uninterrupted views across the valley and a historic viaduct. The site is presented with a planning application on record (PA22/07154) and the illustrative drawings show potential for contemporary single-storey accommodation that would take advantage of the rural outlook.
This plot suits a buyer seeking development potential or a bespoke owner‑built home in a peaceful village setting. Services appear available (electricity noted) and the site’s size allows flexible layout options; the illustrative scheme suggests around six rooms and roughly 2,741 sq ft of internal accommodation if built to the shown design.
Buyers must weigh material constraints: the site lies in a high flood‑risk area and the local area shows higher deprivation indicators. Broadband speeds are very slow despite excellent mobile signal; planning permission is referenced as an application (PA22/07154) and should be confirmed with the local planning authority before purchase.
Practical advantages include freehold tenure, immediate countryside access, nearby schools rated ‘Good’, and a tranquil meadow/stream setting. The combination of scale, views and an existing planning reference gives clear scope for a considered design — but flood mitigation, connectivity upgrades and any planning conditions will be necessary parts of delivery.
Plot for sale in Plot with outline planning for two dwellings, Hayle, TR27 — £500,000 • 1 bed • 1 bath
Land for sale in Exciting opportunity, Near Trannack, TR13 — £250,000 • 1 bed • 1 bath
Plot for sale in Opportunity to create a home in Carharrack, TR16 — £150,000 • 1 bed • 1 bath
Plot for sale in West Tolgus Illogan - Individual building plot with rural views, TR15 — £280,000 • 1 bed • 1 bath
Land for sale in Canonstown, Hayle, TR27 — £145,000 • 1 bed • 1 bath • 1175 ft²
Plot for sale in Trewennack, Helston, TR13 — £120,000 • 4 bed • 2 bath


















