**Standout Features:**
- Charming 4-bedroom detached character cottage dating back to the 1700s.
- Spacious grounds of approximately 2 acres, including mature gardens, woodland, and a paddock.
- Range of outbuildings, including a double garage and potential for conversion to accommodate multi-generational living.
- Located minutes from the village of Stithians, with easy access to Truro and Falmouth.
**Summary:**
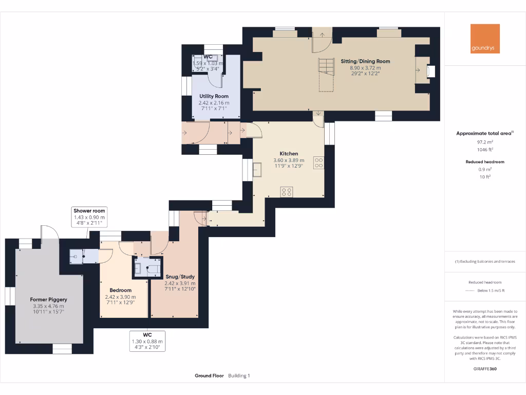
Discover the rustic charm of Treskewes Cottage, a delightful 4-bedroom character property set in a serene rural location near Stithians. Spanning approximately 2 acres, this haven boasts lush gardens, mature woodland, and a paddock, perfect for gardening enthusiasts or those seeking a peaceful retreat. Inside, character abounds with exposed beams, an inglenook fireplace, and a cozy wood burner in the spacious lounge/dining room — ideal for family gatherings.
This property's unique layout offers flexible living spaces, making it perfect for multi-generational households. Two ground-floor rooms can easily be transformed into a self-contained annexe, subject to planning approval, allowing for future customization. While the property requires a bit of maintenance (EPC rating of F) and has limited broadband speeds, its potential for growth and personalization is immense.
Enjoy low-crime living in a picturesque village with essential amenities and nearby quality schools. With Truro and Falmouth just a short drive away, this property not only provides comfort and space but also the perfect blend of rural tranquility and accessibility. Viewing is highly recommended to fully appreciate the unique qualities and investment potential Treskewes Cottage has to offer. Don’t miss out!
 4 bedroom cottage for sale in Character cottage in peaceful location Nr Ponsanooth, TR3 — £425,000 • 4 bed • 1 bath • 984 ft²
 4 bedroom cottage for sale in Character cottage in peaceful location Nr Ponsanooth, TR3 — £425,000 • 4 bed • 1 bath • 984 ft² 4 bedroom detached house for sale in Fernsplatt, Truro, TR4 — £600,000 • 4 bed • 3 bath • 1539 ft²
 4 bedroom detached house for sale in Fernsplatt, Truro, TR4 — £600,000 • 4 bed • 3 bath • 1539 ft² 4 bedroom cottage for sale in Come-To-Good, Feock, TR3 — £795,000 • 4 bed • 2 bath • 2200 ft²
 4 bedroom cottage for sale in Come-To-Good, Feock, TR3 — £795,000 • 4 bed • 2 bath • 2200 ft² 2 bedroom cottage for sale in Stithians, Truro- Delightful cottage, TR3 — £250,000 • 2 bed • 1 bath • 926 ft²
 2 bedroom cottage for sale in Stithians, Truro- Delightful cottage, TR3 — £250,000 • 2 bed • 1 bath • 926 ft² 4 bedroom cottage for sale in Trehaddle, Truro, TR4 — £550,000 • 4 bed • 3 bath • 1900 ft²
 4 bedroom cottage for sale in Trehaddle, Truro, TR4 — £550,000 • 4 bed • 3 bath • 1900 ft² 4 bedroom detached house for sale in Perranarworthal,  Near Truro, TR3 — £975,000 • 4 bed • 3 bath • 2173 ft²
 4 bedroom detached house for sale in Perranarworthal,  Near Truro, TR3 — £975,000 • 4 bed • 3 bath • 2173 ft²










































































































