Spacious renovated one-bedroom with balcony, near Slough transport links..
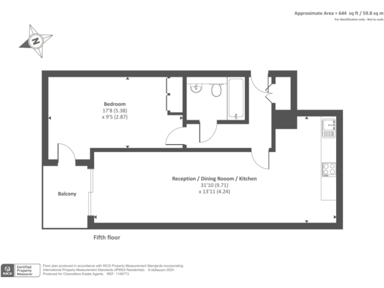
Recently renovated one-bedroom apartment, approximately 644 sq ft
A recently renovated one-bedroom flat in central Slough, presented with a modern kitchen, family bathroom and a balcony. The open-plan living area and compact, contemporary kitchen suit city renters or a professional couple seeking low-maintenance accommodation close to transport. At about 644 sq ft the apartment is large for a one-bedroom and benefits from double glazing and electric underfloor heating.
The property is leasehold with 107 years remaining from a 2007 lease, offering long-term security for buyers and investors. It sits less than a mile from Slough transport links and local amenities, making it straightforward to let. Broadband and mobile signal are strong, supporting home working and tenant demand.
Buyers should note the immediate context: the wider area is classified as deprived with relatively high local crime levels, which can affect tenant pool and rental values. Schools in the area vary in performance, and one nearby state secondary currently holds an Inadequate Ofsted rating.
This apartment is best suited to investors or first-time buyers prioritising location, modern finish and rental potential. Running costs may be higher than gas-heated properties due to electric underfloor heating; there are no reported flood risks and the flat is newly renovated, reducing near-term capital expenditure.
1 bedroom apartment for sale in Windsor Road, Slough, Berkshire, SL1 — £199,950 • 1 bed • 1 bath • 504 ft²
1 bedroom flat for sale in Mill Street, Slough, SL2 — £170,000 • 1 bed • 1 bath • 426 ft²
1 bedroom apartment for sale in High Street, Slough, SL1 — £140,000 • 1 bed • 1 bath • 431 ft²
1 bedroom flat for sale in 26 High Street, Slough, SL1 — £225,000 • 1 bed • 1 bath • 580 ft²
1 bedroom apartment for sale in Windsor Road, Slough, SL1 — £215,000 • 1 bed • 1 bath
1 bedroom flat for sale in Bath Road, Slough, Berkshire, SL1 — £180,000 • 1 bed • 1 bath • 400 ft²


















































