Compact one-bedroom garden flat with share of freehold and renovation potential..
- One-bedroom semi-basement garden flat with private suntrap garden
- Share of freehold; very long lease (986 years)
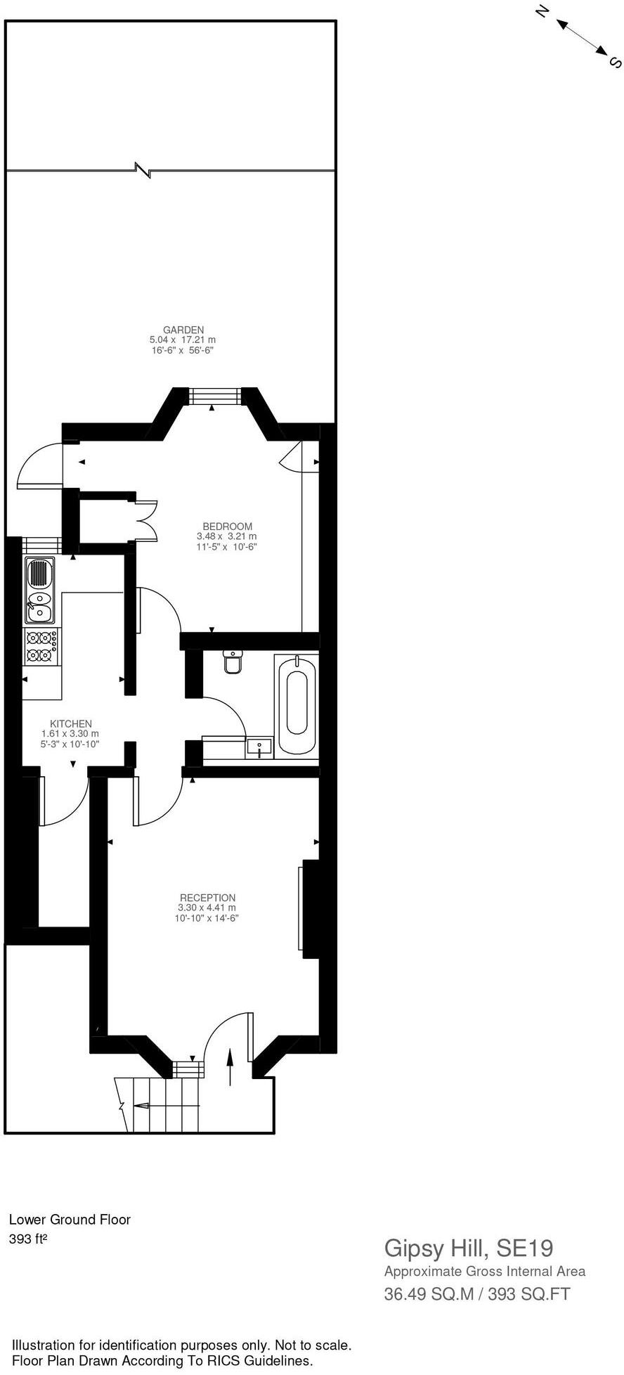
- Compact living: approx. 393 sq ft (small overall size)
- Requires internal renovation and updating throughout
- Double glazing installed after 2002; high ceilings and period features
- Solid brick construction; walls likely uninsulated (as built)
- Side-street parking; excellent mobile signal and fast broadband
- Local area: close to Crystal Palace Triangle, but above-average crime
This one-bedroom garden flat occupies a semi-basement position within a handsome Georgian conversion, moments from the Crystal Palace Triangle. The apartment includes a private suntrap garden accessed from the bedroom, large windows, and double glazing fitted after 2002. It comes with a share of freehold and an exceptionally long remaining lease (986 years), simplifying future ownership.
Internally the flat is compact (approximately 393 sq ft) and requires renovation, which is reflected in the asking price. The layout offers a separate kitchen, open-plan reception/dining area and a bedroom that opens onto the garden — a rare outdoors space for this property type. Heating is by mains gas boiler and radiators; the building is solid brick and likely uninsulated in the walls.
Practical considerations: side-street parking and excellent mobile and fast broadband make the flat well connected, but the immediate area records above-average crime. This property will suit a first-time buyer or investor comfortable with a modest renovation and seeking outdoor space, period character and excellent local amenities and transport links.
1 bedroom flat for sale in Gipsy Hill, Crystal Palace, London, SE19 — £350,000 • 1 bed • 1 bath • 468 ft²
1 bedroom flat for sale in Anerley Hill, London, SE19 — £350,000 • 1 bed • 1 bath • 622 ft²
2 bedroom flat for sale in Gatestone Road, London, SE19 — £525,000 • 2 bed • 1 bath • 768 ft²
1 bedroom flat for sale in Woodland Road, Upper Norwood, London, SE19 — £335,000 • 1 bed • 1 bath • 658 ft²
2 bedroom apartment for sale in Woodland Hill, London, SE19 — £550,000 • 2 bed • 1 bath • 942 ft²
1 bedroom apartment for sale in Gipsy Hill, London, SE19 — £400,000 • 1 bed • 1 bath • 552 ft²






































































