Spacious village home with large south-facing gardens and far-reaching Downs views.
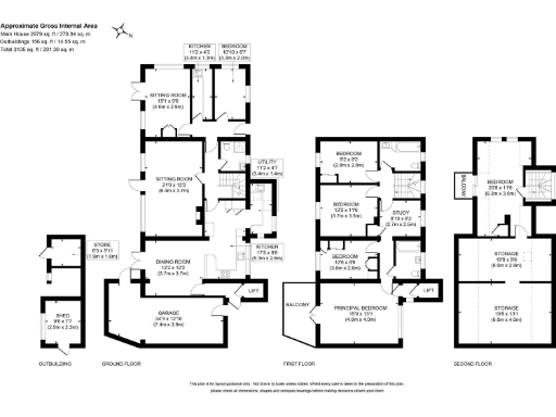
Substantial three-storey detached house with large garden and terraces
Set on an elevated plot in a quiet private lane, this substantial three-storey detached house combines generous living space with extensive south-facing gardens and wide views across the Wildbrooks to the South Downs. Solar water heating and a photovoltaic array reduce running costs, while an integral garage, remote-controlled gated driveway and plentiful off-street parking add everyday convenience. The lift between ground and first floors gives easy access to the principal bedroom and could suit anyone seeking adaptable accommodation.
The interior offers a flexible layout including two ground-floor reception rooms, a study/ground-floor bedroom, kitchen/dining space and a utility area, with a principal suite and three further bedrooms across the first floor, plus a fifth bedroom and attic rooms on the second. Large terraces, balconies and a mature orchard with greenhouse, fruit cage and vegetable beds make the outside space highly versatile for entertaining or producing home-grown food. Village shops and the mainline station are an easy walk away.
Important practical points: the house needs modernisation and some updating to heating and insulation (cavity walls assumed uninsulated), and council tax is noted as quite expensive. The property was largely constructed in the late 1960s–70s and benefits from double glazing installed post-2002 and an EPC C rating, but the layout and fixtures will suit buyers who want to invest to improve energy performance and interior finishes.
This home will appeal to buyers seeking generous proportions, privacy, and long views in a well-connected village setting — particularly families wanting good outdoor space close to local schools or buyers looking for refurbishment potential with renewable-energy advantages.
4 bedroom detached house for sale in Old London Road, Washington, RH20 — £550,000 • 4 bed • 2 bath • 1421 ft²
4 bedroom detached house for sale in London Road, Coldwaltham, Pulborough, West Sussex, RH20 — £725,000 • 4 bed • 2 bath • 2530 ft²
3 bedroom detached house for sale in Browns Lane, Storrington, West Sussex, RH20 — £740,000 • 3 bed • 3 bath • 1510 ft²
3 bedroom detached house for sale in The Brackens, Storrington, RH20 — £725,000 • 3 bed • 2 bath • 1799 ft²
5 bedroom detached house for sale in Thornden, Cowfold, RH13 — £1,000,000 • 5 bed • 2 bath • 3554 ft²
5 bedroom detached house for sale in Greyfriars Lane, Storrington, West Sussex, RH20 — £1,450,000 • 5 bed • 3 bath • 2516 ft²


















































