DH7 8RT - 3 bedroom detached house for sale in Back John Street North…

View on Property Piper

3 bedroom detached house for sale in Back John Street North, Meadowfield, Durham, DH7

Summary - Bell View, Back John Street North, Meadowfield DH7 8RT

3 bed 3 bath Detached

**Standout Features:**
- Modern detached family home, built in 2022
- 3 bedrooms and 3 contemporary bathrooms
- Lounge with bi-fold doors connecting to a private garden
- Open parkland views at the rear
- Freehold title and chain-free sale
- Off-street parking with double driveway
- Located in a low-crime, affluent area

This contemporary detached house, "Bell View," is the perfect modern family home, offering stylish living with stunning parkland views. With three well-sized bedrooms and three sleek bathrooms, including an en-suite in the main bedroom, this property boasts high-quality fixtures throughout. Enjoy entertaining in the spacious lounge featuring bi-fold doors that seamlessly merge indoor and outdoor spaces, leading to a private garden complete with a patio area for al fresco dining.

Located in the desirable Meadowfield area, just three miles from Durham City Centre, you're well-connected to shopping and recreational facilities, as well as primary and secondary schools with excellent Ofsted ratings. The home's modern design and recent construction come with a 10-year architect certificate, ensuring peace of mind for future living. Although maintenance is minimal, it's essential to consider the context of a fast-moving market—homes like this, offering the best of suburban living with modern comforts and flexibility for future renovations, won't last long. Act quickly to secure your family’s new dream home!

Property Details

Image Descriptions

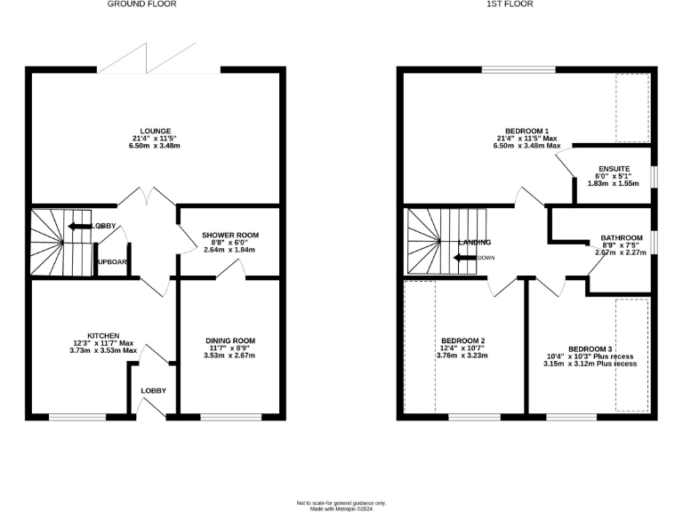
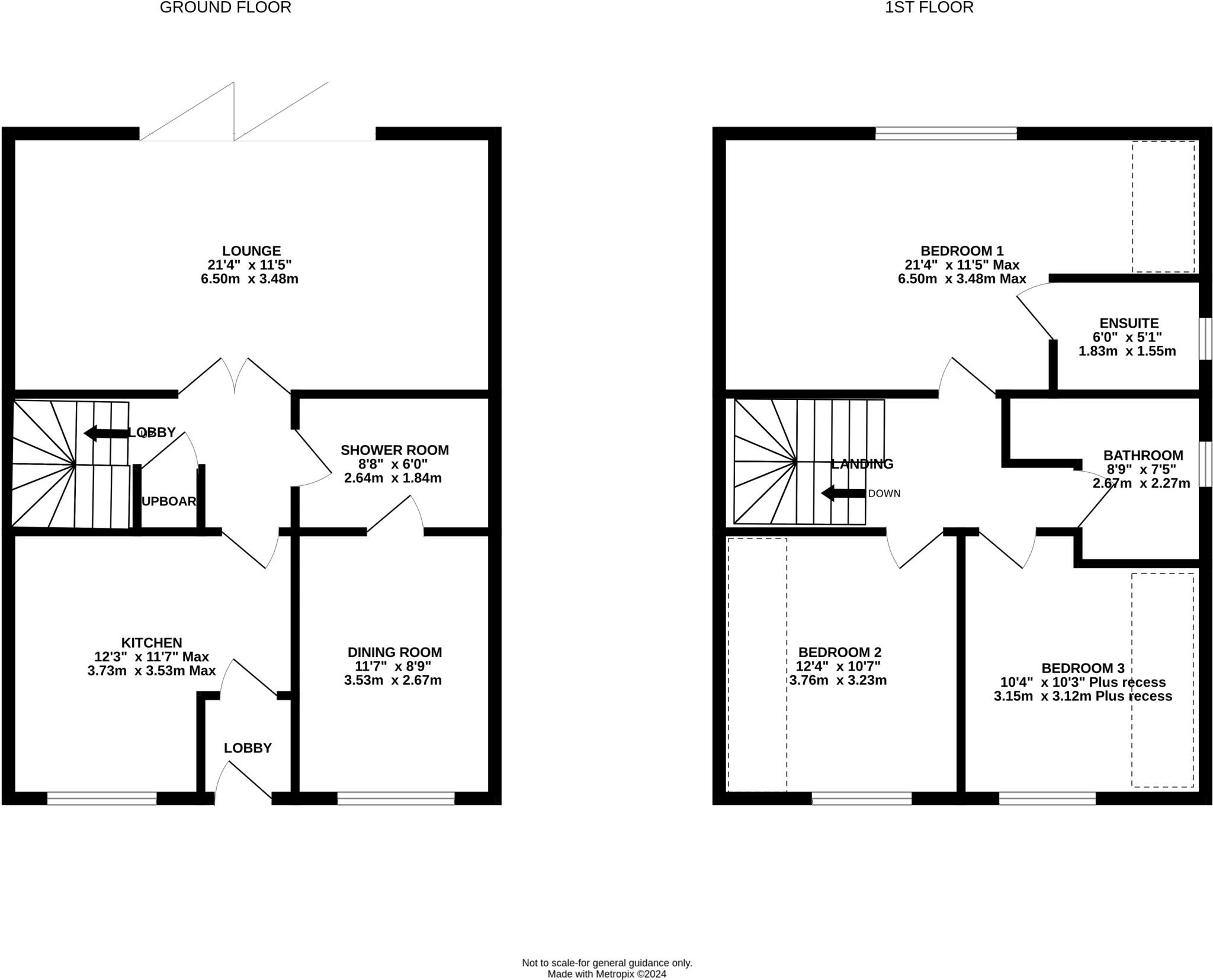
Floorplan Description

Rooms

Textual Property Features

Detected Visual Features

EPC Details

Nearby Schools

Nearest Bars And Restaurants

,,,,}

Nearest General Shops

,,}

Nearest Grocery shops

,,}

Nearest Supermarkets

,,}

Nearest Religious buildings

,,}

Nearest Medical buildings

,,,}

Nearest Leisure Facilities

,,,,}

Nearest Tourist attractions

,,}

Nearest Train stations

,,,,}

Nearest Bus stations and stops

,,,,}

Nearest Hotels

,,}

Tags

Local Market Stats

Similar Properties

Meta

High Res Images

Compatible Images

Low res Images

Thumbnails

Raw Images

High Res Floorplan Images

Compatible Floorplan Images

Low res Floorplan Images

FloorplanImages Thumbnail

Raw Floorplan Images