Extended 4-bedroom home with high-spec kitchen, decked garden and EV charging point.
Largest Westbury-style home on development with extended living space
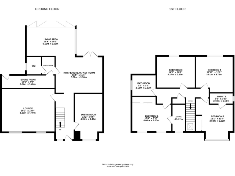
This substantial Westbury-style detached home, built in 2020, offers generous family living across an extended floorplan. Four double bedrooms (two with ensuites), three reception rooms and a large lounge make it a flexible layout for family life, home working and entertaining. The converted double garage creates extra living space and an 18' store-room, while the boarded loft adds useful storage.
The kitchen has upgraded units, Silestone worktops and an island; bi-fold doors open from the rear reception onto a composite deck and landscaped, enclosed garden. Practical extras include a utility, ground-floor WC, EV charging point, highest-speed fibre broadband and parking for two-plus cars on the driveway.
Buyers should note a few material points: the garage has been converted (no internal garage), the property lies within a coal mining reporting area so further searches are recommended, and council tax is above average. There is a modest annual estate maintenance contribution of about £100.
Well placed on the outskirts of Durham with good road links, fast broadband and low local crime, this home suits families seeking space, specification and convenient commuting. A viewing is essential to appreciate the scale and finish of the property.
6 bedroom detached house for sale in Westhouse Avenue, Potters Bank, Durham, DH1 — £950,000 • 6 bed • 5 bath • 2387 ft²
4 bedroom detached house for sale in Weatherhill Way, Browney, Durham, County Durham, DH7 — £375,000 • 4 bed • 2 bath • 1457 ft²
3 bedroom detached house for sale in Illingworth Grove, Durham, DH1 — £400,000 • 3 bed • 2 bath • 927 ft²
4 bedroom house for sale in Witton Station Court, Langley Park, Durham, DH7 — £425,000 • 4 bed • 3 bath • 1420 ft²
3 bedroom detached house for sale in Maddison Court, Aykley Heads, Durham, DH1 — £325,000 • 3 bed • 2 bath • 771 ft²
4 bedroom end of terrace house for sale in Witton Station Court, Langley Park, Durham, DH7 — £260,000 • 4 bed • 2 bath • 858 ft²










































































































