Spacious period home near top schools and city amenities.
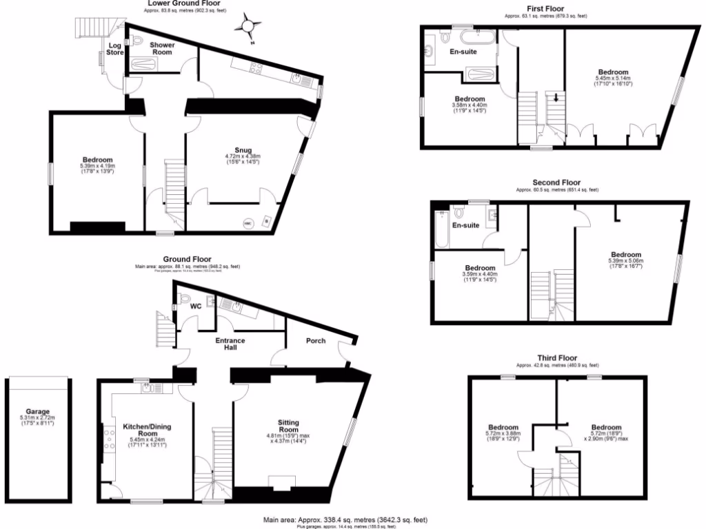
Seven large bedrooms across multi-storey layout
This elegant seven-bedroom Georgian townhouse combines grand period character with recent, high-quality renovation. Large sash windows, high ceilings and original fireplaces create bright, formal living spaces while the refurbished lower ground floor adds a modern lounge, kitchen, bedroom and full shower room — useful for multigenerational living or staff/annexe use.
Set in a prestigious St Leonards quadrant close to Exeter city centre, the house sits within easy walking distance of top-rated schools, shops, the quay and transport links. A private courtyard garden, useful stores and a garage add practical outdoor and parking space despite the small plot.
Buyers should note the property is Grade II listed, which will restrict alterations and may complicate future works. There is only one bathroom for seven bedrooms, and council tax is described as quite expensive. Overall, the house is well suited to a large family seeking character and space close to excellent local amenities, or to a purchaser able to manage listed-building constraints.
4 bedroom terraced house for sale in Marlborough Road, Exeter, Devon, EX2 — £995,000 • 4 bed • 2 bath • 2323 ft²
5 bedroom semi-detached house for sale in St Leonards, Exeter, Devon, EX2 — £1,500,000 • 5 bed • 2 bath • 3237 ft²
5 bedroom end of terrace house for sale in Bartholomew Terrace, Exeter, Devon, EX4 — £675,000 • 5 bed • 3 bath • 1888 ft²
7 bedroom semi-detached house for sale in Victoria Park Road, Exeter, Devon, EX2 — £1,825,000 • 7 bed • 3 bath • 4449 ft²
7 bedroom terraced house for sale in Regents Park, Exeter, Devon, EX1 — £1,000,000 • 7 bed • 3 bath • 4083 ft²
5 bedroom end of terrace house for sale in Exeter, Devon, EX1 — £975,000 • 5 bed • 2 bath • 3355 ft²










































































































































