Contemporary family home near primary school with parking and small garden.
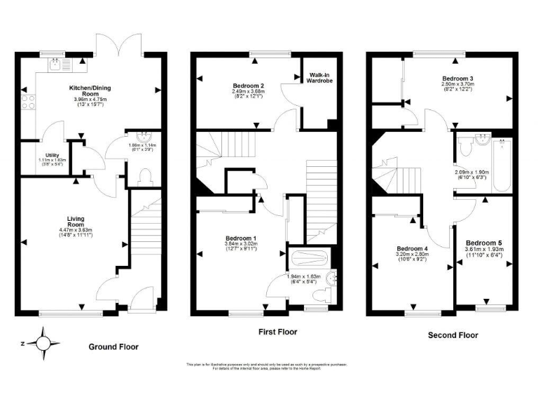
Five bedrooms across three floors, includes one en-suite
This well-presented five-bedroom townhouse offers flexible family accommodation across three floors in a popular Haddington development. Neutral, contemporary interiors and recent upgrades to kitchen and wet rooms make it largely move-in ready; the kitchen has dining space and French doors opening to a small, enclosed rear garden. Two allocated parking spaces to the front and useful utility/pantry add practical everyday convenience.
The layout suits a professional couple or growing family who need multiple bedrooms and separate living spaces. Gas central heating and double glazing provide efficiency and comfort. One bedroom benefits from an en-suite and there is a separate family bathroom and ground-floor WC to ease morning routines.
Buyers should note the property sits on a small plot with limited external space and modest bedroom sizes. The development is factored (approx. £66.81 per quarter; service charge shown as £267.24 annual figure), which covers communal maintenance; prospective purchasers should confirm exact annual costs and what is covered. Council tax is described as expensive and broadband/mobile connectivity is average, which may matter for home-working households.
Overall this home represents a practical, low-maintenance option in a sought-after town location close to Letham Mains primary school and local amenities. It will appeal to families seeking multiple bedrooms and easy access to local services, and to investors looking for a modern rental layout, subject to local demand and costs.
4 bedroom detached house for sale in Bothwell Avenue, Haddington, EH41 — £435,000 • 4 bed • 3 bath • 1550 ft²
4 bedroom detached house for sale in 24 Madisyn Crescent, Haddington, East Lothian, EH41 — £475,000 • 4 bed • 3 bath • 1862 ft²
3 bedroom end of terrace house for sale in 21 Buchanan Avenue, Haddington, EH41 3FQ, EH41 — £335,000 • 3 bed • 2 bath • 1238 ft²
5 bedroom detached house for sale in 28 Andrew Meikle Grove, East Linton, East Lothian EH40 3EL, EH40 — £535,000 • 5 bed • 3 bath • 1744 ft²
3 bedroom detached house for sale in 40 Burnside, Haddington, EH41 4ES, EH41 — £305,000 • 3 bed • 3 bath • 1104 ft²
2 bedroom semi-detached house for sale in 8 Garleton Drive, Haddington, EH41 3BL, EH41 — £190,000 • 2 bed • 1 bath • 798 ft²










































































































