Spacious four-bedroom period house on a large corner plot in sought-after L23.
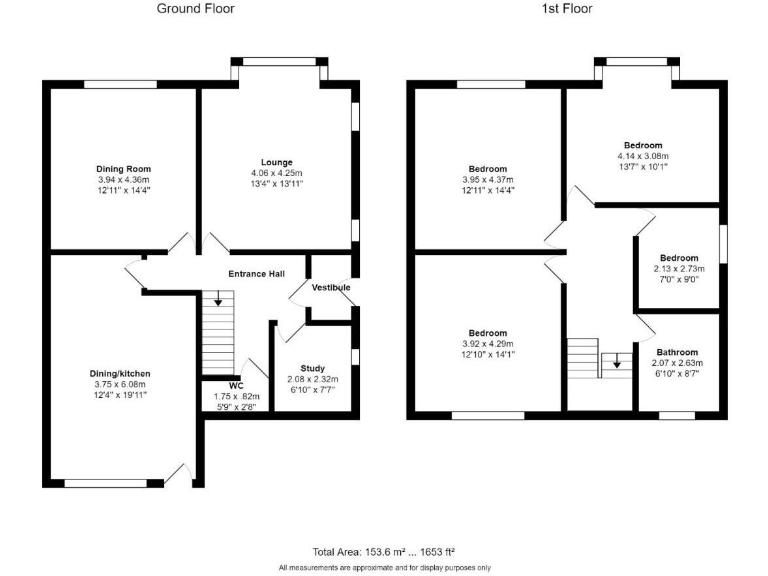
- Four double bedrooms across the first floor
- Two large reception rooms and separate study room
- Dining kitchen designed for family meals and entertaining
- Generous corner plot with front and side gardens
- Driveway plus single garage for off-street parking
- Single family bathroom only for four bedrooms
- Cavity walls recorded with no insulation (assumed)
- Council tax band above average for the area
This substantial four-bedroom semi-detached home on Liverpool Road blends 1920s character with family-focused layout. Set on a generous corner plot, the property offers two large reception rooms, a dining kitchen and a separate study — ideal for home working and family life. Period features such as exposed timbers, bay windows and high ceilings give the house strong visual appeal and plenty of natural light.
Practical benefits include a garage, driveway parking and double glazing installed after 2002. The house sits in a sought-after L23 location with a mix of good local state schools and notable independent schools nearby, and low local crime in an affluent area. Mains gas central heating with a boiler and radiators provides reliable warmth.
Important considerations: there is a single family bathroom for four bedrooms, council tax is above average, and the cavity walls are noted as having no insulation (assumed) which could affect running costs. Overall the house is presented well but offers scope for energy-efficiency upgrades and potential modernisation in parts to suit a buyer wanting contemporary finishes.
For families seeking space, character and a prominent plot in Great Crosby, this home offers immediate liveability with clear potential to personalise and improve energy performance over time.
4 bedroom semi-detached house for sale in Regent Road, LIVERPOOL, Merseyside, L23 — £390,000 • 4 bed • 2 bath • 1480 ft²
5 bedroom semi-detached house for sale in Tudor Road, LIVERPOOL, Merseyside, L23 — £410,000 • 5 bed • 2 bath • 1650 ft²
4 bedroom detached house for sale in Coronation Drive, Crosby, Liverpool, Merseyside, L23 — £520,000 • 4 bed • 2 bath • 1690 ft²
4 bedroom detached house for sale in Haddington Road, Crosby, Merseyside, L23 — £385,000 • 4 bed • 2 bath • 1363 ft²
4 bedroom semi-detached house for sale in Manor Avenue, Liverpool, L23 — £375,000 • 4 bed • 1 bath • 1414 ft²
4 bedroom detached house for sale in Poplar Avenue, Crosby, Merseyside, L23 — £800,000 • 4 bed • 1 bath • 2442 ft²


















































































































