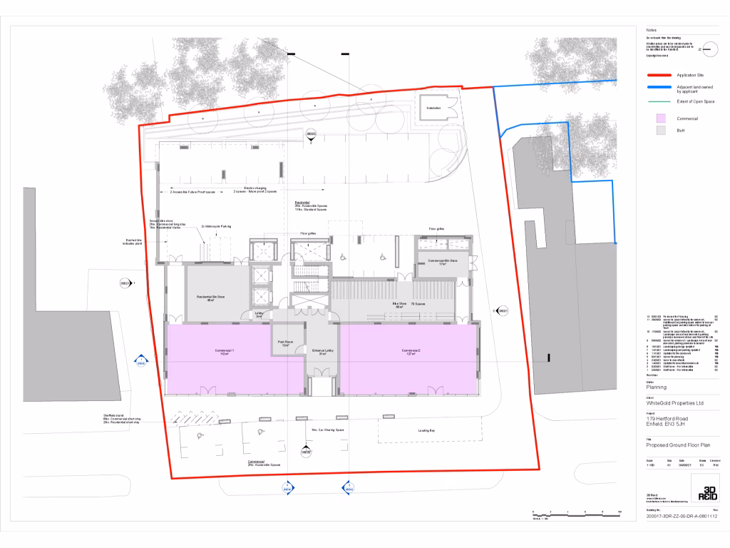
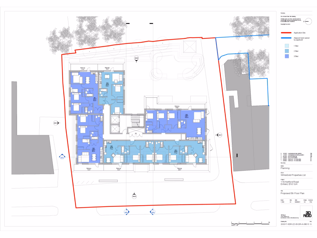
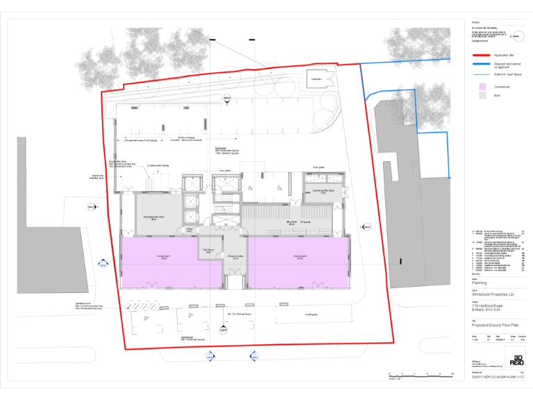
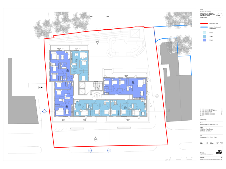
Approved scheme for 38 apartments with two street-level retail units ready for delivery.
Planning consent for 38 apartments and two commercial units on a cleared 0.45-acre site
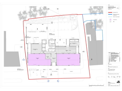
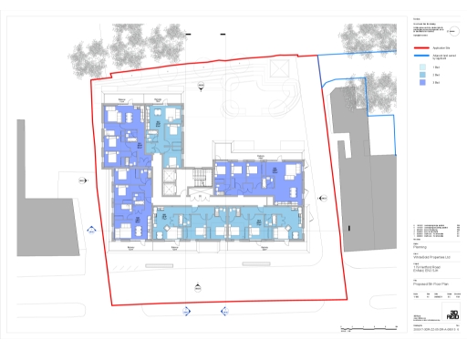
Total proposed GIA ~4,372 sqm; residential NIA ~2,791 sqm; commercial NIA ~239 sqm
Includes 11 affordable homes (8 affordable rent, 3 shared ownership)
Vendor requires freehold sale; ground-floor commercial returned long lease at shell-and-core
Located on a principal high road with strong transport links and plentiful amenities
Area classed as very deprived with high local crime — impacts lettings and management
Excellent mobile coverage and fast broadband; no flood risk recorded
Requires capex for commercial fit-out and ongoing security/maintenance budgeting
A cleared 0.45-acre site with full planning consent for 38 apartments and two ground-floor commercial units offers a ready-made route to delivery for an experienced developer or investor. The consented scheme provides a total GIA of approximately 4,372 sqm (47,070 sqft), with residential NIA of about 2,791 sqm and commercial NIA of roughly 239 sqm. The package includes 11 affordable homes (8 affordable rent, 3 shared ownership) as part of the consented offer.
Positioned on a principal high road east of Enfield town centre, the site benefits from immediate access to dense local amenities, fast broadband and excellent mobile coverage, plus reliable public transport links. The proposed six-storey, contemporary mixed-use building features inset balconies and substantial glazing, suitable for typical inner-city apartment sizes and street-facing retail units.
Buyers should note material constraints that will affect returns and delivery. The area records high crime levels and is classified as very deprived, which can influence tenant demand, management costs and rental values. The vendor requires a freehold sale and stipulates the ground-floor commercial units be returned to them on a long leasehold interest at shell-and-core and nil cost, which will impact income or fitting-out strategy.
This opportunity suits developers or investors able to underwrite affordable housing obligations, manage urban lettings, and absorb site and scheme delivery costs. With planning consent in place, the site reduces pre-application risk, but purchasers should budget for fit-out, potential environmental and security mitigation, and active asset management to maximise long-term value.
Residential development for sale in 120 Hertford Road, Enfield, Greater London, EN3 — POA • 1 bed • 1 bath • 10890 ft²
Land for sale in 480 - 506 Larkshall Road, Chingford, London, E4 9HH, Investment / Development Opportunity, E4 — £5,000,000 • 1 bed • 1 bath • 29621 ft²
Commercial development for sale in 26-30 Theobald Street, Borehamwood, WD6 4SG, WD6 — £3,700,000 • 1 bed • 1 bath • 28026 ft²
Residential development for sale in 2-3 Clifton Terrace, London N4 3JP, N4 — £1,100,000 • 1 bed • 1 bath • 6124 ft²
Plot for sale in Slade Green Road, Erith, DA8 — £2,750,000 • 1 bed • 1 bath
14 bedroom block of apartments for sale in Palmers Mews, Palmers Green, London, N13 — £4,000,000 • 14 bed • 1 bath • 9711 ft²






























