Sunny, well-connected flat by Victoria Park and Roman Road.
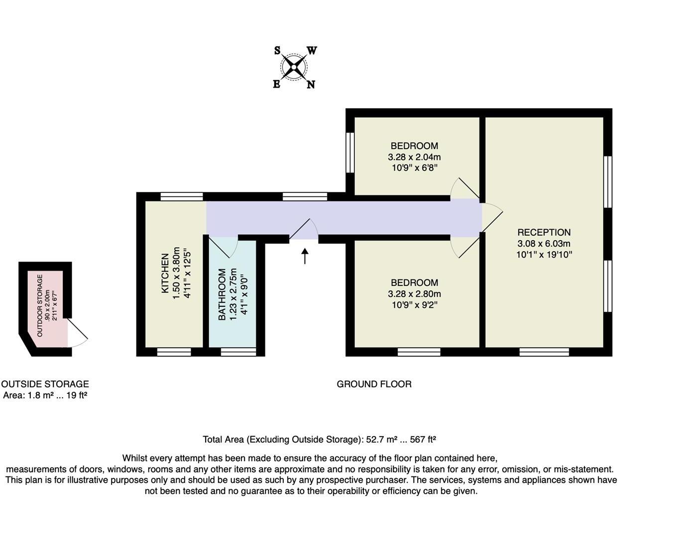
Approx 567 sq ft purpose-built ground-floor apartment
This ground-floor, purpose-built two-bedroom apartment offers a compact and practical layout across approximately 567 sq ft. The reception room is bright with dual-aspect windows, and both bedrooms are light and simply presented. The kitchen and bathroom are useable as-is but offer straightforward scope for cosmetic updating.
Set moments from Roman Road and about a six-minute walk from Victoria Park, the flat benefits from excellent local amenities, markets, cafés and green space. Transport links are reasonable with frequent local buses and Mile End, Bow Road and Bow Church stations within walking distance for wider travel across London.
Important factual points: the property is leasehold with around 86 years remaining and an estimated service charge of about £1,000 (details unknown). The immediate area scores high for crime and is classified as very deprived, which may affect buyers’ priorities. The building is mid-terrace brick construction from the 1980s with double glazing and mains gas heating.
For a first-time buyer this apartment presents an accessible entry into East London ownership with good rental potential for investors. The home will suit someone who values location and convenience over generous internal space, and who is comfortable managing a leasehold purchase and service charge obligations.
2 bedroom flat for sale in Bromley High Street, Bromley-by-Bow, E3 — £375,000 • 2 bed • 2 bath • 621 ft²
1 bedroom flat for sale in St. Stephens Road, Bow, London, E3 — £350,000 • 1 bed • 1 bath • 476 ft²
2 bedroom apartment for sale in Roman Road, Bow, London, E3 — £375,000 • 2 bed • 1 bath • 500 ft²
1 bedroom apartment for sale in Guide Price £325,000 - £350,000 Hewison Street, London, E3 — £325,000 • 1 bed • 1 bath • 497 ft²
2 bedroom flat for sale in Cuthbert Bell Tower, Pancras Way, London, E3 — £375,000 • 2 bed • 2 bath • 633 ft²
2 bedroom flat for sale in St. Stephens Road, London, E3 — £385,000 • 2 bed • 1 bath • 581 ft²














































































