Refurbished four-bed family home with large garden, double garage and flexible living spaces.
Newly renovated throughout, move-in ready
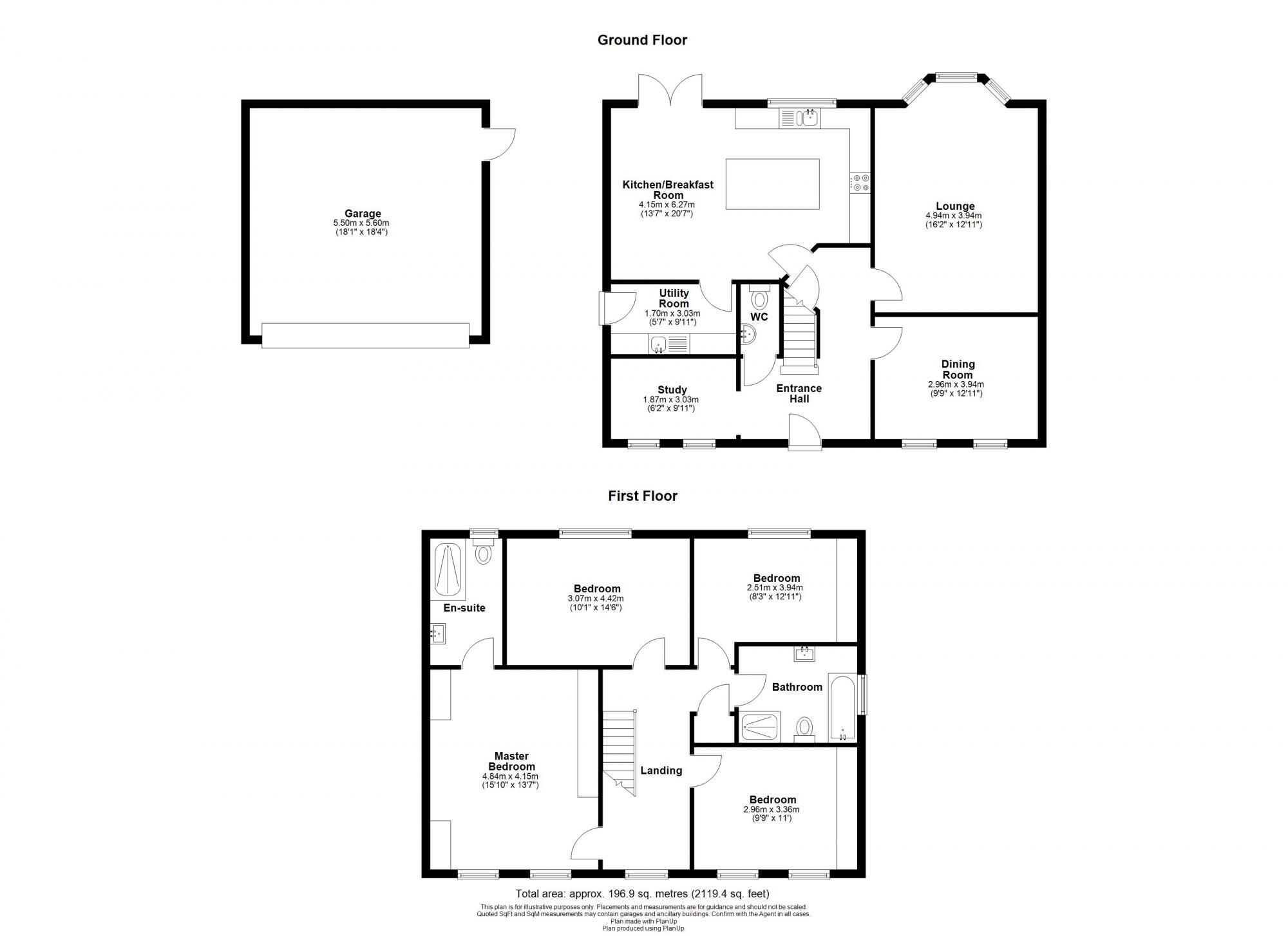
This beautifully presented detached home is arranged over two storeys and has been newly renovated for comfortable family living. The ground floor centres on a large open-plan kitchen/diner with integrated Bosch appliances and a generous island, flowing to a patio and large rear garden — ideal for family meals and outdoor play. A spacious living room with bay window, separate office/snug and handy boot room give flexible living and working spaces.
Upstairs the master bedroom benefits from extensive built-in wardrobes and a recently completed en-suite with large walk-in shower. Three further double bedrooms (two with wardrobes) and a modern family bathroom provide ample accommodation for a growing family. The property includes a double garage with electric up-and-over door, driveway parking for multiple vehicles and a large enclosed garden.
Practical points to note: the house was built around 1996–2002 and has double glazing, mains gas central heating and an EPC rating of C. Broadband speeds are average for the area and the location is classed as a small town/town fringe with rural traits. There is no flood risk recorded. The property is freehold and move-in ready, but buyers seeking ultra-high energy efficiency or very fast broadband should be aware of current ratings.
Overall this is a spacious, low-maintenance family home in an affluent, rural‑life setting. It will suit families wanting flexible living spaces, outdoor space and secure parking, and who value a recently refurbished house ready to occupy.
4 bedroom detached house for sale in 14 Chapel Garth, Holme-on-spalding-Moor, York, YO43 4EG, YO43 — £349,950 • 4 bed • 2 bath • 1666 ft²
4 bedroom detached house for sale in Garthends Lane, Hemingbrough, Selby, YO8 — £325,000 • 4 bed • 2 bath • 1168 ft²
4 bedroom house for sale in Melbourne, York, North Yorkshire, YO42 4QJ, YO42 — £543,000 • 4 bed • 1 bath • 1665 ft²
4 bedroom detached house for sale in Shipman Road, Market Weighton, York, YO43 3RB, YO43 — £485,000 • 4 bed • 2 bath • 1686 ft²
4 bedroom detached house for sale in Shipman Road, Market Weighton, YO43 — £325,000 • 4 bed • 2 bath • 1595 ft²
4 bedroom detached house for sale in Cornflower Close, Hambleton, YO8 — £380,000 • 4 bed • 4 bath • 1464 ft²


































































































