Raised ground-floor one-bedroom with classic period charm near the beach.
Sea views across New Steine to the sea
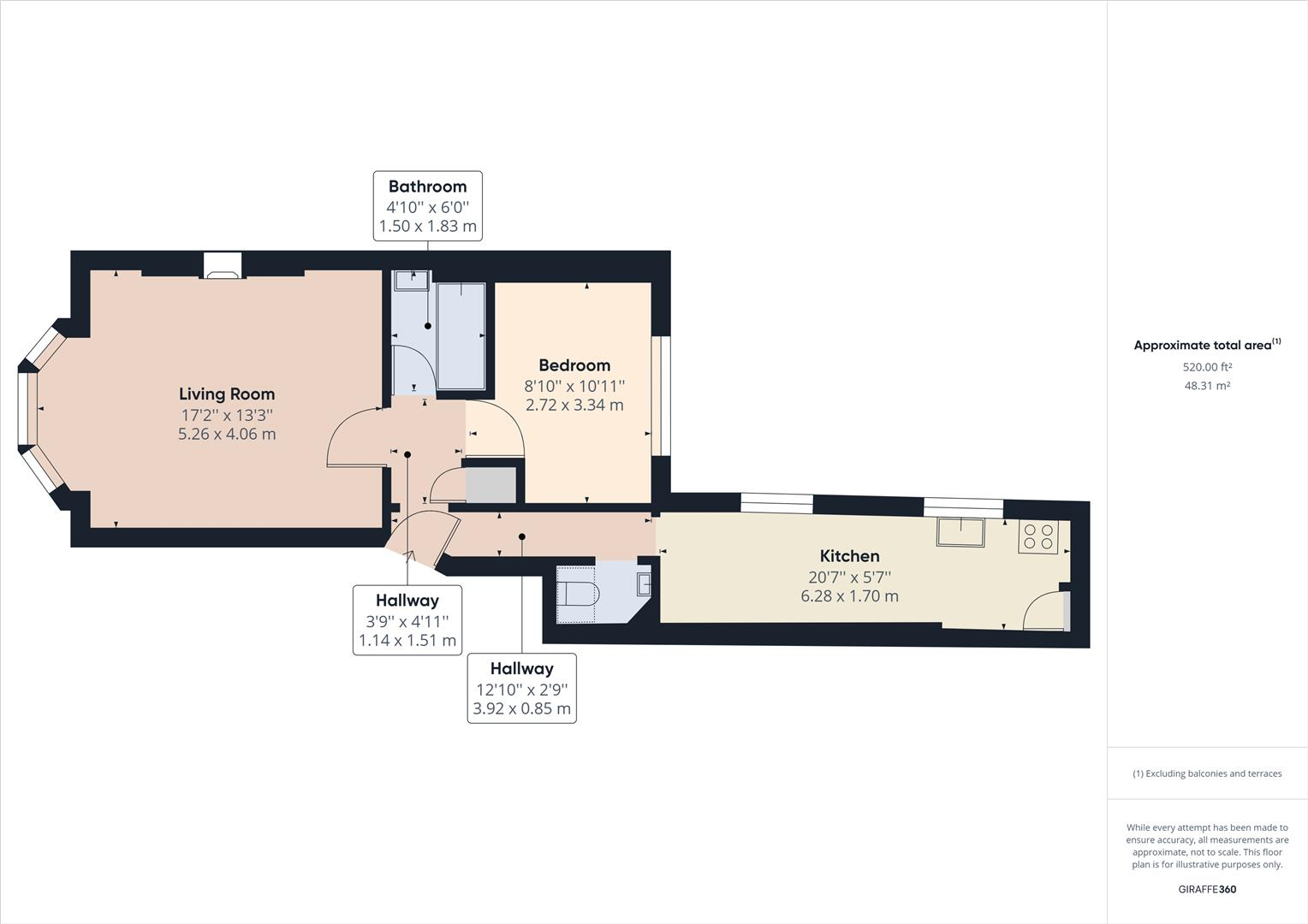
Large reception room with bay window and high ceilings
Period features: ornamental fireplace, tall windows
87 years remaining on the lease — shorter than ideal
Service charge £2,079pa and ground rent £300pa
Solid brick walls; likely no insulation (may need work)
East Cliff Conservation Area — limits external alterations
Area classified high crime; city centre, students and commuters
This raised ground-floor flat in Kemptown offers classic Regency proportions and direct views across New Steine to the sea. High ceilings, a large bay-windowed reception and an ornamental fireplace retain period character while the fitted kitchen and EPC C rating point to reasonable energy performance.
The layout suits a single buyer or couple seeking coastal living within easy reach of Brighton’s restaurants, shops and transport. The flat is in the East Cliff Conservation Area, so external changes are restricted, and the location puts the beach, pier and local amenities moments away.
Buyers should note the practical lease and running-cost details: 87 years remaining on the lease, an annual service charge of £2,079 and ground rent of £300. The building’s solid brick walls likely lack cavity insulation, so further energy or comfort improvements may be possible but would require consent and investment.
This property is best for someone wanting characterful seaside living with scope to personalise internally. It is not a no-work, long-lease purchase: consider lease length and communal costs if planning mortgage or resale within a few years.
1 bedroom flat for sale in Lower Rock Gardens, Brighton, BN2 — £220,000 • 1 bed • 1 bath • 398 ft²
1 bedroom apartment for sale in Devonshire Place, Brighton, BN2 — £240,000 • 1 bed • 1 bath • 514 ft²
1 bedroom flat for sale in Madeira Place, Brighton, East Sussex, BN2 — £180,000 • 1 bed • 1 bath • 325 ft²
1 bedroom flat for sale in St James's Street, Brighton, BN2 — £210,000 • 1 bed • 1 bath • 628 ft²
1 bedroom apartment for sale in Chesham Road, Brighton, BN2 — £245,000 • 1 bed • 1 bath • 570 ft²
1 bedroom flat for sale in Kings Road, Brighton, BN1 — £225,000 • 1 bed • 1 bath • 431 ft²






























































































