**Standout Features:**
- Spacious 4/5-bedroom detached home
- Extensive well-maintained gardens and outdoor spaces
- Modern vaulted kitchen with garden access
- Integral garage and self-contained office/studio
- Scenic countryside views with mature hedges for privacy
- Close proximity to village amenities and outstanding primary school
**Summary:**
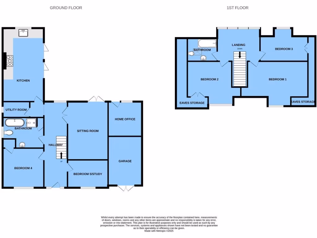
Discover 'Newbliss,' an impressive detached home nestled in the tranquil rural setting of Catsfield, East Sussex. This thoughtfully modernized property boasts 4 to 5 bedrooms and ample living space, featuring two principal reception rooms, a stunning vaulted kitchen that flows seamlessly into the large south-facing garden, ideal for family gatherings and outdoor enjoyment. The expansive grounds include lush lawns, a relaxing hot tub, and picturesque pastoral views, creating a serene retreat for nature lovers and hobbyists alike.
Recent renovations ensure a move-in ready home, equipped with upgraded central heating, new double glazing, and modern flooring throughout. The internal flexibility caters to families looking for both space and functionality, while the integral garage and an externally accessed self-contained office/studio enhance the property's appeal for remote work or creative pursuits. With access to excellent local schools and a low-crime environment, this property perfectly blends rural charm with family-friendly accessibility. Don’t miss your chance to call this idyllic retreat home—properties like this don't last long!
4 bedroom detached house for sale in The Green, Catsfield, TN33 — £650,000 • 4 bed • 2 bath • 1971 ft²
4 bedroom detached house for sale in Standard Hill, Ninfield, Battle, TN33 — £700,000 • 4 bed • 2 bath • 1581 ft²
5 bedroom detached house for sale in Cade Street, Heathfield, TN21 — £1,100,000 • 5 bed • 4 bath • 3280 ft²
3 bedroom terraced house for sale in Skinners Lane, Catsfield, Battle, TN33 — £400,000 • 3 bed • 1 bath • 1064 ft²
4 bedroom semi-detached house for sale in Whydown Road, Bexhill-On-Sea, TN39 — £600,000 • 4 bed • 2 bath • 2200 ft²
3 bedroom semi-detached house for sale in Marlpits Lane, Ninfield, TN33 — £599,950 • 3 bed • 4 bath • 693 ft²


























































































































































































