HG4 1UR - 4 bed spacious corner townhouse in Freemantle Place, HG4 1UR

View on Property Piper

4 bedroom end of terrace house for sale in Freemantle Place, Ripon, HG4

Summary - 7 FREEMANTLE PLACE RIPON HG4 1UR

4 bed 3 bath End of Terrace

Family-friendly three-storey home with extensive private gardens and garage.
Four bedrooms across three floors, flexible family layout
Large open-plan kitchen/dining/sun-lounge with central island
Two bedrooms include en-suite shower rooms (including master)
Extensive private gardens on a prominent corner plot
Single garage plus off-street parking included
Short walk to Ripon city centre and local schools
Council tax above average for the area
Broadband speeds average; very low local crime
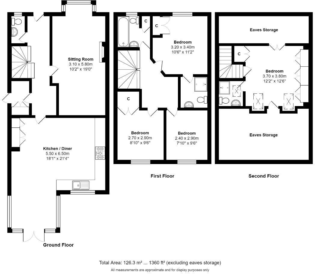
This spacious four-bedroom end-of-terrace townhouse sits on a generous corner plot, a short walk from Ripon city centre. The house offers flexible family living across three floors, with a large open-plan kitchen/dining/sun-lounge, separate lounge with bay window, utility, and ground-floor WC. Two bedrooms have en-suite facilities and the second-floor master benefits from fitted wardrobes and Velux windows.

Outside, gardens wrap around the property providing privacy and multiple seating areas, a paved patio, timber pergola and a small fruit and vegetable garden. A single garage and parking add useful storage and vehicle space. The plot size is a standout feature for the area, giving scope for family activities and gardening.

Practical details: the house is freehold, mains gas‑heated with boiler and radiators, double glazing, and an average overall size of about 1,360 sq ft. Broadband speeds are average and council tax is above average for the area. The neighbourhood records very low crime and lies in an affluent, predominantly ageing-urban community with good local schools nearby.

View this property if you want a roomy, well‑presented family home close to the city centre with extensive private outside space. Buyers should note standard modernisation and maintenance considerations that accompany a multi-storey family house and verify specific retrofit, glazing and service histories during survey.

Property Details

Brochure Descriptions

Image Descriptions

Floorplan Description

Rooms

Textual Property Features

Target Audience

AI Tags

Detected Visual Features

EPC Details

Nearby Schools

Nearest Bars And Restaurants

,,,,}

Nearest General Shops

,,}

Nearest Grocery shops

,,}

Nearest Supermarkets

,,}

Nearest Religious buildings

,,}

Nearest Medical buildings

,,,}

Nearest Leisure Facilities

,,,,}

Nearest Tourist attractions

,,}

Nearest Train stations

,,,,}

Nearest Bus stations and stops

,,,,}

Nearest Hotels

,,}

Tags

Local Market Stats

AirBnB Data

Similar Properties

Meta

High Res Images

Compatible Images

Low res Images

Thumbnails

Raw Images

High Res Floorplan Images

Compatible Floorplan Images

Low res Floorplan Images

FloorplanImages Thumbnail

Raw Floorplan Images