Low‑entry freehold with income potential and vacant possession at online auction.
- Freehold mixed‑use building with vacant possession
- Stated rental potential £1,200 pcm (£14,400 pa)
- Requires renovation; interiors dated and cluttered
- Administration fee £3,600 inc VAT on exchange
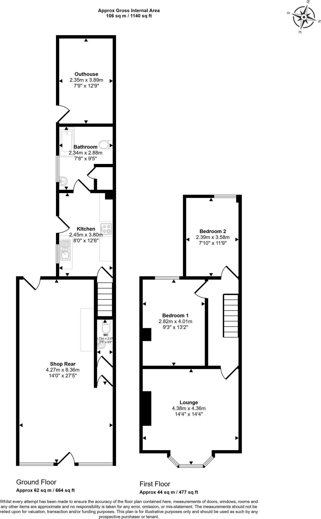
- Small rear yard and outhouse; limited external space
- Sold via online auction — bidding dates and viewings apply
- Area classed very deprived; crime above average
- Fast broadband and excellent mobile signal
Offered via national online auction, this freehold mixed‑use building in Grimsby presents a low‑entry investment with immediate upside. The ground floor currently reads as a shop/café shell with a separate flat entrance; the flat has a ground‑floor kitchen and bathroom and two first‑floor rooms that can serve as three bedrooms or two bedrooms plus lounge. The property is sold with vacant possession and a stated rental potential of £1,200 pcm (£14,400 pa).
The building requires renovation and reorganisation — interiors are dated and parts are cluttered, with an outhouse and small yard to the rear. An administration fee of £3,600 (inc VAT) is payable on exchange; interested parties should review the legal pack for additional disbursements before bidding. Viewings are scheduled and bidding opens and closes on the auction dates listed.
Location strengths include fast broadband, excellent mobile signal, nearby shops and a Sainsbury’s Local, plus several well‑rated local primary and secondary schools. Note the surrounding area is classified as very deprived with above‑average crime statistics; buyers should factor in local market demand and any remedial costs when assessing projected returns.
2 bedroom terraced house for sale in No. 79 Harold Street, Grimsby DN32 7NQ, DN32 — £10,000 • 2 bed • 1 bath • 864 ft²
2 bedroom apartment for sale in Oxford Street, Grimsby, N E Lincs, DN32 — £99,950 • 2 bed • 2 bath • 1245 ft²
3 bedroom terraced house for sale in 244 Heneage Road, Grimsby DN32 9NR, DN32 — £15,000 • 3 bed • 1 bath • 978 ft²
3 bedroom terraced house for sale in 104 Park Street, Grimsby DN32 7NT, DN32 — £20,000 • 3 bed • 1 bath • 1201 ft²
High street retail property for sale in Oxford Street, Grimsby, Lincolnshire, DN32 7PB, DN32 — £99,950 • 1 bed • 1 bath • 1000 ft²
2 bedroom end of terrace house for sale in 84 Welholme Road, Grimsby, Lincolnshire DN32 0NF, DN32 — £19,000 • 2 bed • 1 bath • 937 ft²














































































