Contemporary five-bedroom house with west garden and EV parking, ideal for families.
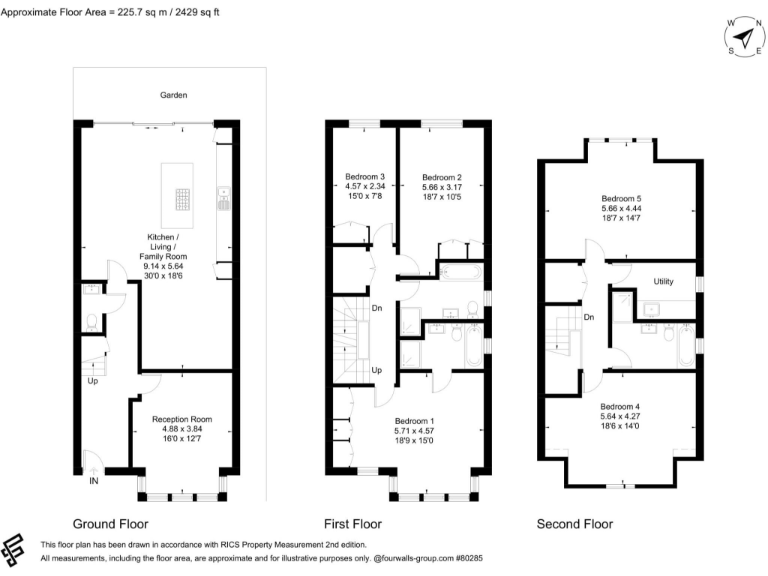
Five double bedrooms across three floors, nearly 2,430 sqft of living space
30ft open-plan kitchen/dining with bi-folds to west-facing garden
Three luxury bathrooms, all with separate showers; principal en-suite
Off-street parking for two cars plus electric vehicle charging point
Close to Teddington High Street, station, river and Bushy Park
Freehold and chain-free; built date listed 1900–1929 (confirm records)
Solid brick walls likely without cavity insulation (insulation checks advised)
Council tax described as quite expensive — consider running costs
This substantial five-bedroom semi-detached house in Udney Park Road provides almost 2,430 sq ft of contemporary family living. The ground floor centres on a 30ft kitchen/dining area with bi-folding doors onto a west-facing garden, plus a formal reception with a large bay window. Off-street parking for two cars includes an electric charging point.
Finished to a high, new-build specification throughout, the home offers five double bedrooms across the upper floors and three luxury bathrooms, all with separate showers. The principal bedroom benefits from bespoke wardrobes and a large en-suite; the top floor adds a useful laundry room. Versatile room sizes suit formal and informal living, and the layout supports multigenerational or flexible working arrangements.
Location is a clear strength: walking distance to Teddington High Street, station, the river and Bushy Park, with excellent schools nearby including two rated Outstanding. Broadband and mobile signals are strong and the area is very affluent, making this suitable for families seeking space close to local amenities.
A few practical points to note: the property is freehold and offered chain-free, but records show a construction date of 1900–1929 while the interior is presented to new-build standard — buyers should confirm construction and warranty details. The walls are solid brick with assumed no insulation (check), and council tax is described as quite expensive. These are important considerations for future running costs and any improvement plans.
5 bedroom semi-detached house for sale in Udney Park Road, Teddington, TW11 — £2,350,000 • 5 bed • 3 bath • 2429 ft²
4 bedroom detached house for sale in Atbara Road, Teddington, TW11 — £1,775,000 • 4 bed • 2 bath • 2088 ft²
3 bedroom end of terrace house for sale in Fallow Place, Teddington, TW11 — £850,000 • 3 bed • 2 bath • 1100 ft²
5 bedroom terraced house for sale in Church Road, Teddington, TW11 — £1,495,000 • 5 bed • 3 bath • 2056 ft²
5 bedroom semi-detached house for sale in Clarence Road, Teddington, TW11 — £1,699,999 • 5 bed • 2 bath • 2180 ft²
6 bedroom semi-detached house for sale in Waldegrave Road, Teddington, TW11 — £1,125,000 • 6 bed • 2 bath • 1932 ft²






































































































































