Chain-free three-bed end-terrace with conservatory and scope to modernise..
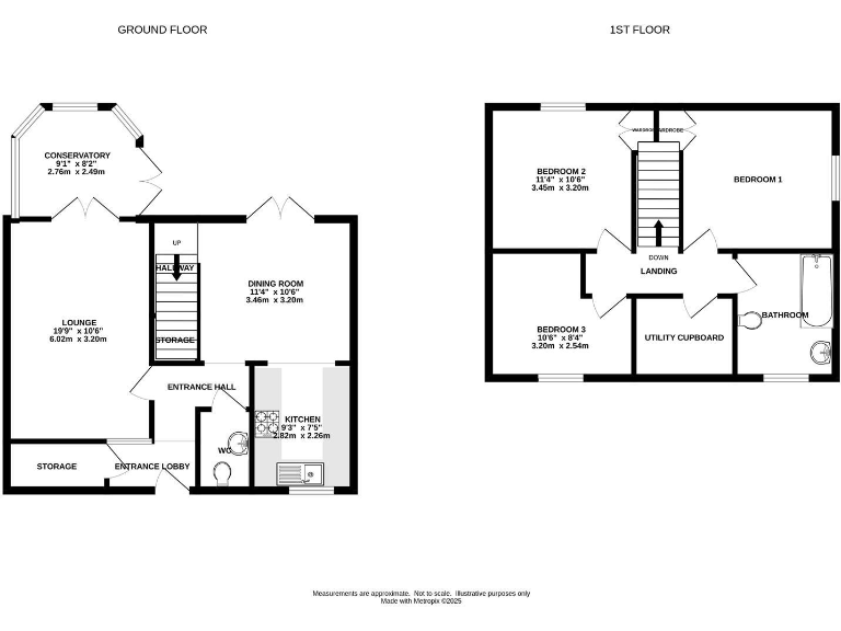
- Three bedrooms and single family bathroom
- End-of-terrace with wooden conservatory extension
- Small overall size approx. 675 sq ft
- Timber-frame construction; partial insulation assumed
- Double glazing installed post-2002; mains gas heating
- Fully enclosed rear garden with paved patio
- Chain free and freehold tenure
- Single bathroom; may need modernisation or refurbishment
A practical three-bedroom end-of-terrace house in Romsey Close, offered chain free and ready for immediate occupation. The ground floor has a comfortable lounge, fitted kitchen/dining space and a wooden conservatory that extends living into the garden. Upstairs are three bedrooms, a single family bathroom and a small utility cupboard — a straightforward layout that suits a young family or couple needing extra space.
The home sits on a small plot with a gravelled front area and a fully enclosed rear garden with lawn and paved patio. Built in the late 1960s/early 1970s, the property benefits from double glazing and mains gas central heating, plus fast broadband and excellent mobile signal. Local schools are rated Good, and road and rail links (A33, M3, London Waterloo in about 45 minutes) make commuting viable.
Notable considerations: the house is modest in overall size (approximately 675 sq ft) and the structure is a timber-frame construction with partial insulation assumed; some modernisation could be necessary to improve energy efficiency and finish. The garden and rooms are small-to-average for an end-terrace, and there is only one bathroom. These factors give scope for value-adding improvements but will affect suitability for larger families without refurbishment.
For buyers seeking a low-maintenance, mid-market home close to schools and transport links, this property offers a practical footprint and clear potential to update. Investors or first-time buyers who prioritise location and commute times may find this a sensible, affordable freehold option in Basingstoke.
3 bedroom end of terrace house for sale in Sibelius Close, Brighton Hill, Basingstoke, RG22 — £300,000 • 3 bed • 1 bath • 946 ft²
3 bedroom end of terrace house for sale in Bennet Close, Oakridge, Basingstoke, RG21 — £280,000 • 3 bed • 1 bath • 856 ft²
3 bedroom end of terrace house for sale in Romsey Close, Basingstoke, Hampshire, RG24 — £300,000 • 3 bed • 1 bath • 930 ft²
3 bedroom terraced house for sale in Paddock Road, Basingstoke, RG22 — £285,000 • 3 bed • 1 bath • 819 ft²
3 bedroom end of terrace house for sale in Corfe Walk, Winklebury, Basingstoke, RG23 — £305,000 • 3 bed • 1 bath • 875 ft²
3 bedroom terraced house for sale in Wordsworth Close, Popley, Basingstoke, RG24 — £285,000 • 3 bed • 1 bath • 939 ft²


















































