Spacious family home with large driveway, garage and strong entertaining space.
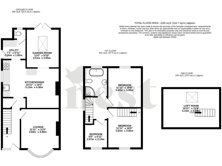
- Three-bedroom 1930s semi with period features and modern updates
- Open-plan kitchen/diner with garden room and French doors
- Recently upgraded kitchen with quartz worktops and integrated appliances
- Large private rear garden and patio, generous front garden
- Long driveway and detached garage with electric roller door
- One family bathroom only; no en suite
- Loft converted to dressing room accessed by fixed ladder (limited access)
- EPC rating currently to be confirmed
A handsome 1930s semi-detached home on a large plot, presented with tasteful, modern touches while retaining period character. The ground floor flows well: a bright bay-fronted living room, an open-plan kitchen/dining area with garden room and French doors, plus a practical utility and downstairs WC. The recently upgraded kitchen offers quartz worktops, integrated appliances and good entertaining space.
Upstairs has three bedrooms and a four-piece family bathroom. The principal bedroom benefits from a converted loft/dressing room reached by a fixed ladder — useful extra space but with limited accessibility. Outside, the long driveway, detached garage with electric roller door and mature private rear garden are substantial selling points for families who need parking and outdoor space.
This home suits buyers wanting a period property with contemporary conveniences and further scope to personalise. Notable practical points: there is one main family bathroom, the loft is accessed by a ladder rather than a permanent staircase, and the EPC rating is yet to be confirmed. Its freehold tenure, FTTP broadband, low local crime and easy access into Taunton and transport links add to its everyday appeal.
3 bedroom semi-detached house for sale in Clifford Avenue, Taunton, TA2 — £390,000 • 3 bed • 1 bath • 1357 ft²
3 bedroom detached house for sale in Cheddon Road, Taunton, Somerset, TA2 — £400,000 • 3 bed • 1 bath • 1292 ft²
3 bedroom semi-detached house for sale in Farm View, Taunton, Somerset, TA2 — £300,000 • 3 bed • 1 bath • 1093 ft²
3 bedroom end of terrace house for sale in Rowbarton Close, Taunton, TA2 — £300,000 • 3 bed • 1 bath • 1115 ft²
3 bedroom semi-detached house for sale in Deane Drive, Taunton, Somerset, TA1 — £300,000 • 3 bed • 1 bath • 925 ft²
3 bedroom semi-detached house for sale in Greenway Road, Taunton, Somerset, TA2 — £325,000 • 3 bed • 2 bath • 1296 ft²


















































































































