Spacious 3-bed 1930s detached home with large west-facing garden and garage ready to move in.
Three-bedroom 1930s detached house with period features and modern comforts
Large west-facing rear garden with patio and lawn
Detached single garage plus long driveway and additional parking
High ceilings, front bay window and wood-burning stove in living room
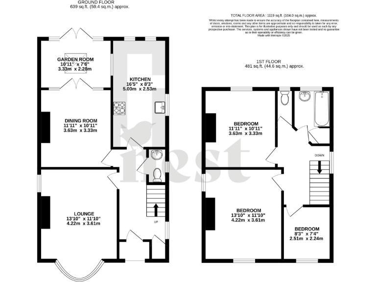
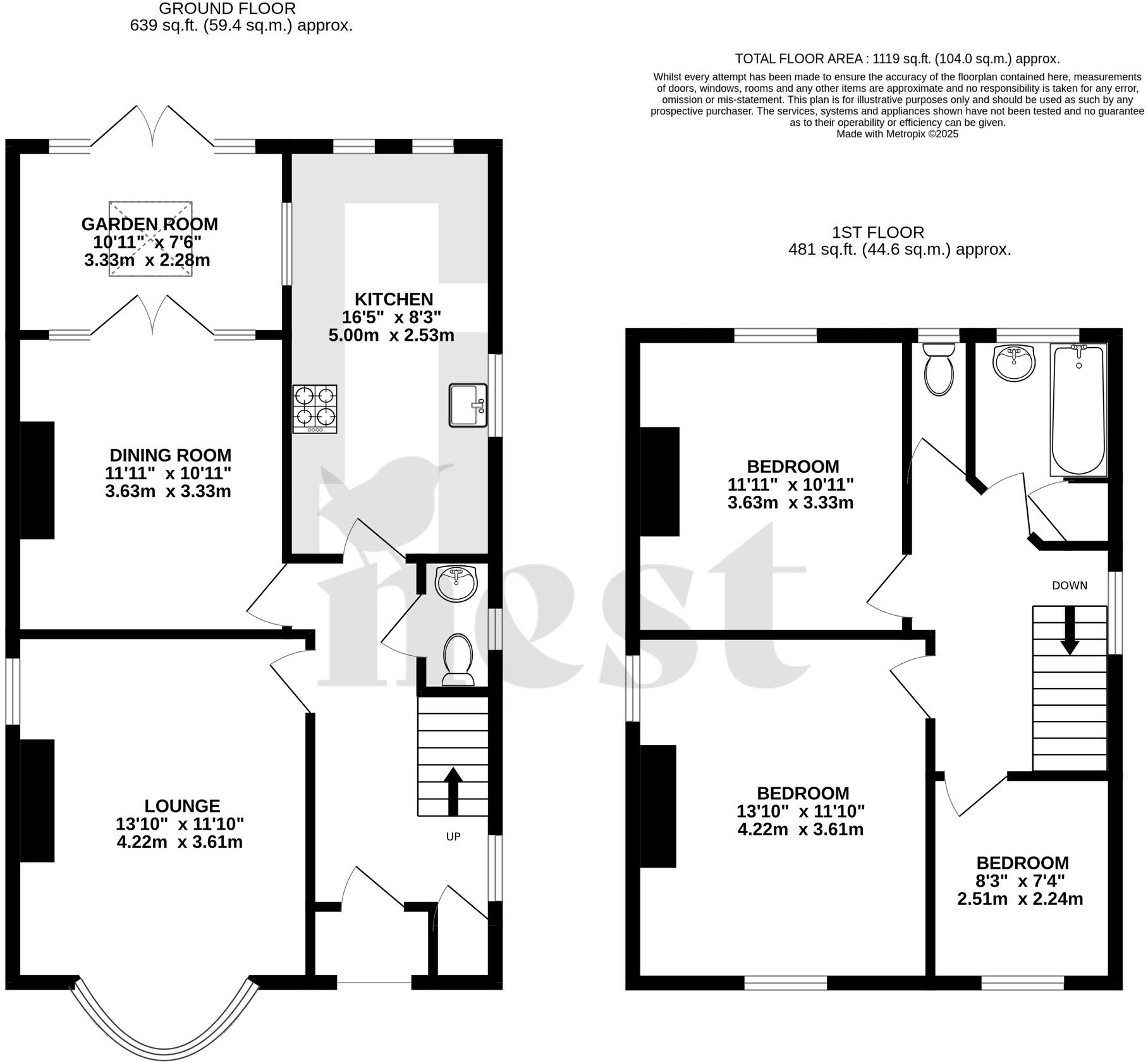
Fitted kitchen with space for full-size appliances
One full bathroom only, plus separate WC (first-floor)
Located near parks, schools, M5 and mainline rail links
Area records above-average crime — factor for buyers
This handsome 1930s detached house offers three bedrooms, generous living space and a large west-facing garden — ideal for families who value period character with ready-to-live-in presentation. High ceilings, a front bay window and a wood-burning stove give the principal rooms charm and a comfortable focal point for gatherings. The house has been well cared for and benefits from modern comforts such as double glazing, mains gas central heating and an EPC C rating.
Practical everyday living is straightforward: a fitted kitchen with space for full-size appliances, a ground-floor WC, a family bathroom and a separate first-floor WC. Outside there’s a detached single garage, a long driveway and good off-road parking, plus a secluded lawned front garden and an extensive rear garden with patio — the west-facing aspect is excellent for afternoon and evening sun.
Location is a strong asset. The property sits on the northern edge of Taunton with convenient access to local parks, shops, schools and public transport; the M5 and mainline rail links are within easy reach. The Quantock Hills are also nearby for regular countryside walks and outdoor activities.
Notable points to consider: the property sits in an area with above-average recorded crime, and there is only one full bathroom (plus a separate WC), which may be a consideration for larger households. Despite being beautifully presented, the house still offers sensible scope for modest updating or reconfiguration if a buyer wants to personalise fixtures and finishes.
3 bedroom semi-detached house for sale in Clifford Avenue, Taunton, TA2 — £390,000 • 3 bed • 1 bath • 1357 ft²
3 bedroom semi-detached house for sale in 23 Tamar Avenue, Taunton, TA1 — £375,000 • 3 bed • 1 bath • 1084 ft²
3 bedroom semi-detached house for sale in Hamilton Road, Taunton, TA1 — £350,000 • 3 bed • 1 bath • 1192 ft²
3 bedroom semi-detached house for sale in Hamilton Road, Taunton, Somerset, TA1 — £350,000 • 3 bed • 1 bath • 939 ft²
3 bedroom detached house for sale in Saffron Close, Taunton, TA1 — £350,000 • 3 bed • 1 bath • 1073 ft²
3 bedroom semi-detached house for sale in Eastwick Road, Taunton, Somerset, TA2 — £300,000 • 3 bed • 1 bath • 958 ft²


















































































































































