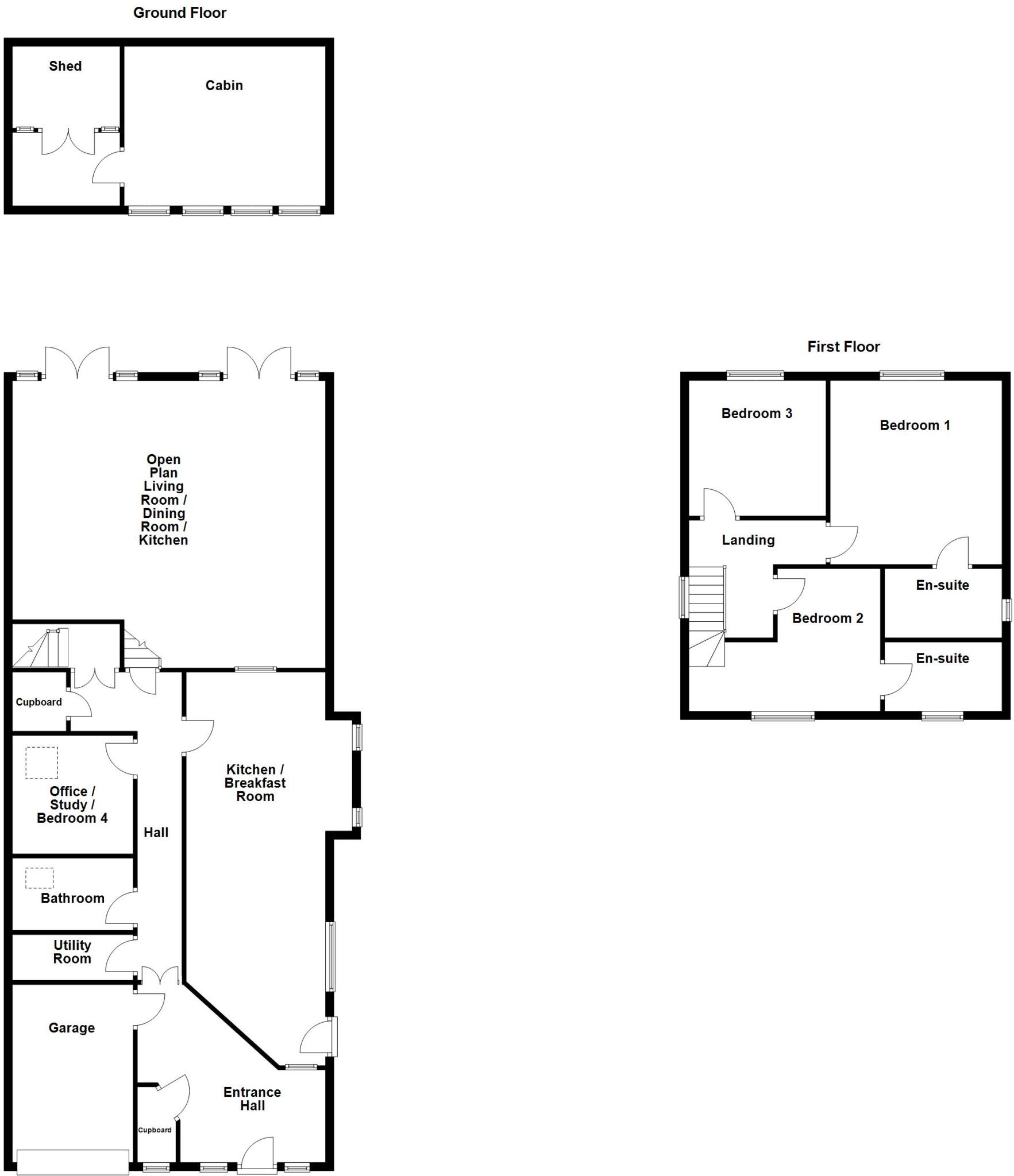
Large detached three-bedroom home with south garden, cabin and gated parking in Mile Oak..
Three generous bedrooms with two en-suite shower rooms
Large open-plan living and dining area with garden access
Stylish kitchen/breakfast room and separate utility room
Versatile ground-floor study or occasional fourth bedroom
South-facing landscaped garden with 19' x 12' cabin (gym/office)
Gated block-paved driveway and integrated (compact) garage
Built 2007–2011, double glazed, mains gas central heating
Freehold; verify legal details with your solicitor
Set on Sutton Road in Mile Oak, this spacious three-bedroom detached home offers flexible living for families or those working from home. Contemporary fittings run throughout: a large kitchen/breakfast room, an expansive open-plan living and dining area, and two en-suite shower rooms to the principal bedrooms create comfortable everyday living. The house was built between 2007–2011 and benefits from modern double glazing and a mains gas boiler with radiators.
The landscaped, south-facing rear garden is a standout feature, with a large patio, lawn and a purpose-built cabin currently used as a gym—ideal as a home office, studio or garden retreat. A gated, block-paved driveway provides generous parking and leads to an integrated garage; combined with the large overall plot, the outside space offers strong family appeal and scope for further landscaping or adaptation.
Practical spaces are well catered for: a separate utility room and ground-floor bathroom increase everyday convenience, and an additional reception on the ground floor works well as a study or occasional fourth bedroom. The property is freehold and shows well for its age, with no recorded flood risk and fast broadband noted for remote working needs.
Notable points to check: the integrated garage is relatively compact and may suit storage or a small car rather than larger vehicles. The local area shows mixed demographics and average crime statistics; prospective buyers should satisfy themselves of neighbourhood fit. Buyers are advised to verify tenure and any legal details with their solicitor.
3 bedroom detached house for sale in Sutton Road, Mile Oak, Tamworth, Staffordshire, B78 — £600,000 • 3 bed • 2 bath • 989 ft²
4 bedroom detached house for sale in Watling Street, Mile Oak, Tamworth, Staffordshire, B78 — £435,000 • 4 bed • 2 bath • 1441 ft²
3 bedroom detached house for sale in Lowdham, Wilnecote, B77 — £329,950 • 3 bed • 2 bath • 840 ft²
4 bedroom detached house for sale in Coleshill Road, Fazeley, B78 — £675,000 • 4 bed • 1 bath • 1914 ft²
4 bedroom detached house for sale in Melmerby, Wilnecote, B77 — £375,000 • 4 bed • 2 bath • 1561 ft²
4 bedroom detached house for sale in Sutton Road, Mile Oak, Tamworth, B78 — £725,000 • 4 bed • 2 bath


































































































































































