NG11 6PN - 2 bed barn conversion bungalow in Bradmore, NG11 6PN

View on Property Piper

2 bedroom detached bungalow for sale in Manor Farm Close, Bradmore, Nottingham, NG11

Summary - Manor Farm Close, Bradmore, Nottingham NG11 6PN

2 bed 1 bath Detached Bungalow

Characterful two-bed bungalow with sunny courtyard and generous car port.
Two double bedrooms in single-storey barn conversion
A characterful two-double-bedroom barn conversion in peaceful Bradmore, offering single-storey living and a sunny south-west courtyard garden. The layout suits downsizers or couples who want flat, accessible accommodation with a cosy living room, conservatory and a country-style kitchen. Practical benefits include off-street parking, a generous car port and freehold tenure.

The property has genuine village charm — exposed brick fireplace, bespoke bedroom storage and mature planting in a private courtyard that catches afternoon and evening sun. It sits close to good local schools and convenient road links to Nottingham and the M1, while retaining quiet countryside feel and very low crime levels.

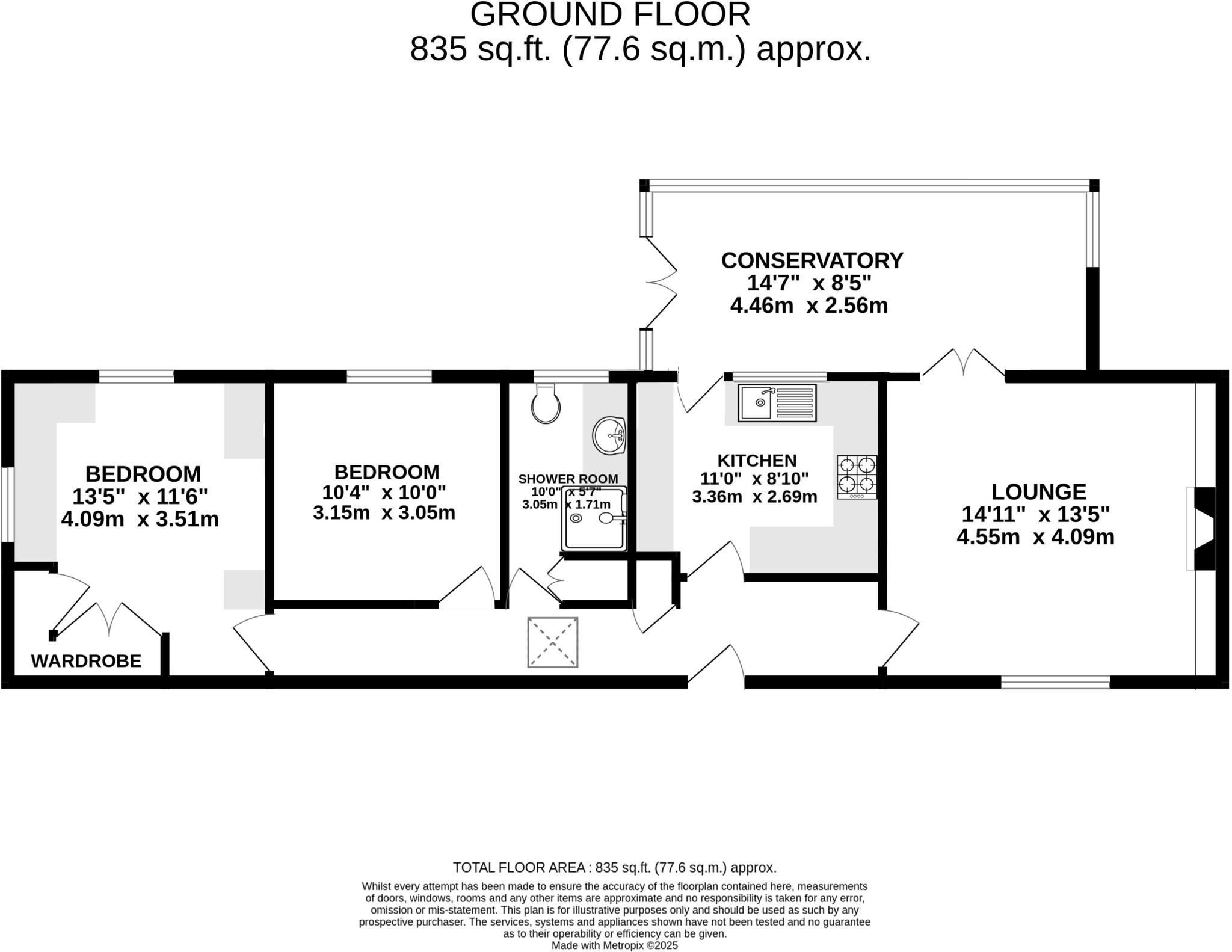
Buyers should note this is an average-sized bungalow (c.835 sq ft) with one shower room and an EPC rating of D. The walls are assumed to have partial cavity insulation and double glazing was installed post-2002; there is scope to improve energy efficiency and reduce running costs. The description contains a mix of 'detached barn conversion' and 'built form: semi-detached' — prospective purchasers should confirm the exact building status and boundary details during conveyancing.

Overall this home offers a low-maintenance, characterful base in an affluent village setting, ideal for those seeking single-floor living with parking and a private sunny garden. Practical purchasers and downsizers will appreciate the generous car port and straightforward room plan, while investors should note the single bathroom and EPC when modelling returns.

Property Details

Image Descriptions

Floorplan Description

Rooms

Textual Property Features

Target Audience

AI Tags

Detected Visual Features

EPC Details

Nearby Schools

Nearest Bars And Restaurants

,,,,}

Nearest General Shops

,,}

Nearest Grocery shops

,,}

Nearest Supermarkets

,,}

Nearest Religious buildings

,,}

Nearest Medical buildings

,,,}

Nearest Airports

}

Nearest Leisure Facilities

,,,,}

Nearest Tourist attractions

,,}

Nearest Train stations

,,,,}

Nearest Bus stations and stops

,,,,}

Nearest Hotels

,,}

Tags

Local Market Stats

Similar Properties

Meta

High Res Images

Compatible Images

Low res Images

Thumbnails

Raw Images

High Res Floorplan Images

Compatible Floorplan Images

Low res Floorplan Images

FloorplanImages Thumbnail

Raw Floorplan Images