Freshly redecorated three-bed family home with garden, garage and development potential..
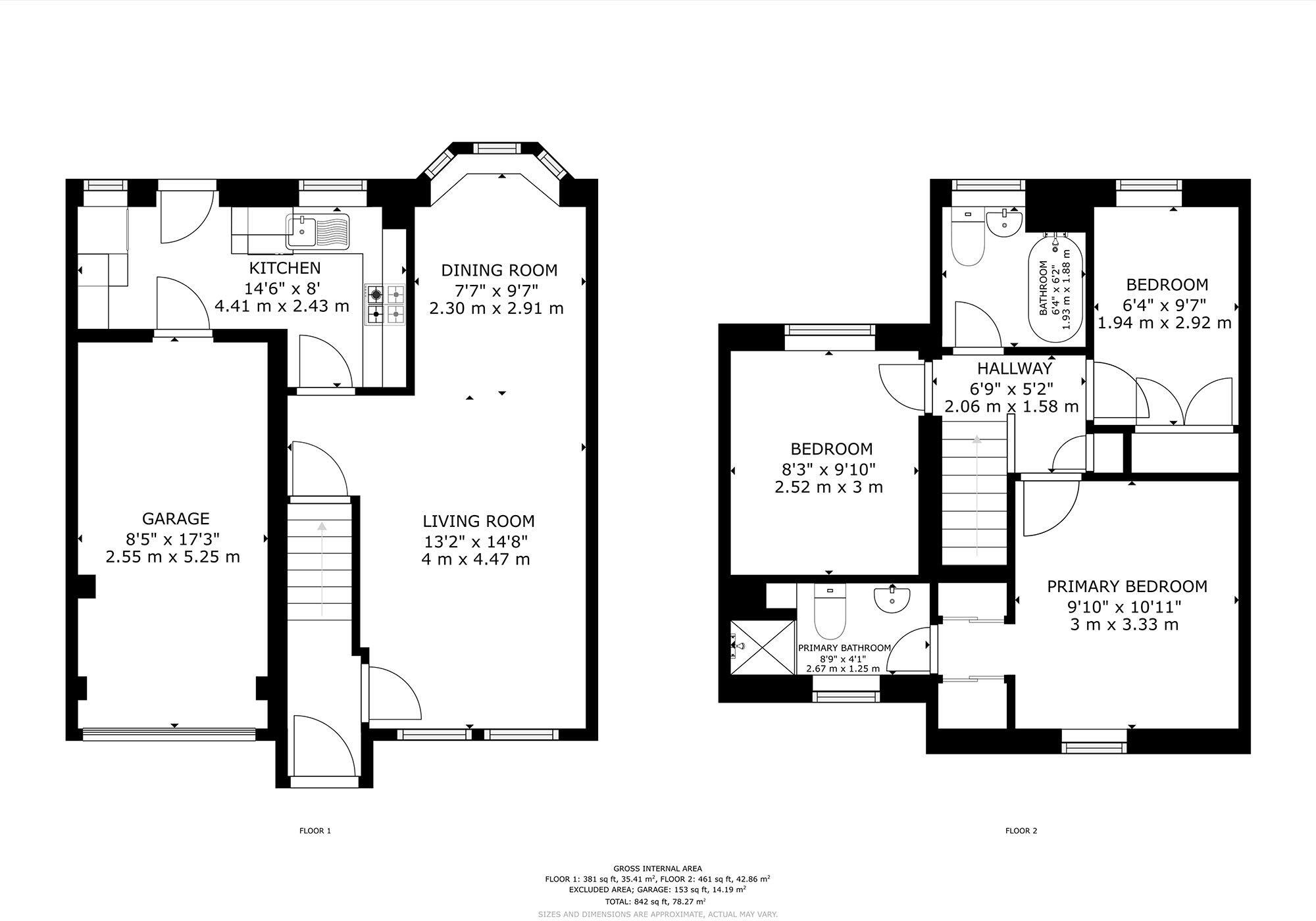
• Three bedrooms: two doubles and one single, new carpets throughout
• Two bathrooms including main ensuite and neutral family bathroom
• Spacious dual-aspect living room with rear bay window and garden view
• Original kitchen with scope for modernisation and garden access
• Integral garage with internal access — ideal to convert, subject to planning
• Driveway parking, double glazing, mains gas central heating
• Chain free, freehold; EPC C, no flood risk
• Area: affluent family neighbourhood, good schools, average crime levels
This well-presented three-bedroom semi-detached home in Bure Park offers practical family living with scope to personalise. Recently redecorated throughout and fitted with new carpets, the property provides a clean, ready-to-move-into canvas while retaining potential to add value through kitchen modernisation or garage conversion (subject to planning).
The ground floor features a spacious dual-aspect living room with a rear bay window that floods the space with light and overlooks a private garden — an appealing family-centred layout for everyday life and entertaining. The original kitchen opens directly to the garden and links internally to the garage, making it convenient now and flexible for future remodelling.
Upstairs there are two double bedrooms and a single, with the main bedroom benefitting from a walk-through wardrobe into a private ensuite. A neutral family bathroom completes the first floor. Practical extras include driveway parking, an integral single garage, double glazing and mains gas heating with boiler and radiators.
Honest considerations: the kitchen is original and will need updating to reach modern standards; any conversion of the garage would require planning permission. The EPC is C and the area has average crime levels. The property is chain free and freehold, set in an affluent, family-oriented neighbourhood with good local schools and fast broadband.
3 bedroom semi-detached house for sale in Campion Place, Bure Park, Bicester, OX26 — £395,000 • 3 bed • 1 bath • 1054 ft²
3 bedroom end of terrace house for sale in Campion Place, Bicester, OX26 — £395,000 • 3 bed • 2 bath • 784 ft²
3 bedroom detached house for sale in Germander Way, Bicester, OX26 — £435,000 • 3 bed • 2 bath • 1066 ft²
3 bedroom semi-detached house for sale in Barry Avenue, Bicester, OX26 — £399,995 • 3 bed • 1 bath • 1065 ft²
5 bedroom detached house for sale in Cranesbill Drive, Bure Park, Bicester, OX26 — £650,000 • 5 bed • 3 bath • 1560 ft²
2 bedroom terraced house for sale in Bryony Road, Bicester, OX26 — £315,000 • 2 bed • 1 bath • 694 ft²


































































































