**Standout Features:**
- Spacious four-bedroom Victorian home
- Walking distance to the historic town centre
- Open-plan kitchen and breakfast room with modern upgrades
- Mature, well-stocked large garden with privacy
- Off-road driveway parking
- Numerous original period features throughout
**Notable Concerns:**
- Good condition but with potential structural concerns due to age (built before 1900)
- Expensive council tax band
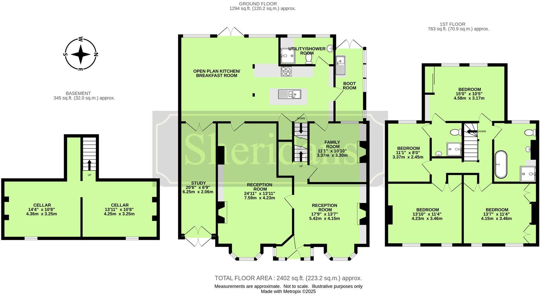
This stunning Victorian detached home offers a remarkable blend of traditional charm and modern living, making it perfect for families or investors seeking a property in the heart of Bury St Edmunds. Spanning approximately 2,402 square feet, the house features an expansive open-plan kitchen breakfast room bathed in natural light, and a well-proportioned sitting room ideal for family gatherings. With four sizable bedrooms and three bathrooms—including an ensuite—this residence caters to the needs of a growing family.
Enjoy the serene atmosphere of the mature gardens that provide a private retreat, complemented by a charming summer house. Positioned in a prime location, you'll have effortless access to local independent shops, schools, and the vibrant amenities of the town, as well as excellent transport links to London and Cambridge. While the property showcases historical features and space galore, potential buyers should consider the age of the structure. Don’t miss this rare opportunity to secure an enchanting home with future renovation potential—properties like this one are not available long!
3 bedroom semi-detached house for sale in West Road, Bury St. Edmunds, IP33 — £365,000 • 3 bed • 1 bath • 694 ft²
4 bedroom town house for sale in Out Risbygate, Bury St Edmunds, IP33 — £550,000 • 4 bed • 2 bath • 1765 ft²
4 bedroom semi-detached house for sale in Queens Road, Bury St Edmunds, IP33 — £545,000 • 4 bed • 2 bath • 1491 ft²
3 bedroom terraced house for sale in Queens Road, Bury St. Edmunds, IP33 — £450,000 • 3 bed • 2 bath • 836 ft²
3 bedroom town house for sale in Bury St. Edmunds, Suffolk, IP33 — £550,000 • 3 bed • 2 bath • 1442 ft²
3 bedroom town house for sale in York Road, Bury St. Edmunds, IP33 — £495,000 • 3 bed • 2 bath • 1191 ft²














































































































