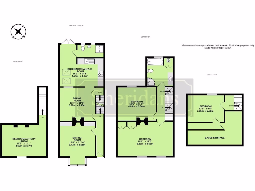
**Standout Features:**
- Elegant three-bedroom Victorian townhouse
- Off-road parking space at the rear
- Spacious kitchen/breakfast room and separate dining room
- Two modern bathrooms
- Landscaped outdoor terrace and well-maintained lawn
- No onward chain, allowing for easy move-in
This charming three-bedroom Victorian townhouse in the sought-after area of Bury St. Edmunds offers a perfect blend of classic charm and modern convenience. With off-road parking, this home provides easy access to local amenities and attractions, making it ideal for families and professionals alike. Inside, enjoy high ceilings and a bay window in the cozy sitting room, complemented by a spacious dining room and a well-appointed kitchen/breakfast room. Two modern bathrooms cater to family needs, while the master bedroom features lovely sash windows and elegant proportions.
The professionally landscaped garden is a standout feature, with a paved terrace and lush lawn, perfect for entertaining or relaxing in the sun. Located in a historically rich town, this property not only boasts a fantastic living space but also the potential for further personalization or renovation. The area features desirable schools and a thriving community atmosphere, enhancing your living experience. With no onward chain, this delightful home is ready for you to make it your own—don't miss this opportunity in a highly competitive market!
3 bedroom semi-detached house for sale in West Road, Bury St. Edmunds, IP33 — £365,000 • 3 bed • 1 bath • 694 ft²
3 bedroom town house for sale in Bury St. Edmunds, Suffolk, IP33 — £350,000 • 3 bed • 1 bath • 839 ft²
4 bedroom town house for sale in Out Risbygate, Bury St Edmunds, IP33 — £550,000 • 4 bed • 2 bath • 1765 ft²
3 bedroom town house for sale in Bury St. Edmunds, Suffolk, IP33 — £550,000 • 3 bed • 2 bath • 1442 ft²
3 bedroom terraced house for sale in Queens Road, Bury St. Edmunds, IP33 — £450,000 • 3 bed • 2 bath • 836 ft²
4 bedroom detached house for sale in West Road, Bury St Edmunds, IP33 — £795,000 • 4 bed • 3 bath • 2402 ft²


























































































