ML3 8QL - 4 bed spacious four bedroom home in Rutherglen And Hamilton…

View on Property Piper

4 bedroom detached house for sale in Hamilton, South Lanarkshire, Hamilton, ML3 8QL, ML3

Summary - 8, CORPACH PLACE ML3 8QL

4 bed 1 bath Detached

Ideal family layout with garage and sunny garden.
Detached new‑build with 10-year warranty
Open-plan dining and modern fitted kitchen
Integrated fridge, freezer, oven and hob
French doors to private rear garden
Internal garage and understairs storage
Largest bedroom includes ensuite shower room
Slow broadband speeds in the area
Council tax level described as expensive
Set on a modern, new-build street in Hamilton, this detached four-bedroom house offers practical family living across two floors. The ground floor features a bright open-plan dining area and a contemporary kitchen with integrated fridge, freezer, oven and hob, plus French doors out to the private rear garden. An internal garage and useful understairs storage add everyday convenience.

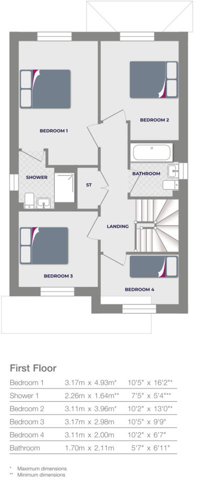
Upstairs there are four bedrooms, with the largest served by an ensuite shower room, and a family bathroom finished with full-height tiling. The property comes with a 10-year warranty and totals about 1,228 sq ft, providing comfortable space for a growing family. Ceiling heights and room sizes are standard, and the finishes are modern throughout.

Buyers should note some practical downsides: broadband speeds in the area are slow, council tax is described as expensive, and the wider area records higher levels of deprivation. Plots look average in size and outlooks are mainly over neighbouring houses rather than open views. The home is new, so immediate major works aren’t expected, but buyers wanting very fast broadband may need to investigate upgrades.

This house will suit families wanting contemporary, low-maintenance living with parking and outdoor space, and those who value warranty-backed new-build reassurance. The Dream Move Package offer (subject to terms) may provide useful incentives for buyers proceeding within the offer period.

Property Details

Brochure Descriptions

Image Descriptions

Floorplan Description

Rooms

Textual Property Features

Target Audience

AI Tags

Detected Visual Features

Nearest Bars And Restaurants

,,,,}

Nearest General Shops

,,}

Nearest Grocery shops

,,}

Nearest Supermarkets

,,}

Nearest Religious buildings

,,}

Nearest Medical buildings

,,,}

Nearest Airports

,}

Nearest Leisure Facilities

,,,,}

Nearest Tourist attractions

,,}

Nearest Train stations

,,,,}

Nearest Bus stations and stops

,,,,}

Nearest Hotels

,,}

Tags

Local Market Stats

Similar Properties

Meta

High Res Images

Compatible Images

Low res Images

Thumbnails

Raw Images

High Res Floorplan Images

Compatible Floorplan Images

Low res Floorplan Images

FloorplanImages Thumbnail

Raw Floorplan Images