Four-bedroom new-build with garage, garden and open-plan living — ideal for growing families.
10-year new-build warranty included
This four-bedroom new-build at Highstonehall offers modern family living across approximately 1,229 sq ft. The ground floor features open-plan dining and kitchen space with integrated appliances and French doors that bring the rear garden and light into the home. An internal garage and useful storage spaces add practical everyday convenience.
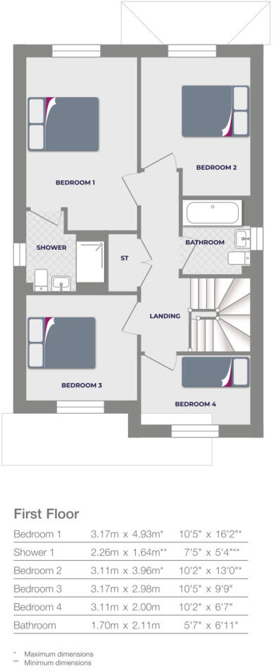
Upstairs, the layout includes a large main bedroom with an ensuite, two further double bedrooms and a single bedroom, served by a family bathroom. The property comes with a 10-year warranty, so purchasers benefit from new-build protections and contemporary finishes throughout.
Practical considerations are important here: broadband speeds are reported as slow locally, and council tax is described as expensive. The house sits within a comfortable suburban development in a wider area classified for rural workers and families; however, the immediate area has high deprivation, which may influence local services and community profile.
Overall, the home suits buyers seeking a modern, low-maintenance family house with garage parking and outdoor space, while those reliant on fast home internet or sensitive to local council tax levels should factor these points into their decision.
4 bedroom detached house for sale in Hamilton,
South Lanarkshire,
Hamilton,
ML3 8QL, ML3 — £384,995 • 4 bed • 1 bath • 1182 ft²
4 bedroom detached house for sale in Hamilton,
South Lanarkshire,
Hamilton,
ML3 8QL, ML3 — £333,995 • 4 bed • 1 bath • 1228 ft²
4 bedroom detached house for sale in Wellhall Road,
Hamilton,
ML3 9BZ, ML3 — £332,995 • 4 bed • 3 bath • 1174 ft²
4 bedroom detached house for sale in Hamilton,
South Lanarkshire,
Hamilton,
ML3 8QL, ML3 — £384,995 • 4 bed • 1 bath • 1450 ft²
4 bedroom detached house for sale in Wellhall Road,
Hamilton,
ML3 9BZ, ML3 — £333,995 • 4 bed • 3 bath • 1174 ft²
4 bedroom detached house for sale in Hamilton,
South Lanarkshire,
Hamilton,
ML3 8QL, ML3 — £379,995 • 4 bed • 1 bath • 645 ft²


























